Bénéficiez des services de nos partenaires locaux soigneusement sélectionnés
pour vous accompagner dans votre parcours d'achat immobilier

Terrain 965m² à mougins

— Mougins 06250 —
380 000 €
965 m²
jardin

Nos partenaires locaux
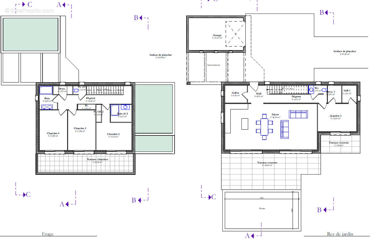
MOUGINS : En exclusivité, votre agence ERA JT2 immobilier vous propose à la vente un terrain constructible d'une superficie de 965 m², situé en zone urbaine peu dense (zone Ud). Le terrain bénéficie d'un permis de construire accordé pour une maison d'habitation d'environ 150 m² habitables, répartis sur deux niveaux.
Le projet prévoit la construction d'une maison comprenant :
4 chambres, 2 salles de bain (une dans la suite parentale, une à l'étage), un garage, une piscine, le tout sur un terrain plat.
Vous apprécierez le secteur proche des commodités,
Contactez-nous dès maintenant pour une visite !
Voir plus

Référence: 5912

Prêt immobilier

Vous souhaitez connaître votre capacité d’emprunt et trouver le meilleur crédit immobilier ?
Réaliser une simulation gratuite

Terrain à MOUGINS
Terrain à MOUGINS
Terrain à MOUGINS
Terrain à MOUGINS
Ce site est protégé par reCAPTCHA la Politique de confidentialité et les Conditions d’utilisation de Google s’appliquent.
Obtenir un prêt immobilier au meilleur taux ?

En poursuivant votre navigation sans modifier vos paramètres, vous acceptez l'utilisation de cookies susceptibles de réaliser des statistiques de visite. Cliquez ici pour plus d'informations