Bénéficiez des services de nos partenaires locaux soigneusement sélectionnés
pour vous accompagner dans votre parcours d'achat immobilier

A vendre fonds de commerce restaurant / pizzaria paris 11e

— Paris-11e 75011 —
214 000 €
65 m²
2 pièces

Nos partenaires locaux
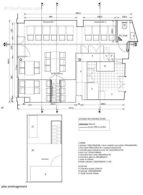
Vente d'un fonds de commerce d'un restaurant / pizzeria. Le local de 65m2 comprend : RDC de 50m2 et sous-sol de 15m2. Façade de 6 mètres.

Au RDC : salle de restaurant, WC avec point d'eau, cuisine de plain-pied avec un système d'extraction pro de type DSO 2002 ST et équipée de four à pizza. Au sous-sol en accès direct: chambre froide, stockage.

Capacité de 56 couverts: 34 en salle, 14 en terrasse à l'année et 8 en terrasse estivale. Ouvert en coupure, fermé le dimanche et 2 semaines/an. Tenu depuis 10 ans. Avis Google 4,8/5. Chiffre d'affaires 407K HT (moyenne 3 dernières années).

Rénové en 2024, décoré avec goût, le local est bien tenu et en très bon état général. Pas de travaux à prévoir. Loyer mensuel : 3385€ charges comprises / mois. Pas de TVA.

Environnement : entouré de commerces, bureaux, écoles / université et hôtels. A proximité du métro Charonne (ligne 9), métro Faidherbe – Chaligny (ligne 8).

Annonce publiée par Fanny Thomas (EI) votre agent commercial en immobilier LF immo à Paris, 75008 immatriculé au RSAC de PARIS sous le n°9[Coordonnées masquées]0 12. Consultez nos tarifs sur le site LF immo.

Les informations sur les risques auxquels ce bien est exposé sont disponibles sur le site Géorisques : www.georisques.gouv.fr.
Voir plus

Référence: fr066594
Honoraires à la charge du vendeur.
DPE
A
B
C
D
E
F
G
GES
A
B
C
D
E
F
G

Prêt immobilier

Vous souhaitez connaître votre capacité d’emprunt et trouver le meilleur crédit immobilier ?
Réaliser une simulation gratuite

Commerce à PARIS-11E
Commerce à PARIS-11E
Ce site est protégé par reCAPTCHA la Politique de confidentialité et les Conditions d’utilisation de Google s’appliquent.
Obtenir un prêt immobilier au meilleur taux ?

En poursuivant votre navigation sans modifier vos paramètres, vous acceptez l'utilisation de cookies susceptibles de réaliser des statistiques de visite. Cliquez ici pour plus d'informations