Bénéficiez des services de nos partenaires locaux soigneusement sélectionnés
pour vous accompagner dans votre parcours d'achat immobilier

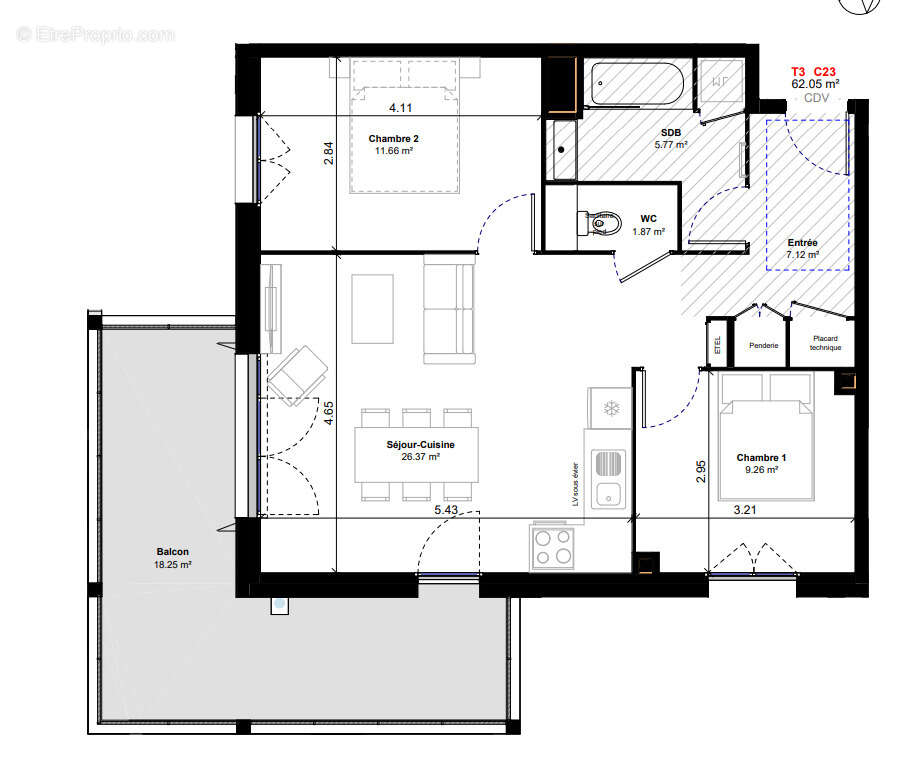
T3 avec grand balcon orienté sud-est à tullins

— Tullins 38210 —
190 000 €
62 m²
3 pièces
parkingbalcon/terrasse

Nos partenaires locaux
NOUVEAU
L'Immobilière Rosier vous propose un appartement 3 pièces à Tullins. Exposé Sud-Est l'appartement est situé au deuxième étage avec ascenseur. Il est composé de deux chambres, d'un séjour et d'un grand balcon. Une place de parking privative est comprise dans le prix de vente.
Emménagement prévu dès le début d'année 2027, n'hésitez pas à nous contacter pour effectuer votre réservation sur le bien ! Bénédicte ROSIER au O676814360

Barème des honoraires

Prêt immobilier

Vous souhaitez connaître votre capacité d’emprunt et trouver le meilleur crédit immobilier ?
Réaliser une simulation gratuite

Appartement à TULLINS
Appartement à TULLINS
Appartement à TULLINS
Appartement à TULLINS
Appartement à TULLINS
Ce site est protégé par reCAPTCHA la Politique de confidentialité et les Conditions d’utilisation de Google s’appliquent.
Obtenir un prêt immobilier au meilleur taux ?

En poursuivant votre navigation sans modifier vos paramètres, vous acceptez l'utilisation de cookies susceptibles de réaliser des statistiques de visite. Cliquez ici pour plus d'informations