Bénéficiez des services de nos partenaires locaux soigneusement sélectionnés
pour vous accompagner dans votre parcours d'achat immobilier

À vendre – propriété d’exception de 472 m² habitables sur parc arboré de 5 000 m² – lourdes

— Lourdes 65100 —
540 000 €
472 m² / 4 997 m²
15 pièces
parkingbalcon/terrassejardinpiscine

Nos partenaires locaux
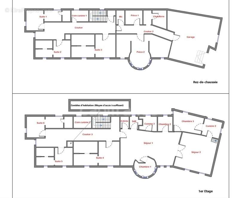
Nichée dans un cadre verdoyant et parfaitement entretenu, cette propriété haut de gamme offre une qualité de vie rare, à seulement quelques minutes du centre de Lourdes.

Elle a été rénovée avec des prestations soignées, elle développe 472 m² habitables, répartis en plusieurs espaces de vie indépendants, idéals pour accueillir une grande famille, des hôtes ou un projet touristique.

Elle se compose notamment de :

- Quatre chambres en suite, chacune avec sa salle d'eau privative,
- Deux suites spacieuses, offrant un confort optimal,
- Deux appartements indépendants,
- Un vaste garage, une salle de sport et une salle de détente avec billard.

À l'extérieur, le terrain d'environ 5 000 m², arboré avec un ruisseau, accueille une grande terrasse, parfaite pour les moments de convivialité, ainsi qu'une piscine couverte.

Les équipements sont à la hauteur des lieux : aucun travaux à prévoir, présence de panneaux solaires, entretien régulier, finitions de qualité.

Un bien rare, au calme, dans un environnement naturel et recherché, idéal pour un projet familial, une résidence secondaire ou une activité de chambres d'hôtes.

Les honoraires sont à la charge du vendeur.
Les informations sur les risques auxquels ce bien est exposé sont disponibles sur le site Géorisques : www. georisques. gouv. fr.

Réseau Immobilier CAPIFRANCE - Votre agent commercial (RSAC N°942 912 858 - Greffe de TARBES) Nelly PEYREGNE Entrepreneur Individuel [Coordonnées masquées] - Réf.909277
Voir plus

Référence: 340931445673
Honoraires à la charge du vendeur.
DPE
A
B
C
D
E
F
G
GES
A
B
C
D
E
F
G

Prêt immobilier

Vous souhaitez connaître votre capacité d’emprunt et trouver le meilleur crédit immobilier ?
Réaliser une simulation gratuite

Maison à LOURDES
Maison à LOURDES
Maison à LOURDES
Maison à LOURDES
Maison à LOURDES
Maison à LOURDES
Maison à LOURDES
Maison à LOURDES
Maison à LOURDES
Maison à LOURDES
Maison à LOURDES
Maison à LOURDES
Maison à LOURDES
Maison à LOURDES
Maison à LOURDES
Maison à LOURDES
Maison à LOURDES
Maison à LOURDES
Maison à LOURDES
Maison à LOURDES
Maison à LOURDES
Maison à LOURDES
Maison à LOURDES
Ce site est protégé par reCAPTCHA la Politique de confidentialité et les Conditions d’utilisation de Google s’appliquent.
Obtenir un prêt immobilier au meilleur taux ?

En poursuivant votre navigation sans modifier vos paramètres, vous acceptez l'utilisation de cookies susceptibles de réaliser des statistiques de visite. Cliquez ici pour plus d'informations