Bénéficiez des services de nos partenaires locaux soigneusement sélectionnés
pour vous accompagner dans votre parcours d'achat immobilier

Maison t7 avec piscine et garage

— Seysses 31600 —
386 000 €
220 m² / 1 500 m²
7 pièces
parkingbalcon/terrassejardinpiscine

Nos partenaires locaux
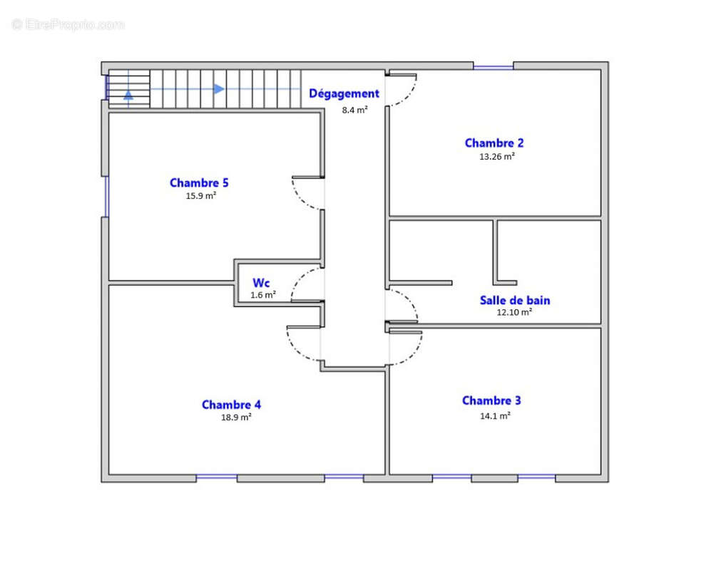
Contact direct Charlotte BLANC O6.13.87.93.71 sur la commune de SEYSSES, à 400 mètres de l'école maternelle et primaire Paul Langevin, à 900 mètres du collège Kolinka, proche commerces (intermarché à 1.3km), bus ligne 58 devant la maison, INTEGRAL IMMOBILIER vous propose une Toulousaine milieu 19e siècle sur une parcelle de 1500m2 environ avec garage de 55m2 attenant. Surface habitable de 220m2. Au rez de chaussée vous trouverez une pièce de vie de 70m2 avec cuisine ouverte + cellier, deux chambres dont une suite avec sa salle d'eau. A l'étage 4 chambres supplémentaires et une salle de bain avec douche et baignoire. Fenetre en PVC double vitrage, chauffage gaz, jardin au calme avec piscine traditionnelle entretenue et puits. Travaux de toiture conséquents en 2019. Taxe foncière 3121€.
Les informations sur les risques auxquels ce bien est exposé sont disponibles sur le site Géorisques : www.georisques.gouv.fr
Pour une visite et/ou plus d'informations contact Charlotte BLANC au O6.13.87.93.71. Agent commercial pour la SAS Integral Immobilier immatriculée au RSAC de Toulouse sous le No852.867.977
Villes proches : Villeneuve Tolosane, Cugnaux, Seysses, Plaisance du Touch, Fonsorbes, Muret, Roques Sur Garonne, Portet sur Garonne ...
Voir plus

Honoraires d'agence de 4.32% à la charge de l'acquéreur
Barème des honoraires
DPE
A
B
C
D
E
F
G
GES
A
B
C
D
E
F
G

Prêt immobilier

Vous souhaitez connaître votre capacité d’emprunt et trouver le meilleur crédit immobilier ?
Réaliser une simulation gratuite

Maison à SEYSSES
Maison à SEYSSES
Maison à SEYSSES
Maison à SEYSSES
Maison à SEYSSES
Maison à SEYSSES
Maison à SEYSSES
Maison à SEYSSES
Maison à SEYSSES
Maison à SEYSSES
Maison à SEYSSES
Maison à SEYSSES
Maison à SEYSSES
Maison à SEYSSES
Maison à SEYSSES
Maison à SEYSSES
Maison à SEYSSES
Ce site est protégé par reCAPTCHA la Politique de confidentialité et les Conditions d’utilisation de Google s’appliquent.
Obtenir un prêt immobilier au meilleur taux ?

En poursuivant votre navigation sans modifier vos paramètres, vous acceptez l'utilisation de cookies susceptibles de réaliser des statistiques de visite. Cliquez ici pour plus d'informations