Bénéficiez des services de nos partenaires locaux soigneusement sélectionnés
pour vous accompagner dans votre parcours d'achat immobilier

Clichy - maison de ville - 6 pieces jardin - 1 349 000 fai

— Paris-17e 75017 —
1 349 000 €
160 m²
6 pièces

Nos partenaires locaux
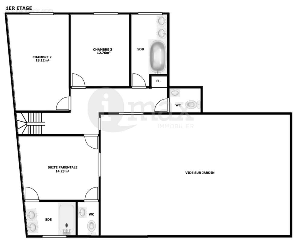
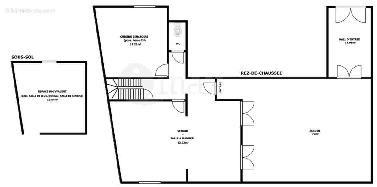
Au coeur de Clichy, à quelques pas du métro Mairie de Clichy et des commerces, découvrez cette maison familiale d'exception, entièrement rénovée par un architecte. Avec ses 160 m² habitables et son jardin de 75m², elle allie parfaitement modernité, confort et prestations soignées. Elle se compose comme suit : un porche d'entrée aménagé (avec possibilité de stationner un véhicule ou vélos) vous conduit vers un jardin exposé sud. L'intérieur s'ouvre sur un vaste espace de réception lumineux, comprenant un séjour et une salle à manger. Vous y trouverez également une cuisine dînatoire modulable en quatrième chambre, ainsi qu'un WC séparé. Au premier niveau : une suite parentale avec salle d'eau et WC privé, deux chambres spacieuses, une salle de bain, un espace buanderie et un WC séparé. Un espace polyvalent à aménager selon vos besoins (salle de jeux, bureau, cave à vin, salle de cinéma...) complète ce bien en sous-sol. Ce bien rare et soigneusement rénové est un véritable coup de coeur pour les familles à la recherche d'un cadre de vie pratique et élégant à Clichy. A visiter sans tarder ! Mandat de vente simple : V528 (3.77 % honoraires TTC à la charge de l'acquéreur.) Copropriété de 23 lots.
Voir plus

Référence: V528
Bien en copropriété. Nombre de lots : 23. Procédure en cours.
Honoraires d'agence de 3.77% à la charge de l'acquéreur
Barème des honoraires
DPE
A
B
C
D
E
F
G
GES
A
B
C
D
E
F
G

Prêt immobilier

Vous souhaitez connaître votre capacité d’emprunt et trouver le meilleur crédit immobilier ?
Réaliser une simulation gratuite

Maison à PARIS-17E
Maison à PARIS-17E
Maison à PARIS-17E
Maison à PARIS-17E
Maison à PARIS-17E
Maison à PARIS-17E
Maison à PARIS-17E
Maison à PARIS-17E
Maison à PARIS-17E
Maison à PARIS-17E
Maison à PARIS-17E
Maison à PARIS-17E
Maison à PARIS-17E
Maison à PARIS-17E
Ce site est protégé par reCAPTCHA la Politique de confidentialité et les Conditions d’utilisation de Google s’appliquent.
Obtenir un prêt immobilier au meilleur taux ?

En poursuivant votre navigation sans modifier vos paramètres, vous acceptez l'utilisation de cookies susceptibles de réaliser des statistiques de visite. Cliquez ici pour plus d'informations