Maison ham sous varsberg 3 pièce(s) 91.6 m2

— Ham-Sous-Varsberg 57880 —
226 500 €
92 m² / 100 m²
3 pièces
parkingbalcon/terrassejardin

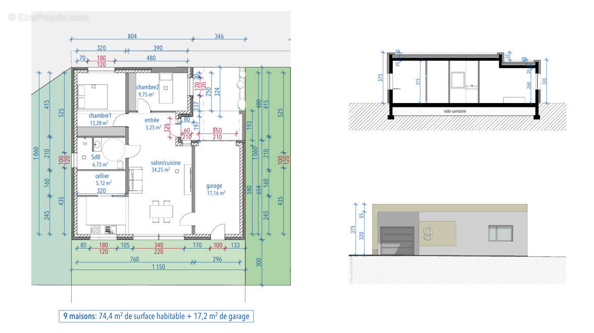
L'agence Stéphane Plaza Immobilier de Saint-Avold vous présente ce nouveau projet de maisons séniors. Le début des travaux prévu courant 2026, laissera apparaître 9 maisons accessible de plain pied et adaptées aux personnes à mobilité réduite. ° 91,6m² optimisés et personnalisables, avec grande pièce à vivre, cuisine, cellier, 2 chambres, garage et jardin exposé sud-ouest. ° Luminosité maximale grâce aux larges ouvertures. ° Accessibles aux séniors et PMR, avec équipements modernes et sécurisés. ° Proximité des commerces. Leclerc à 2 km. ° Prestations haut de gamme ° Situation dans une impasse paisible, alliant confort, nature et commodités. Ci-dessous un listing détaillé des équipements des maisons et types de matériaux utilisés dans l'offre : Construction : Sur vide sanitaire Dalle poutrelle hourdis béton armé Brique rouge Toit plat + étanchéité Terrasse au sol, en béton Menuiseries extérieures : PVC triple vitrage. Couleur à déterminer, Motorisation des volets en filaire SOMFY, Chauffage au sol électrique basse consommation. Eau chaude produit par un ballon thermodynamique. Poêle à Pellet VMC simple flux hydro réglable. Isolation - Plâtrerie : Isolation par l'intérieur doublage collé plaque de BA 13 + polystyrène environ 12 à 14cm Cloison intérieur ép.=100mm en ba18 + ossature métallique + isolant minéral acoustique Plafond : plâtre projeté sauf pièce technique faux plafond Isolation du toit plat, sur le toit plat, ép.=160mm en polyuréthane. Extérieur : Crépi projeté Dans le cas où vous souhaitez une maison clé en main, avec le package complet : Finition intérieure : Peinture mural velours + plafond mat Carrelage au sol : choix de 4 coloris dans la gamme du promoteur Idem pour faïence côté SDB Porte intérieure, chambranle contre chambranle âme tubulaire, 4 coloris dans la gamme du promoteur. Finition extérieur : Entrée en Pavage Revêtement sur la terrasse, dalle sur plot, choix de 4 coloris dans la gamme du promoteur Equipements sanitaire : Suivant la gamme de prix fourni par le promoteur, 2-3 choix de modèles laissés aux clients. WC suspendu Possibilité de mettre une baignoire si besoin. Description complète du projet sur rendez vous à l'agence. N'hésitez pas à nous contacter. (3.42 % honoraires TTC à la charge de l'acquéreur.)
Voir plus

Référence: 0595
Honoraires d'agence de 3.42% à la charge de l'acquéreur
Barème des honoraires

Prêt immobilier

Vous souhaitez connaître votre capacité d’emprunt et trouver le meilleur crédit immobilier ?
Réaliser une simulation gratuite

Maison à HAM-SOUS-VARSBERG
Maison à HAM-SOUS-VARSBERG
Maison à HAM-SOUS-VARSBERG
Maison à HAM-SOUS-VARSBERG
Maison à HAM-SOUS-VARSBERG
Maison à HAM-SOUS-VARSBERG
Maison à HAM-SOUS-VARSBERG
Maison à HAM-SOUS-VARSBERG
Maison à HAM-SOUS-VARSBERG
Maison à HAM-SOUS-VARSBERG
Ce site est protégé par reCAPTCHA la Politique de confidentialité et les Conditions d’utilisation de Google s’appliquent.
Obtenir un prêt immobilier au meilleur taux ?

En poursuivant votre navigation sans modifier vos paramètres, vous acceptez l'utilisation de cookies susceptibles de réaliser des statistiques de visite. Cliquez ici pour plus d'informations