Appartement 42m² à langueux

— Langueux 22360 —
192 000 €
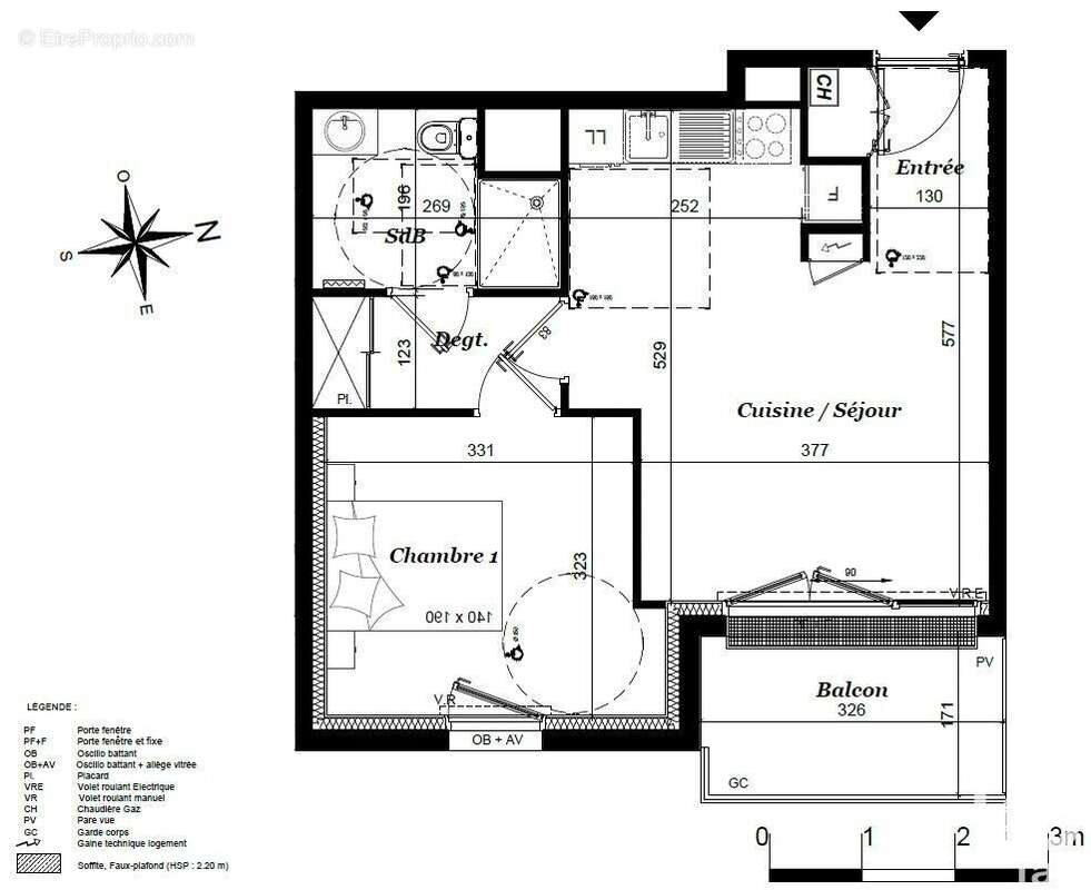
42 m²
2 pièces

Iad France - Julien Baladi ([Coordonnées masquées]) vous propose : Langueux hypercentre - Commerces, écoles, transports à deux pas. Les plages à moins de quinze minutes en voiture, la gare ferroviaire à moins de dix minutes en voiture. La commune se démarque par l'attractivité de son environnement commercial, sa proximité immédiate avec Saint-Brieuc, la mer et ses sentiers de promenade avec vue dégagée sur l'horizon, l'accès à la RN 12 reliant Rennes à Brest et sa surtout sa qualité de vie, particulièrement appréciée de ses habitants.
Investissez dans ce magnifique appartement neuf, 2 pièces, exposé est, aux normes RE 2020 au cOEur de Langueux, au premier étage d'un bâtiment tout confort respectueux de l'environnement. Menuiseries PVC double vitrage, cloisons isolées vers l'extérieur, chauffage individuel avec chaudière gaz à condensation (usage mixte : chauffage et eau chaude sanitaire), radiateurs équipés de robinets thermostatiques, thermostat d'ambiance, ventilation mécanique contrôlée collective de type simple flux hygroréglable B, extraction de l'air dans les pièces humides (cuisine, bains, WC) et entrées d'air frais dans les pièces sèches (séjour, chambres), appareils électriques conformes à la norme NFC-15-100.
Avec ascenseur accessible aux PMR et bénéficiant d'une place de stationnement, cette habitation vous offrira le confort moderne auquel vous aspirez : receveur de douche extra plat et wc posés au sol. Seule la cuisine restera à aménager intégralement selon votre convenance (bac évier non compris dans la prestation).
Vous bénéficierez d'un balcon pour profiter d'un espace extérieur aux beaux jours.
Contactez-moi pour échanger dans les moindres détails et nous assurer que ce bien vous correspondra. Possibilité de TVA réduite à 5,5% en accession BRS.

Honoraires d'agence à la charge du vendeur. Bien non soumis au DPE. Les informations sur les risques auxquels ce bien est exposé sont disponibles sur le site Géorisques : www.georisques.gouv.fr. La présente annonce immobilière a été rédigée sous la responsabilité éditoriale de M. Julien Baladi EI (ID 49374), mandataire indépendant en immobilier (sans détention de fonds), agent commercial de la SAS I@D France immatriculé au RSAC de Saint-Brieuc sous le numéro 888389210, titulaire de la carte de démarchage immobilier pour le compte de la société I@D France SAS.
Retrouvez tous nos biens sur notre site internet. www.iadfrance.fr.
Informations LOI ALUR :
Honoraires charge vendeur. (gedeon_6727_31370398)
Voir plus

Référence: 1774647-21
Honoraires à la charge du vendeur.

Prêt immobilier

Vous souhaitez connaître votre capacité d’emprunt et trouver le meilleur crédit immobilier ?
Réaliser une simulation gratuite

Photo 1 - Appartement à LANGUEUX
Photo 1
Photo 2 - Appartement à LANGUEUX
Photo 2
Photo 3 - Appartement à LANGUEUX
Photo 3
Photo 4 - Appartement à LANGUEUX
Photo 4
Photo 5 - Appartement à LANGUEUX
Photo 5
Ce site est protégé par reCAPTCHA la Politique de confidentialité et les Conditions d’utilisation de Google s’appliquent.
Obtenir un prêt immobilier au meilleur taux ?

En poursuivant votre navigation sans modifier vos paramètres, vous acceptez l'utilisation de cookies susceptibles de réaliser des statistiques de visite. Cliquez ici pour plus d'informations