Appartement 111m² à nimes

— Nimes 30900 —
165 000 €
111 m²
5 pièces
parkingbalcon/terrasse

Iad France - Fabien Hugues vous propose : Appartement 5 pièces - 111 m² habitables - Jardin - Garage 46 m² - À rafraichir et à finir de rénover
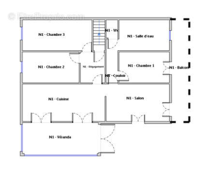
Situé au sud de Nîmes, sur un axe desservant, cet appartement de type P5 en rez-de-jardin se trouve dans une copropriété de 4 lots d'habitation, sans syndic professionnel ni charges.
D'une superficie habitable de 111 m² (hors véranda et balcon), il se compose d'une grande cuisine indépendante de 24 m², d'un séjour lumineux de 20 m² avec cheminée et poêle à bois, de trois chambres de 12 à 17 m², d'une salle d'eau, d'un WC séparé et de dégagements.
Une véranda de 8 m² s'ouvre sur le jardin privatif. Un balcon de 8 m² complète les extérieurs. L'ensemble est orienté ouest côté pièces de vie.
Un garage indépendant de 46 m² est inclus dans la vente.
Le bien dispose d'un chauffage électrique (radiateurs radiants), d'une cheminée et d'un poêle à bois. L'eau est alimentée par forage avec système de désinfection UV. Eau chaude par cumulus. L'assainissement individuel (fosse septique) est en cours de réfection. Le compteur électrique est à prévoir dans le cadre de la rénovation.
Toiture révisée en 2021.
À noter : environnement à usage mixte, présence d'une route passante en bordure sud et d'un espace de stockage au nord de la parcelle.


La presente annonce immobiliere vise 2 lots situés dans une copropriété de 5 lots au total et ne faisant l'objet d'aucune procédure en cours citée à l'article L. 721-1 du code de la construction et de l'habitation. Montant moyen mensuel de charges déclaré par le vendeur : 0¤ par mois (soit 0 ¤ annuel). Honoraires d'agence à la charge du vendeur.
Information d'affichage énergétique sur ce bien : classe ENERGIE D indice 184 et classe CLIMAT A indice 5. Les informations sur les risques auxquels ce bien est exposé, y compris l'obligation légale de débroussaillement, sont disponibles sur le site Géorisques : www.georisques.gouv.fr.
La présente annonce immobilière a été rédigée sous la responsabilité éditoriale de M Fabien Hugues mandataire indépendant en immobilier (sans détention de fonds), agent commercial de la SAS I@D France immatriculé au RSAC de NIMES sous le numéro 902266097, titulaire de la carte de démarchage immobilier pour le compte de la société I@D France SAS.
Informations LOI ALUR :
Soumis au régime de copropriété.
Nombre de lots : 5.
Honoraires charge vendeur. (gedeon_6727_31370820)
Voir plus

Référence: 1779067
Bien en copropriété. Nombre de lots : 5.
Honoraires à la charge du vendeur.
DPE
A
B
C
D
E
F
G
GES
A
B
C
D
E
F
G

Prêt immobilier

Vous souhaitez connaître votre capacité d’emprunt et trouver le meilleur crédit immobilier ?
Réaliser une simulation gratuite

Photo 1 - Appartement à NIMES
Photo 1
Photo 2 - Appartement à NIMES
Photo 2
Photo 3 - Appartement à NIMES
Photo 3
Photo 4 - Appartement à NIMES
Photo 4
Photo 5 - Appartement à NIMES
Photo 5
Photo 6 - Appartement à NIMES
Photo 6
Photo 7 - Appartement à NIMES
Photo 7
Photo 8 - Appartement à NIMES
Photo 8
Photo 9 - Appartement à NIMES
Photo 9
Ce site est protégé par reCAPTCHA la Politique de confidentialité et les Conditions d’utilisation de Google s’appliquent.
Obtenir un prêt immobilier au meilleur taux ?

En poursuivant votre navigation sans modifier vos paramètres, vous acceptez l'utilisation de cookies susceptibles de réaliser des statistiques de visite. Cliquez ici pour plus d'informations