Bénéficiez des services de nos partenaires locaux soigneusement sélectionnés
pour vous accompagner dans votre parcours d'achat immobilier

Maison de charme à 5 minutes de langon. coup de coeur assuré !

— Langon 33210 —
232 000 €
75 m² / 396 m²
4 pièces
parkingbalcon/terrassejardin

Nos partenaires locaux












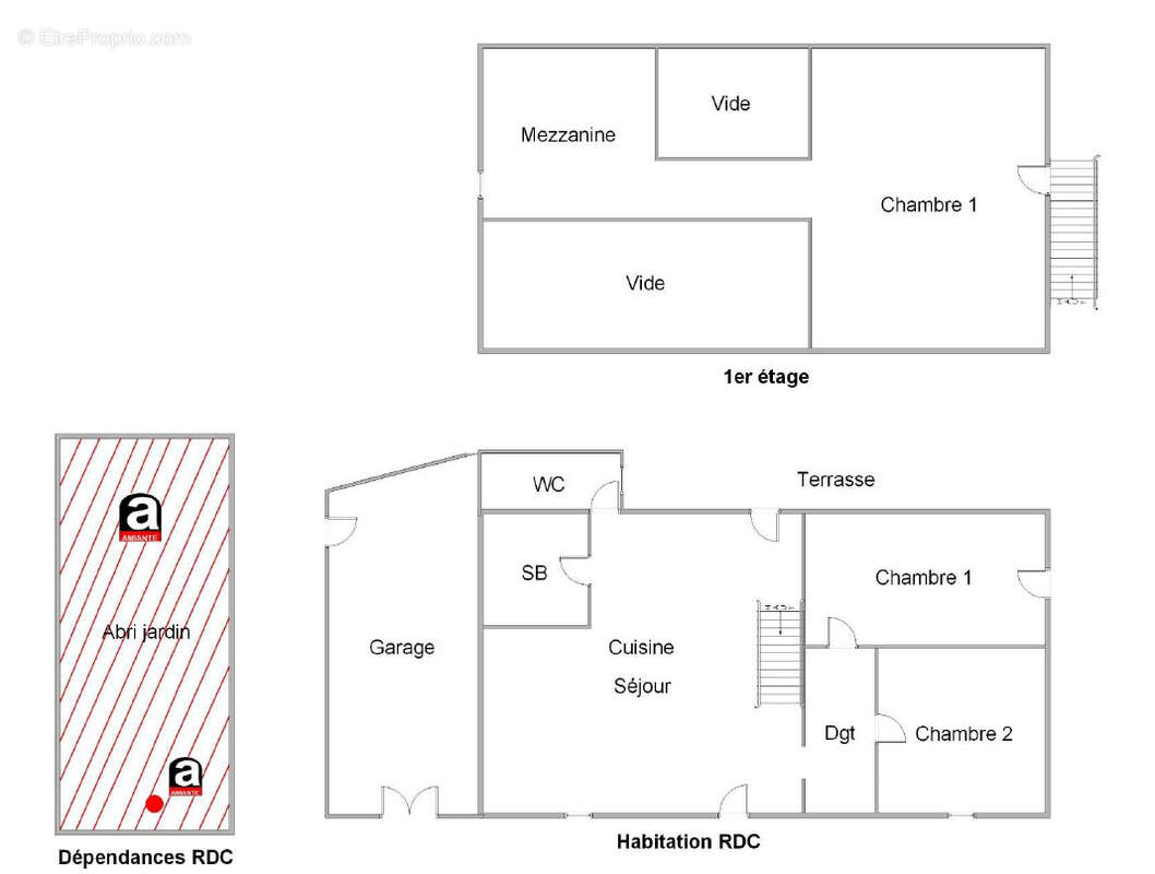
Envie d’authenticité et de confort ? Cette maison individuelle en pierre, pleine de cachet, n’attend que vous ! Récemment rénovée et parfaitement entretenue, elle allie charme de l’ancien (poutres apparentes, belle hauteur sous plafond) et touches contemporaines dans une déco chaleureuse et soignée.
Au rez-de-chaussée :


Une agréable pièce de vie avec cuisine ouverte


Un poêle à granulés pour des soirées cosy


Accès direct à une terrasse intimiste et sans vis-à-vis


Deux chambres confortables


Une salle de bain et un WC indépendant


À l’étage :


Une mezzanine idéale pour un coin bureau ou détente


Une troisième chambre avec un accès extérieur indépendant


Surface habitable : 75 m2 (surface au sol plus généreuse grâce aux volumes mansardés).
Côté pratique :


Garage attenant


Dépendance pour rangement ou atelier


Jardin agréable pour profiter des beaux jours


À seulement 5 minutes de Langon et de toutes ses commodités, cette maison offre un cadre de vie paisible, tout en restant proche des accès et services.
Une maison coup de cœur à visiter sans tarder ! Aucun travaux à prévoir.
Pour visiter ce bien, contactez Virginie Pès au [Coordonnées masquées]
Les informations liés aux risques de ce bien sont consultables sur le site www.georisques.gouv.fr











Voir plus

Référence: 359
Honoraires d'agence de 5.45% à la charge de l'acquéreur
Barème des honoraires
DPE
A
B
C
D
E
F
G
GES
A
B
C
D
E
F
G

Prêt immobilier

Vous souhaitez connaître votre capacité d’emprunt et trouver le meilleur crédit immobilier ?
Réaliser une simulation gratuite

Maison à LANGON
Maison à LANGON
Maison à LANGON
Maison à LANGON
Maison à LANGON
Maison à LANGON
Maison à LANGON
Maison à LANGON
Maison à LANGON
Maison à LANGON
Maison à LANGON
Maison à LANGON
Ce site est protégé par reCAPTCHA la Politique de confidentialité et les Conditions d’utilisation de Google s’appliquent.
Obtenir un prêt immobilier au meilleur taux ?

En poursuivant votre navigation sans modifier vos paramètres, vous acceptez l'utilisation de cookies susceptibles de réaliser des statistiques de visite. Cliquez ici pour plus d'informations