Bénéficiez des services de nos partenaires locaux soigneusement sélectionnés
pour vous accompagner dans votre parcours d'achat immobilier

Exclusivité - t3 au 2ème étage avec 3 balcons !

— Paris-18e 75018 —
669 000 €
72 m²
3 pièces
balcon/terrasse

Nos partenaires locaux

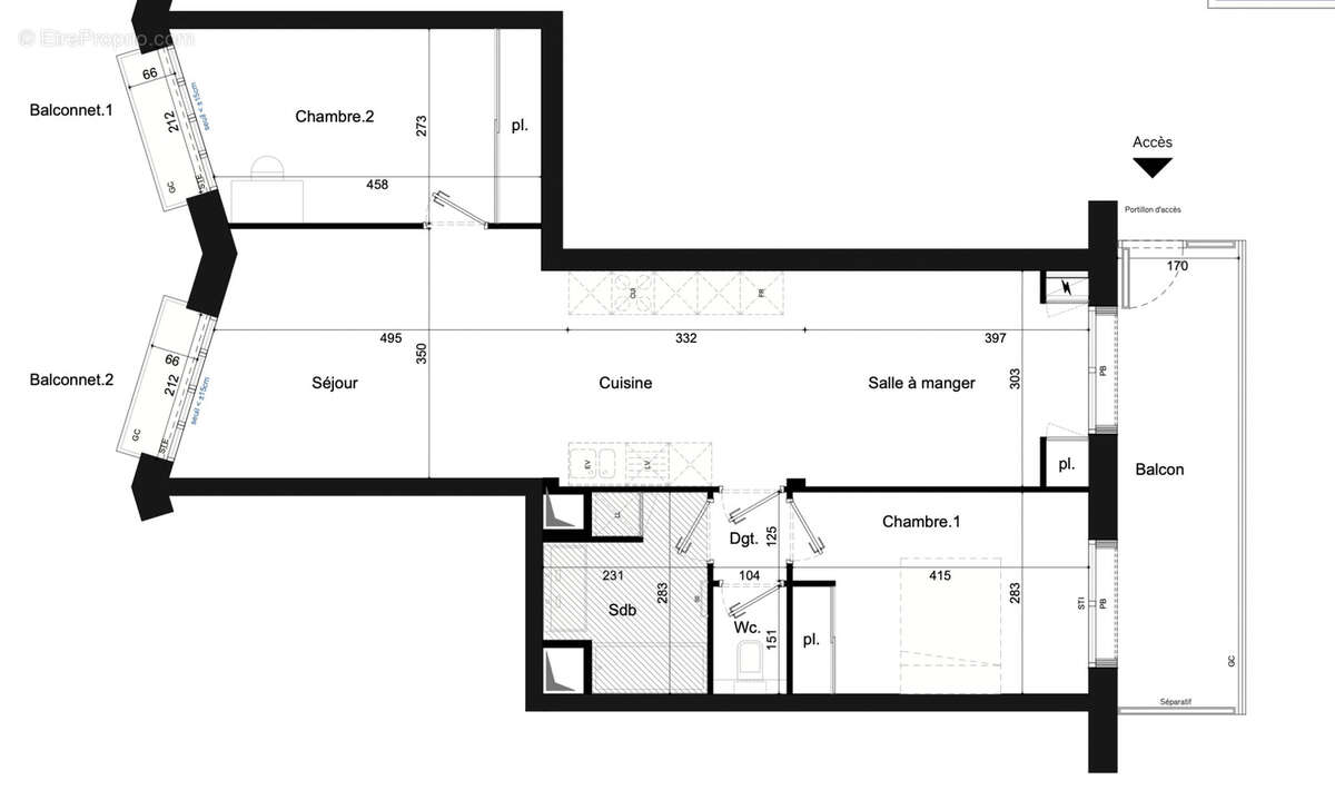
En EXCLUSIVITÉ, superbe T3 de 72,6m2 au sein d'un immeuble, aux prestations de grande qualité.
Située en bordure d'un nouveau parc de plus de 6 hectares, à quelques pas de la station Rosa Parks, l'appartement dispose d'un séjour/cuisine de 39m2, deux chambres de 11 et 13m2, une salle de bain et un wc indépendant. De plus, deux balconnets de 1,40m2 et un balcon de 11m2 complètent ce bien.
L'adresse s'inscrit au sein d'un nouveau quartier métropolitain qui se veut exemplaire, ambitieux et environnementalement vertueux. Vous profiterez d'un cadre exceptionnel avec une offre résidentielle de qualité, des commerces de proximité et un nouveau groupe scolaire de 12 classes. La proximité immédiate des transports (Métro 12, Tram 3b, RER E) est idéale pour rejoindre Montmartre, le coeur de Paris ou Le Millénaire en 10 min.
Contactez-nous pour plus d'informations !
Voir plus

Bien en copropriété. Nombre de lots : 35. Charges de copropriété : 3445 €.
Barème des honoraires
DPE
A
B
C
D
E
F
G
GES
A
B
C
D
E
F
G

Prêt immobilier

Vous souhaitez connaître votre capacité d’emprunt et trouver le meilleur crédit immobilier ?
Réaliser une simulation gratuite

Appartement à PARIS-18E
Appartement à PARIS-18E
Appartement à PARIS-18E
Appartement à PARIS-18E
Ce site est protégé par reCAPTCHA la Politique de confidentialité et les Conditions d’utilisation de Google s’appliquent.
Obtenir un prêt immobilier au meilleur taux ?

En poursuivant votre navigation sans modifier vos paramètres, vous acceptez l'utilisation de cookies susceptibles de réaliser des statistiques de visite. Cliquez ici pour plus d'informations