Bénéficiez des services de nos partenaires locaux soigneusement sélectionnés
pour vous accompagner dans votre parcours d'achat immobilier

bel appartement avec vue dégagée à Senlis

— Senlis 60300 —
649 000 €
148 m²
4 pièces
parkingbalcon/terrasse

Nos partenaires locaux
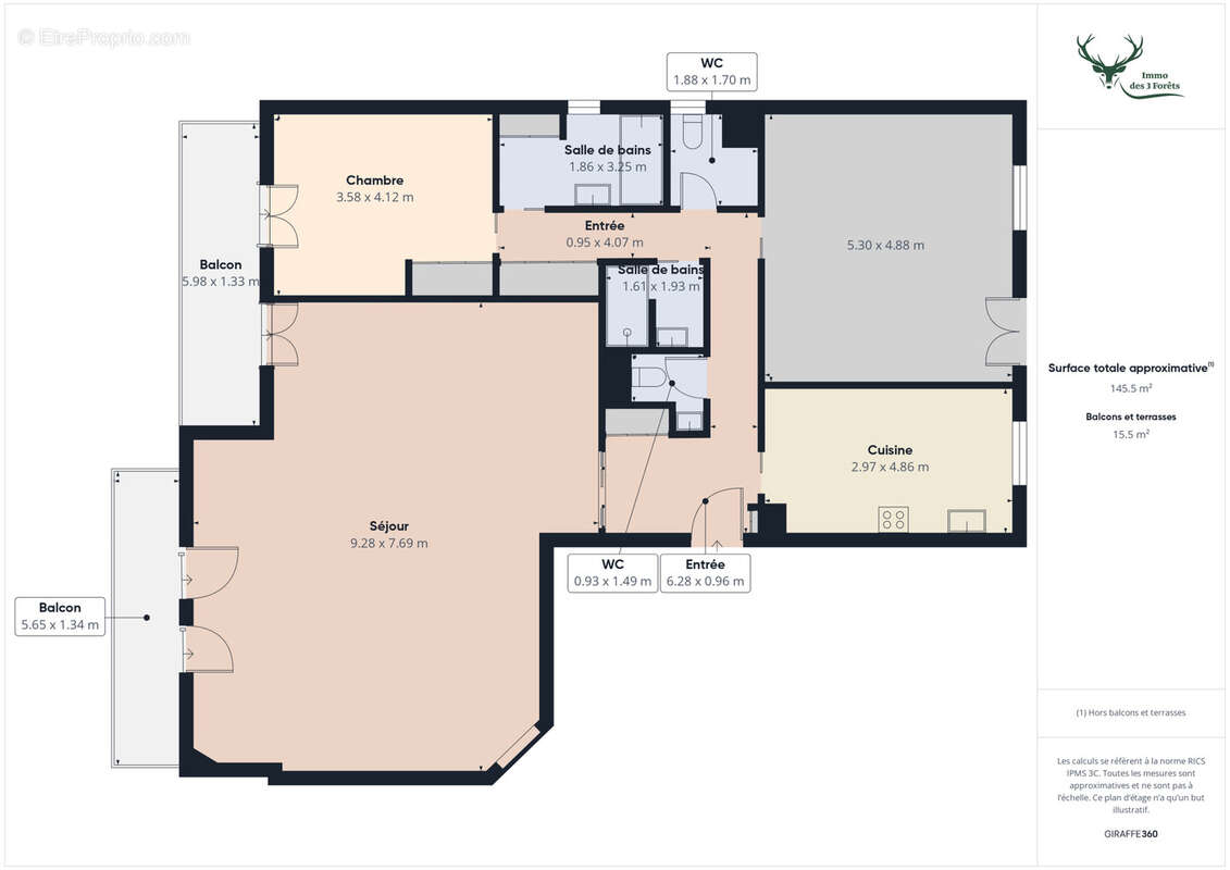
Dans une résidence de standing avec ascenseur et proche du centre ville, belles prestations pour cet appartement avec balcons profitant d'une vue dégagée et orienté sud. Cet appartement offre de beaux volumes avec une entrée, un séjour lumineux de 62m2, une grande cuisine aménagée et équipée, deux chambres dont une de 27m2 pouvant être divisée en deux, une salle de bains, une salle d'eau et une buanderie. Une cave, deux places de parking en sous-sol dont un box et deux places de parking en extérieur complètent ce bien. visite virtuelle disponible.
Voir plus

Référence: 661
Barème des honoraires
DPE
A
B
C
D
E
F
G
GES
A
B
C
D
E
F
G
Appartement à SENLIS
Appartement à SENLIS
Appartement à SENLIS
Appartement à SENLIS
Appartement à SENLIS
Appartement à SENLIS
Appartement à SENLIS
Appartement à SENLIS
Géorisques

Les informations sur les risques auxquels ce bien est exposé sont disponibles sur le site Géorisques : www.georisques.gouv.fr

Ce site est protégé par hCaptcha Politique de confidentialité et Conditions d’utilisation s’appliquent.

En poursuivant votre navigation sans modifier vos paramètres, vous acceptez l'utilisation de cookies susceptibles de réaliser des statistiques de visite. Cliquez ici pour plus d'informations