Bénéficiez des services de nos partenaires locaux soigneusement sélectionnés
pour vous accompagner dans votre parcours d'achat immobilier

 bel appartement au calme absolu.

— Biarritz 64200 —
550 000 €
133 m²
4 pièces

Nos partenaires locaux
Au calme absolu d’une impasse du quartier Lahouze.
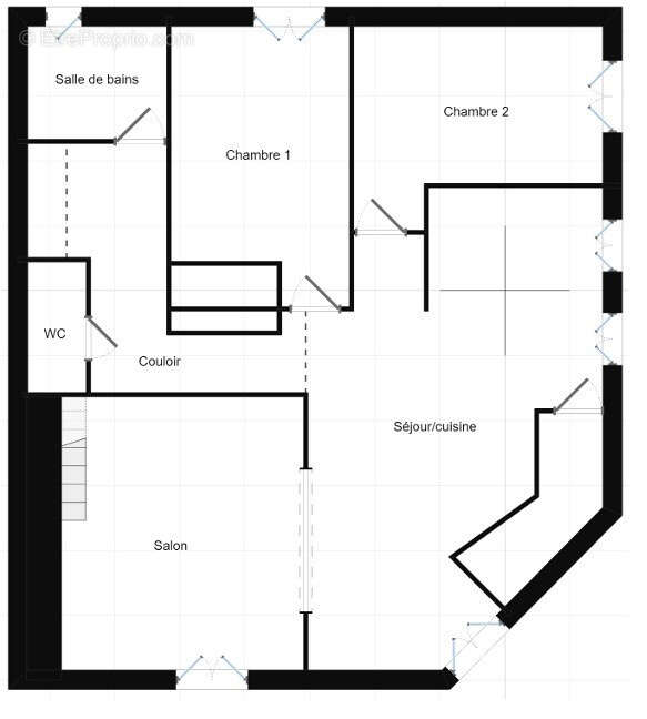
Au sein d’une petite copropriété bien entretenue, disposant de son entrée indépendante comme une maison, magnifique duplex d’environ 97m2 carrez, 133 au sol..
Composé d’une entrée, une belle pièce de vie lumineuse avec cuisine aménagée ouverte sur le double séjour avec salon cheminé. 2 chambres, une salle de bain et un WC indépendant complètent le niveau.
L’étage offre un bel espace aménagé ce jour en chambre et bureau avec salle d’eau avec WC.
L’appartement est en très bon état, aucune annomaile électrique, double vitrage partout, beaucoup de charme, beau parquet massif, belle hauteur sous plafond.
La copropriété autorise la création d’un balcon.
Coté copropriété, ravalement de façade et travaux de toiture en 2018, pas de travaux à venir.
Charges de copropriété environ 152€ par an.
Premiers commerces supérette, presse, boulangerie à seulement 150 mètres, navette gratuite au bout de la rue, médiathèque à 800mètres.
DPE en F - estimation des couts annuels d'énergie du logement entre 2940€ et 4020€ / an, abonnement compris.
Voir plus

Référence: 1319
Bien en copropriété. Nombre de lots : 5.
Honoraires d'agence de 5% à la charge de l'acquéreur
Barème des honoraires
DPE
A
B
C
D
E
F
G
GES
A
B
C
D
E
F
G

Prêt immobilier

Vous souhaitez connaître votre capacité d’emprunt et trouver le meilleur crédit immobilier ?
Réaliser une simulation gratuite

Appartement à BIARRITZ
Appartement à BIARRITZ
Appartement à BIARRITZ
Appartement à BIARRITZ
Appartement à BIARRITZ
Appartement à BIARRITZ
Appartement à BIARRITZ
Appartement à BIARRITZ
Appartement à BIARRITZ
Appartement à BIARRITZ
Appartement à BIARRITZ
Appartement à BIARRITZ
Appartement à BIARRITZ
Appartement à BIARRITZ
Ce site est protégé par reCAPTCHA la Politique de confidentialité et les Conditions d’utilisation de Google s’appliquent.
Obtenir un prêt immobilier au meilleur taux ?

En poursuivant votre navigation sans modifier vos paramètres, vous acceptez l'utilisation de cookies susceptibles de réaliser des statistiques de visite. Cliquez ici pour plus d'informations