Nouveauté appartement t3 dans une résidence de standing proche tours

— La Riche 37520 —
299 000 €
69 m²
3 pièces
balcon/terrasse

Idéalement située, dans une rue paisible, face au jardin botanique, à proximité immédiate des commerces, des transports (Place Sainte-Anne à 250m), ainsi que du centre historique de Tours, cette nouvelle résidence allie élégance, confort et qualité de vie.

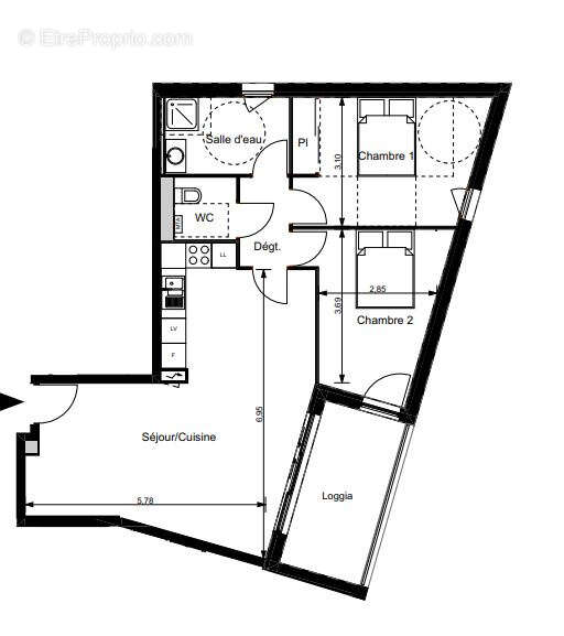
Venez découvrir ce charmant appartement de Type 3 de 68m2, avec une pièce de vie ouvrant sur la cuisine de près de 33m2, une chambre avec placard de 13m2, une seconde chambre 11.46 m2, une salle d'eau et un WC indépendant. Et vous pourrez profiter d'un loggia de 8.1 m2.
Cette résidence à taille humaine séduit par son architecture classique, sobre et contemporaine, parfaitement intégrée dans son environnement.
Pensée pour le bien-être au quotidien, elle offre des prestations haut de gamme :


Volets roulants électriques


Double vitrage performant


Chauffage urbain


Parquet dans les pièces de vie


Serrure de sécurité 5 points


Salles de bain et salles d’eau entièrement équipées


Placards intégrés et aménagés


Accès sécurisé avec contrôle d’accès et vidéophone


Que vous recherchiez une résidence principale, un pied-à-terre ou un investissement patrimonial, cette adresse rare vous garantit un cadre de vie privilégié, au cœur d’un quartier prisé de Tours.
Opportunité à ne pas manquer Contactez-nous dès maintenant pour plus d’informations et pour réserver votre futur logement.
Le bien est soumis au statut de la copropriété, Pas de procédure en cours.
25 lots principaux
2031 € de charges annuelles dont 1095 € consommations au compteur individuel ( chauffage et eau)
Pour visiter, contactez Anaïs JOURDAN (E.I.) [Coordonnées masquées]
Clemente & Partners by Connecta RCS Tours 899 795 165
Consultez les risques naturels et technologiques auxquels ce bien est exposé sur le site :www.georisques.gouv.fr - Annonce rédigée et publiée par un Agent Mandataire -
Voir plus

Référence: 3205
Bien en copropriété. Nombre de lots : 25. Charges de copropriété : 2031 €.
Honoraires à la charge du vendeur.
Barème des honoraires
DPE
A
B
C
D
E
F
G
GES
A
B
C
D
E
F
G

Prêt immobilier

Vous souhaitez connaître votre capacité d’emprunt et trouver le meilleur crédit immobilier ?
Réaliser une simulation gratuite

Appartement à LA RICHE
Appartement à LA RICHE
Appartement à LA RICHE
Appartement à LA RICHE
Appartement à LA RICHE
Appartement à LA RICHE
Ce site est protégé par reCAPTCHA la Politique de confidentialité et les Conditions d’utilisation de Google s’appliquent.
Obtenir un prêt immobilier au meilleur taux ?

En poursuivant votre navigation sans modifier vos paramètres, vous acceptez l'utilisation de cookies susceptibles de réaliser des statistiques de visite. Cliquez ici pour plus d'informations