Bénéficiez des services de nos partenaires locaux soigneusement sélectionnés
pour vous accompagner dans votre parcours d'achat immobilier

Commerce 187m² à bordeaux

— Bordeaux 33000 —
693 550 €
187 m²
ascenseur

Nos partenaires locaux
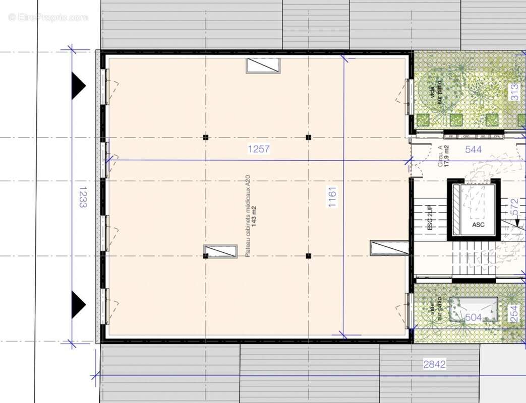
PLATEAU MEDICAL AMENAGEABLE SUR MESURE AVEC ROOFTOP VUE GARONNE

Située sur la rive droite de Bordeaux, à proximité immédiate de la place Stalingrad, cette maison médicale s'inscrit dans un quartier dynamique en pleine transformation. Ce projet architectural soigné propose un cadre de travail qualitatif et lumineux, conçu pour favoriser la pratique collaborative de la médecine.

Ce plateau brut de 143 m² (187 m² au total avec la quote-part des parties communes) permet la création de plusieurs cabinets médicaux, avec un agencement entièrement personnalisable en collaboration avec un architecte, afin de répondre au mieux à vos besoins professionnels.

L'ensemble bénéficie de prestations pensées pour le confort et la performance au quotidien : un ascenseur monte brancard, des charges maîtrisées grâce à une pompe à chaleur couplée à des panneaux photovoltaïques, une ventilation performante assurant un renouvellement d'air de 30 m³/h par occupant, ainsi qu'un traitement acoustique renforcé entre les cabinets pour garantir la confidentialité des consultations.

En point d'orgue, un espace commun situé au dernier étage : un rooftop avec vue dégagée sur la Garonne et 43 m2 de terrasse avec une cuisine et une salle de repos. Un espace de détente et de convivialité entièrement dédié aux praticiens, idéal pour échanger, prendre un temps de pause ou simplement profiter d'un environnement apaisant entre deux consultations.

- Prix Plateau HT : 693?550€
- Prix Plateau TTC : 832 260€
- Prix Fini HT : 779 350€
- Prix Fini TTC : 935 220€
- Frais de Notaires Réduits
- Garanties
- ...

PLATEAU MEDICAL AMENAGEABLE SUR MESURE AVEC ROOFTOP VUE GARONNE

Honoraires à la charge du vendeur. Dans une copropriété de 19 lots. Aucune procédure n'est en cours. DPE en cours. Les informations sur les risques auxquels ce bien est exposé sont disponibles sur le site Géorisques : georisques.gouv.fr.

Votre conseiller RH Patrimoine : Maxime HERVE
Agent commercial (Entreprise individuelle)
RSAC 133095555 J
RCP 13309666 J
Voir plus

Référence: VP084-RHPATRI
Bien en copropriété. Nombre de lots : 19.
Honoraires à la charge du vendeur.
Barème des honoraires

Prêt immobilier

Vous souhaitez connaître votre capacité d’emprunt et trouver le meilleur crédit immobilier ?
Réaliser une simulation gratuite

Commerce à BORDEAUX
Commerce à BORDEAUX
Commerce à BORDEAUX
Commerce à BORDEAUX
Ce site est protégé par reCAPTCHA la Politique de confidentialité et les Conditions d’utilisation de Google s’appliquent.
Obtenir un prêt immobilier au meilleur taux ?

En poursuivant votre navigation sans modifier vos paramètres, vous acceptez l'utilisation de cookies susceptibles de réaliser des statistiques de visite. Cliquez ici pour plus d'informations