Bénéficiez des services de nos partenaires locaux soigneusement sélectionnés
pour vous accompagner dans votre parcours d'achat immobilier

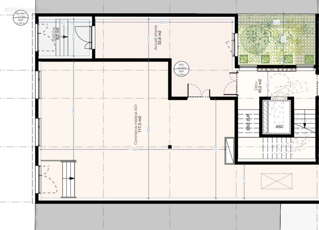
Commerce 118m² à bordeaux

— Bordeaux 33000 —
355 200 €
118 m²

Nos partenaires locaux
AMENAGEZ VOTRE CABINET MEDICAL A VOTRE IMAGE DANS UN CADRE IDEAL A BORDEAUX

Situé au coeur de Bordeaux, ce pôle médical à l'architecture contemporaine a été conçu pour offrir un cadre de travail à la fois fonctionnel et agréable, idéal pour les professionnels de santé souhaitant exercer dans un environnement moderne. Pensé pour favoriser les consultations pluridisciplinaires, ce lieu accueille des praticiens aux spécialités variées, facilitant ainsi la coordination des soins et la satisfaction des patients.

Un plateau de 118 m², entièrement modulable, est disponible au sein de cette structure à taille humaine. Vous avez la possibilité de l'aménager selon vos besoins spécifiques, avec le soutien de l'architecte du projet, qui peut vous accompagner dans la conception et la réalisation de votre espace de soins personnalisé.

L'ensemble a été conçu avec une attention particulière portée au confort et à la performance : consommation énergétique optimisée grâce à l'association d'une pompe à chaleur et de panneaux solaires, renouvellement d'air régulier à hauteur de 30 m³/h par personne, et traitement acoustique renforcé pour garantir la confidentialité des échanges.
Enfin, situé en rez-de-chaussée, ce plateau offre l'avantage de ne pas être concerné par les charges de copropriété relatives à l'ascenseur et aux parties communes des étages supérieurs.

Un espace professionnel à votre image vous attend, au sein d'un cadre propice à une pratique sereine et efficace.

- Prix Plateau HT : 355 200€
- Prix Plateau TTC : 426 240€
- Prix Fini HT : 426?060€
- Prix Fini TTC : 511 272€
- Frais de Notaires Réduits
- Garanties
- ...

AMENAGEZ VOTRE CABINET MEDICAL A VOTRE IMAGE DANS UN CADRE IDEAL A BORDEAUX

Honoraires à la charge du vendeur. Dans une copropriété de 19 lots. Aucune procédure n'est en cours. DPE en cours. Les informations sur les risques auxquels ce bien est exposé sont disponibles sur le site Géorisques : georisques.gouv.fr.

Votre conseiller RH Patrimoine : Maxime HERVE
Agent commercial (Entreprise individuelle)
RSAC 133095555 J
RCP 13309666 J
Voir plus

Référence: VP085-RHPATRI
Bien en copropriété. Nombre de lots : 19.
Honoraires à la charge du vendeur.
Barème des honoraires

Prêt immobilier

Vous souhaitez connaître votre capacité d’emprunt et trouver le meilleur crédit immobilier ?
Réaliser une simulation gratuite

Commerce à BORDEAUX
Commerce à BORDEAUX
Commerce à BORDEAUX
Ce site est protégé par reCAPTCHA la Politique de confidentialité et les Conditions d’utilisation de Google s’appliquent.
Obtenir un prêt immobilier au meilleur taux ?

En poursuivant votre navigation sans modifier vos paramètres, vous acceptez l'utilisation de cookies susceptibles de réaliser des statistiques de visite. Cliquez ici pour plus d'informations