Pas de terrain à Le Tourne pour le moment. Découvrez dès maintenant les terrains dans le département Gironde.
Bénéficiez des services de nos partenaires locaux soigneusement sélectionnés
pour vous accompagner dans votre parcours d'achat immobilier

Appartement 2 pièces - st andre de cubzac

— Saint-Andre-De-Cubzac 33240 —
98 100 €
37 m²
2 pièces
parking

Nos partenaires locaux
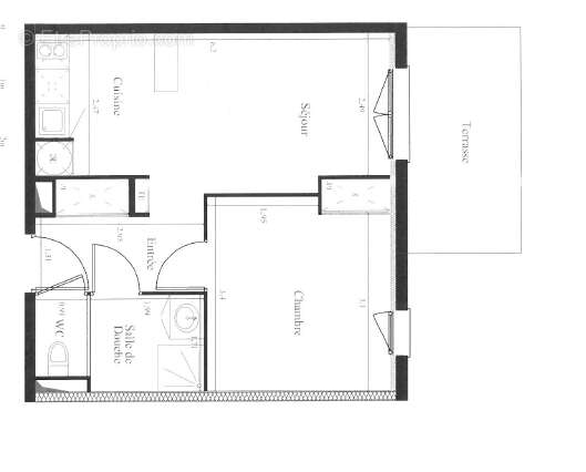
Dans résidence récente et sécurisée, appartement T2 en RDC de 37m², comprenant entrée avec placard, cuisine américaine aménagée et semi-équipée, séjour, chambre avec placard, salle de bain, WC. Terrasse de 8 m² avec jardinet, une place de parking privée. Vendu loué (Bail du 05/06/2015). Loyer actuel : 467.56 euros hors charges + 37 euros de provision pour charges par mois Contact : [Coordonnées masquées] Taxe Foncière : 476 euros / an DPE : C / GES : A Charges moyennes de copropriété: 747 euros / an (dont charges récupérable auprès du locataire : 518 euros ). Prix : 90 000 euros euros + 9% frais d'agence à la charge de l'acquéreur. Les informations sur les risques auxquels ce bien est exposé sont disponibles sur le site Géorisques : www.georisques.gouv.fr (9.00 % honoraires TTC à la charge de l'acquéreur.) Copropriété de 51 lots (Pas de procédure en cours). Charges annuelles : 747 euros.
Voir plus

Référence: 1525
Bien en copropriété. Nombre de lots : 51. Charges de copropriété : 747 €.
Honoraires d'agence de 9% à la charge de l'acquéreur
DPE
A
B
C
D
E
F
G
GES
A
B
C
D
E
F
G

Prêt immobilier

Vous souhaitez connaître votre capacité d’emprunt et trouver le meilleur crédit immobilier ?
Réaliser une simulation gratuite

Appartement à SAINT-ANDRE-DE-CUBZAC
Appartement à SAINT-ANDRE-DE-CUBZAC
Appartement à SAINT-ANDRE-DE-CUBZAC
Appartement à SAINT-ANDRE-DE-CUBZAC
Appartement à SAINT-ANDRE-DE-CUBZAC
Appartement à SAINT-ANDRE-DE-CUBZAC
Appartement à SAINT-ANDRE-DE-CUBZAC
Ce site est protégé par reCAPTCHA la Politique de confidentialité et les Conditions d’utilisation de Google s’appliquent.
Obtenir un prêt immobilier au meilleur taux ?

En poursuivant votre navigation sans modifier vos paramètres, vous acceptez l'utilisation de cookies susceptibles de réaliser des statistiques de visite. Cliquez ici pour plus d'informations