Bénéficiez des services de nos partenaires locaux soigneusement sélectionnés
pour vous accompagner dans votre parcours d'achat immobilier

Appartement 1500m² à montaigu

— Montaigu 85600 —
1 024 000 €
1 500 m²

Nos partenaires locaux
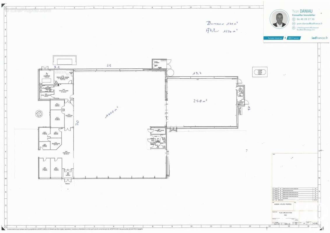
Iad France - Yvan Daniau ([Coordonnées masquées]) vous propose : MONTAIGU VENDEE sur la commune de Boufféré à 300 m de l'accès direct au péage autoroute Nantes / Bordeaux.
Bâtiment de 1400 m² environ comprenant 170 m² environ de bureaux, coin repos, vestiaires, 1250 m² environ en local d'activité et environ 200 m² environ de planchers bétons aménageables.
Ce bâtiment est agrandissable à souhait sur un terrain de 4 400 m² environ entièrement clos et bitumé, parking...
Deux configurations possibles...
La 1ère en l'état actuel zones cloisonnées démontables (suivant votre activité). Le tout climatisé
La 2ème décloisonnée, le devis de ces travaux est quantifié et à discuter suivant l'activité qu'il va en être faite.
Tout est envisageable et peut être ou non conservé.
Voir les 2 dernières photos jointes à l'annonce
Chauffage gaz, groupe froid, groupe électrogène, onduleur, centrale de traitement de l'air
Accès PMR et sécurisé 2 portails coulissants extérieurs permettant un flux d'entrée sortie en toute sécurité.
À visiter sans tarder...

Information d'affichage énergétique sur le bien associé à cette annonce : DPE NS indice 0 et GES NS indice 0. La présente annonce immobilière a été rédigée sous la responsabilité éditoriale de M. Yvan Daniau (ID 21370), Agent Commercial mandataire en immobilier immatriculé au Registre Spécial des Agents Commerciaux (RSAC) du Tribunal de Commerce de LA ROCHE SUR YON sous le numéro 504419409
Retrouvez tous nos biens sur notre site internet. www.iadfrance.fr.
Informations LOI ALUR :
Honoraires charge vendeur. (gedeon_6727_31384266)
Voir plus

Référence: 1780771
Honoraires à la charge du vendeur.

Prêt immobilier

Vous souhaitez connaître votre capacité d’emprunt et trouver le meilleur crédit immobilier ?
Réaliser une simulation gratuite

Photo 1 - Appartement à MONTAIGU
Photo 1
Photo 2 - Appartement à MONTAIGU
Photo 2
Photo 3 - Appartement à MONTAIGU
Photo 3
Photo 4 - Appartement à MONTAIGU
Photo 4
Photo 5 - Appartement à MONTAIGU
Photo 5
Photo 6 - Appartement à MONTAIGU
Photo 6
Photo 7 - Appartement à MONTAIGU
Photo 7
Photo 8 - Appartement à MONTAIGU
Photo 8
Photo 9 - Appartement à MONTAIGU
Photo 9
Ce site est protégé par reCAPTCHA la Politique de confidentialité et les Conditions d’utilisation de Google s’appliquent.
Obtenir un prêt immobilier au meilleur taux ?

En poursuivant votre navigation sans modifier vos paramètres, vous acceptez l'utilisation de cookies susceptibles de réaliser des statistiques de visite. Cliquez ici pour plus d'informations