Bénéficiez des services de nos partenaires locaux soigneusement sélectionnés
pour vous accompagner dans votre parcours d'achat immobilier

Maison à vendre 5 pièces lussant (17)

— Lussant 17430 —
249 900 €
116 m² / 758 m²
5 pièces
parkingjardin

Nos partenaires locaux
Charmante maison à Lussant

Découvrez cette belle maison située dans la paisible commune de Lussant. Idéalement placée dans une rue calme, à seulement 7 minutes du Super U de Tonnay-Charente et à 3 minutes du péage de Cabariot, cette maison offre un cadre de vie agréable et pratique.

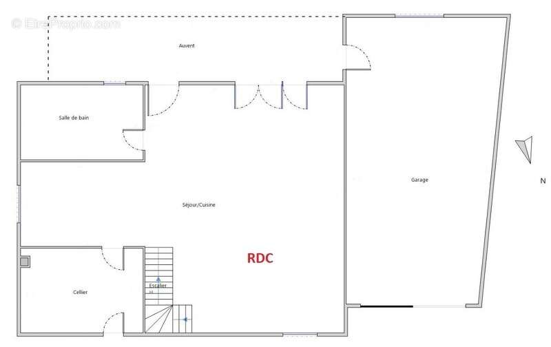
Rez-de-chaussée :

Entrée/cellier
Vaste séjour avec cuisine ouverte
Salle de bain avec WC

À l'étage :

3 chambres avec placards
Salle d'eau avec WC

Extérieur :

Garage de 43 m² avec galetas, offrant un vaste espace de stockage
Cuisine d'été
Auvent

Jardin clos et arboré de 760 m²

Cette maison est parfaite pour une famille cherchant confort et tranquillité, tout en étant proche des commodités. Ne manquez pas cette opportunité unique ! Les honoraires d'agence sont à la charge de l'acquéreur, soit 4,13% TTC du prix hors honoraires.
Les informations sur les risques auxquels ce bien est exposé sont disponibles sur le site Géorisques : www. georisques. gouv. fr.

Réseau Immobilier CAPIFRANCE - Votre agent commercial (RSAC N°750 614 380 - Greffe de LA ROCHELLE) Jérémy VERVENNE Entrepreneur Individuel [Coordonnées masquées] - Réf.887542
Voir plus

Référence: 340933476841
DPE
A
B
C
D
E
F
G
GES
A
B
C
D
E
F
G

Prêt immobilier

Vous souhaitez connaître votre capacité d’emprunt et trouver le meilleur crédit immobilier ?
Réaliser une simulation gratuite

Maison à LUSSANT
Maison à LUSSANT
Maison à LUSSANT
Maison à LUSSANT
Maison à LUSSANT
Maison à LUSSANT
Maison à LUSSANT
Maison à LUSSANT
Maison à LUSSANT
Maison à LUSSANT
Maison à LUSSANT
Maison à LUSSANT
Maison à LUSSANT
Ce site est protégé par reCAPTCHA la Politique de confidentialité et les Conditions d’utilisation de Google s’appliquent.
Obtenir un prêt immobilier au meilleur taux ?

En poursuivant votre navigation sans modifier vos paramètres, vous acceptez l'utilisation de cookies susceptibles de réaliser des statistiques de visite. Cliquez ici pour plus d'informations