Bénéficiez des services de nos partenaires locaux soigneusement sélectionnés
pour vous accompagner dans votre parcours d'achat immobilier

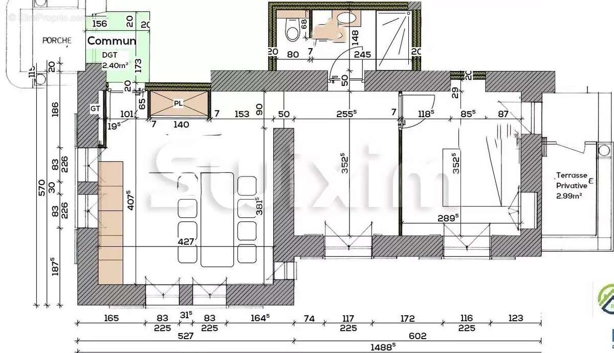
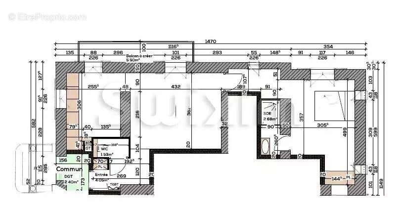
Appartement t2 challes les eaux centre

— Challes-Les-Eaux 73190 —
215 000 €
40 m²
2 pièces

Nos partenaires locaux
3071KG : Venez découvrir ce T2 situé dans une résidence de style avec beaucoup de cachet, au coeur d'un parc et à deux pas des commerces du centre ville de Challes Les Eaux. Entièrement rénové, il vous séduira par ses prestations, sa distribution, son emplacement. Il est situé au rez-de-chaussée surélevé et bénéficie d'un petit jardin.
Chauffage par pompe à chaleur.
Contactez-nous pour plus d'informations! Agent commercial indépendant Swixim sur votre secteur : [Coordonnées masquées] Honoraires à la charge du vendeur - Nombre de lots dans la copropriété: 5 - Montant estimé des dépenses annuelles d'énergie pour un usage standard, établi à partir des prix de l'énergie de l'année 2021 : 562€ ~ 762€ - Les informations sur les risques auxquels ce bien est exposé sont disponibles sur le site Géorisques : www.georisques.gouv.fr
Voir plus

Référence: 85990045
Barème des honoraires
DPE
A
B
C
D
E
F
G
GES
A
B
C
D
E
F
G

Prêt immobilier

Vous souhaitez connaître votre capacité d’emprunt et trouver le meilleur crédit immobilier ?
Réaliser une simulation gratuite

Appartement à CHALLES-LES-EAUX
Appartement à CHALLES-LES-EAUX
Appartement à CHALLES-LES-EAUX
Appartement à CHALLES-LES-EAUX
Ce site est protégé par reCAPTCHA la Politique de confidentialité et les Conditions d’utilisation de Google s’appliquent.
Obtenir un prêt immobilier au meilleur taux ?

En poursuivant votre navigation sans modifier vos paramètres, vous acceptez l'utilisation de cookies susceptibles de réaliser des statistiques de visite. Cliquez ici pour plus d'informations