Bénéficiez des services de nos partenaires locaux soigneusement sélectionnés
pour vous accompagner dans votre parcours d'achat immobilier

Immeuble pleine propriété nice nord villa arson/cessole

— Nice 06000 —
1 260 000 €
266 m²

Nos partenaires locaux
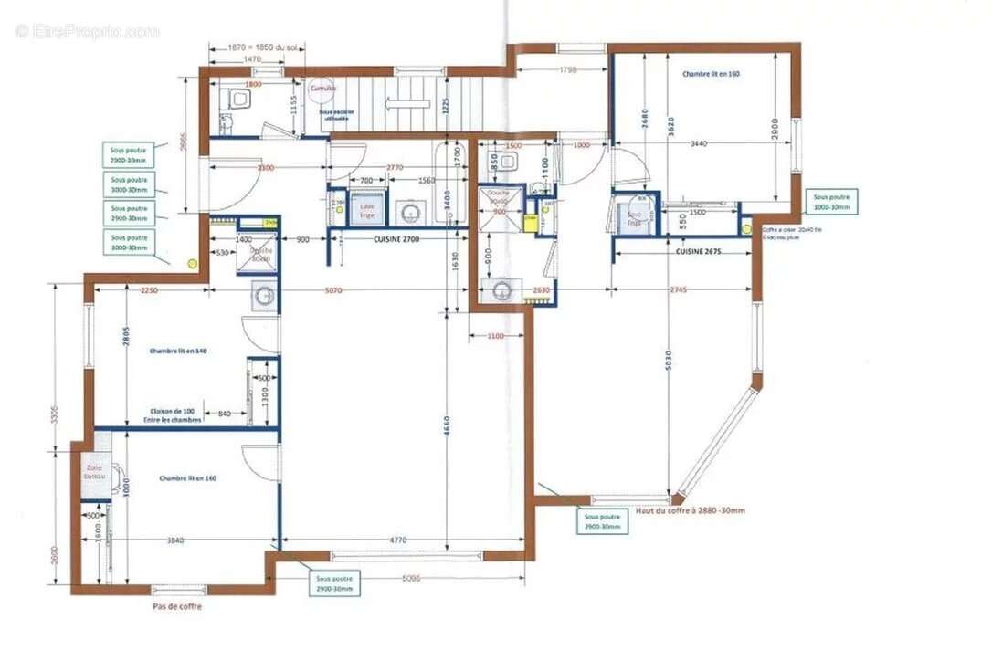
Situé dans le quartier recherché de la Villa Arson à Nice, à proximité immédiate du tramway. de la gare SNCF et avec un accès rapide à l’autoroute et à la voie rapide. cet immeuble en pleine propriété représente une opportunité rare d’investissement locatif sécurisé.

L’immeuble. en excellent état général. se compose de six logements répartis comme suit :
• 2 appartements de type 3 pièces
• 3 appartements de type 2 pièces
• 1 studio
Chaque appartement dispose d'un extérieur allant de 75m2 et 43m2 pour les rdj. à 11m2 pour les derniers étages
L’ensemble des logements est loué à des locataires fiables. garantissant une rentabilité immédiate et stable. Loyer annuel 63120€+ 3840€ de provisions sur charges. Soit un loyer annuel de 66960€

Le bien dispose également d’un grand garage avec trois stationnements privatifs. un atout majeur en zone urbaine.
Le tout est niché dans une impasse au calme absolu. offrant une grande tranquillité à ses occupants tout en bénéficiant d’un emplacement ultra-connecté.
Voir plus

Référence: 85990318

Prêt immobilier

Vous souhaitez connaître votre capacité d’emprunt et trouver le meilleur crédit immobilier ?
Réaliser une simulation gratuite

Appartement à NICE
Appartement à NICE
Appartement à NICE
Appartement à NICE
Appartement à NICE
Appartement à NICE
Appartement à NICE
Appartement à NICE
Appartement à NICE
Appartement à NICE
Appartement à NICE
Appartement à NICE
Appartement à NICE
Appartement à NICE
Appartement à NICE
Appartement à NICE
Appartement à NICE
Appartement à NICE
Appartement à NICE
Appartement à NICE
Appartement à NICE
Ce site est protégé par reCAPTCHA la Politique de confidentialité et les Conditions d’utilisation de Google s’appliquent.
Obtenir un prêt immobilier au meilleur taux ?

En poursuivant votre navigation sans modifier vos paramètres, vous acceptez l'utilisation de cookies susceptibles de réaliser des statistiques de visite. Cliquez ici pour plus d'informations