Bénéficiez des services de nos partenaires locaux soigneusement sélectionnés
pour vous accompagner dans votre parcours d'achat immobilier

Appartement 80m² à lorient

— Lorient 56100 —
195 000 €
80 m²
4 pièces
parkingbalcon/terrasse

Nos partenaires locaux
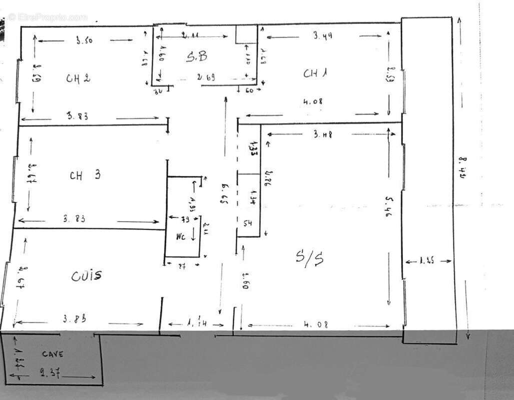
Situé au 3? et dernier étage d'une petite copropriété sans ascenseur, cet appartement T4 de près de 80 m² vous séduira par sa luminosité, son grand balcon exposé et sa localisation recherchée, au coeur du quartier du Ter à Lorient.


L'entrée dessert un couloir qui vous mène vers une cuisine indépendante, complétée par une arrière-cuisine très pratique pour le rangement. Le salon de 22 m² s'ouvre directement sur un grand balcon, idéal pour profiter de l'extérieur aux beaux jours. Côté nuit, vous disposez de trois chambres, dont l'une avec un accès direct au balcon. Une salle de bain, des WC séparés et de nombreux rangements complètent l'ensemble ainsi qu'un stationnement extérieur privatif.


L'appartement bénéficie d'une bonne isolation avec menuiseries en PVC double vitrage (dernières fenêtres changées en 2022), VMC, et chaudière gaz récente installée en 2025.


Un bien qui conviendra aussi bien à une famille qu'à un investissement locatif, à deux pas du Ter, du secteur de la base ainsi que Larmor Plage.
Un appartement comme celui-ci mérite d'être vu ! Je suis à votre disposition pour en discuter au : [Coordonnées masquées]

Honoraires inclus de 4% TTC à la charge de l'acquéreur. Prix hors honoraires 187 500 €. Dans une copropriété de 164 lots. Aucune procédure n'est en cours. Classe énergie D, Classe climat D Montant estimé des dépenses annuelles d'énergie pour un usage standard : entre 1660.00 € et 2310.00 € sur les années 2021, 2022 et 2023 (abonnements compris). Les informations sur les risques auxquels ce bien est exposé sont disponibles sur le site Géorisques : georisques.gouv.fr.

Votre conseiller BICOQUE : Arnaud Kauffmann
Agent commercial (Entreprise individuelle)
RSAC 850 725 847 00030
Voir plus

Référence: 150-BICOQUE
Bien en copropriété. Nombre de lots : 164.
Honoraires d'agence de 4% à la charge de l'acquéreur
Barème des honoraires
DPE
A
B
C
D
E
F
G
GES
A
B
C
D
E
F
G

Prêt immobilier

Vous souhaitez connaître votre capacité d’emprunt et trouver le meilleur crédit immobilier ?
Réaliser une simulation gratuite

Appartement à LORIENT
Appartement à LORIENT
Appartement à LORIENT
Appartement à LORIENT
Appartement à LORIENT
Appartement à LORIENT
Appartement à LORIENT
Ce site est protégé par reCAPTCHA la Politique de confidentialité et les Conditions d’utilisation de Google s’appliquent.
Obtenir un prêt immobilier au meilleur taux ?

En poursuivant votre navigation sans modifier vos paramètres, vous acceptez l'utilisation de cookies susceptibles de réaliser des statistiques de visite. Cliquez ici pour plus d'informations