Bénéficiez des services de nos partenaires locaux soigneusement sélectionnés
pour vous accompagner dans votre parcours d'achat immobilier

Maison 80m² à pouzauges

— Pouzauges 85700 —
117 600 €
80 m²
4 pièces

Nos partenaires locaux
Iad France - Sylvain Gautret vous propose : Maison 4 pièces avec jardin et garage à Pouzauges

Découvrez cette maison de 4 pièces située à Pouzauges. À seulement 20 minutes des Herbiers et de Chantonnay, ainsi que 30 minutes de Bressuire, vous serez idéalement situé pour profiter des commodités environnantes tout en bénéficiant de la tranquillité d'un quartier résidentiel proche du vieux Pouzauges.

Descriptif du bien

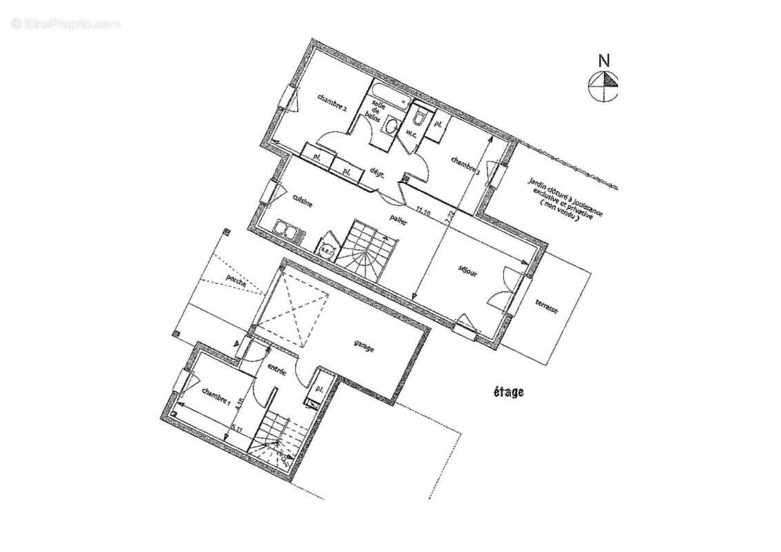
Construite en 2009, cette maison de 80,23 m² présente de nombreux atouts :

Rez-de-chaussée : une première chambre, attenante à un garage privatif, idéal pour le stockage ou le stationnement sécurisé.

À l'étage : une cuisine ouverte sur une pièce de vie lumineuse, une salle de bain avec WC séparé, ainsi que deux chambres équipées de placards intégrés.

Pour votre confort, la maison dispose d'une pompe à chaleur air / air installée en 2023, assurant un confort thermique optimal en hiver comme en été. DPE C.

Actuellement loué 700 euros par mois + 40 euros par mois de charges récupérables auprès locataire.

Extérieurs

Un jardin privatif à usage exclusif d'environ 218 m², entouré de verdure, ainsi qu'une terrasse vous offriront un espace de détente parfait pour profiter des beaux jours en toute intimité.

Informations complémentaires

Les charges de copropriété couvrent :

La gestion des ordures ménagères.
L'entretien du parc paysager de la copropriété.
La présence d'un gardien chargé de la maintenance de la résidence, garantissant un environnement toujours soigné.

Pour plus d'informations ou pour organiser une visite, n'hésitez pas à me contacter !




La presente annonce immobiliere vise 1 lot situé dans une copropriété de 194 lots au total et ne faisant l'objet d'aucune procédure en cours citée à l'article L. 721-1 du code de la construction et de l'habitation. Montant moyen mensuel de charges déclaré par le vendeur : 97.33¤ par mois (soit 1168 ¤ annuel). Honoraires d'agence à la charge du vendeur.
Information d'affichage énergétique sur ce bien : classe ENERGIE C indice 175 et classe CLIMAT A indice 5. Les informations sur les risques auxquels ce bien est exposé, y compris l'obligation légale de débroussaillement, sont disponibles sur le site Géorisques : http://www.georisques.gouv.fr.
La présente annonce immobilière a été rédigée sous la responsabilité éditoriale de M Sylvain Gautret mandataire indépendant en immobilier (sans détention de fonds), agent commercial de la SAS I@D France immatriculé au RSAC de La Roche-Sur-Yon sous le numéro 947936142, titulaire de la carte de démarchage immobilier pour le compte de la société I@D France SAS.
Informations LOI ALUR :
Soumis au régime de copropriété.
Nombre de lots : 194.
Quote part annuelle(moyenne) : 1168 euros.
Honoraires charge vendeur. (gedeon_6727_31390556)
Voir plus

Référence: 1782636
Bien en copropriété. Nombre de lots : 194. Charges de copropriété : 1168 €.
Honoraires à la charge du vendeur.
DPE
A
B
C
D
E
F
G
GES
A
B
C
D
E
F
G

Prêt immobilier

Vous souhaitez connaître votre capacité d’emprunt et trouver le meilleur crédit immobilier ?
Réaliser une simulation gratuite

Photo 1 - Maison à POUZAUGES
Photo 1
Photo 2 - Maison à POUZAUGES
Photo 2
Photo 3 - Maison à POUZAUGES
Photo 3
Photo 4 - Maison à POUZAUGES
Photo 4
Photo 5 - Maison à POUZAUGES
Photo 5
Photo 6 - Maison à POUZAUGES
Photo 6
Photo 7 - Maison à POUZAUGES
Photo 7
Photo 8 - Maison à POUZAUGES
Photo 8
Photo 9 - Maison à POUZAUGES
Photo 9
Ce site est protégé par reCAPTCHA la Politique de confidentialité et les Conditions d’utilisation de Google s’appliquent.
Obtenir un prêt immobilier au meilleur taux ?

En poursuivant votre navigation sans modifier vos paramètres, vous acceptez l'utilisation de cookies susceptibles de réaliser des statistiques de visite. Cliquez ici pour plus d'informations