T2 48m² avec terrasse, résidence neuve à idron

— Idron 64320 —
190 000 €
48 m²
2 pièces
parkingbalcon/terrasseascenseur

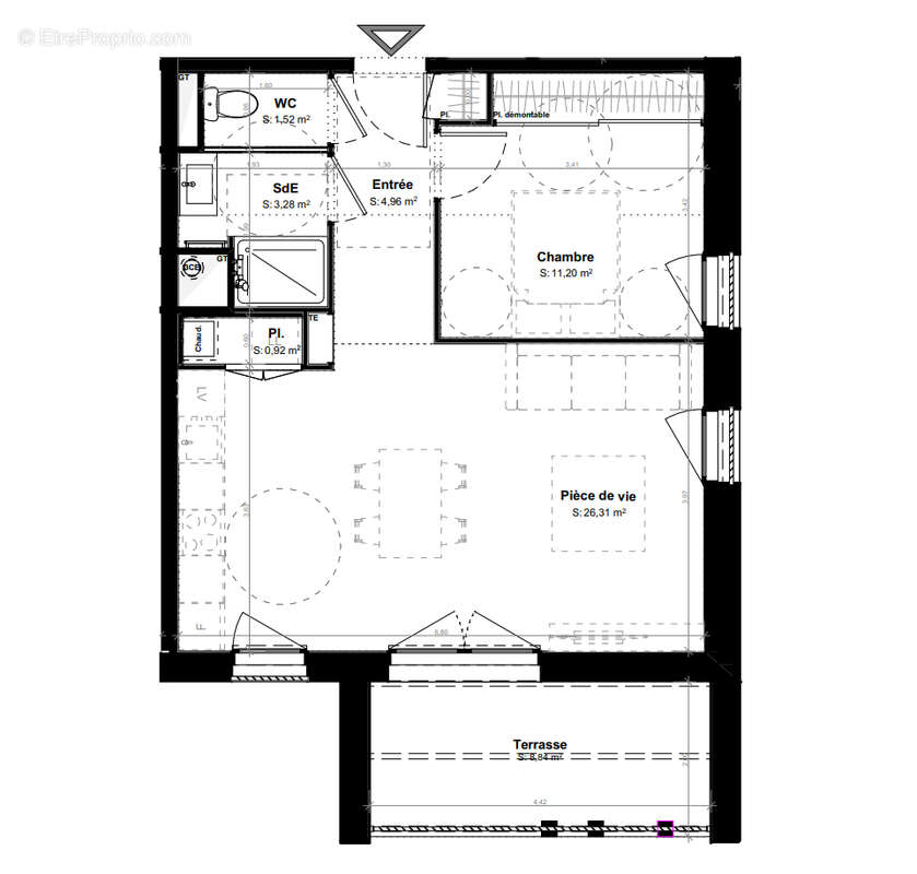
Découvrez cet appartement T2 neuf de 48 m² au 1er étage avec terrasse de 8,8m², situé à Idron, à seulement 10 minutes de Pau. Ce bien rare offre un cadre de vie paisible, dans un environnement résidentiel arboré et à proximité immédiate des commodités. L'appartement se compose d'une pièce de vie lumineuse avec grande baie vitrée donnant sur la terrasse, d'une chambre avec placard, d'une salle d'eau moderne avec douche, WC séparé, d'une entrée avec rangements et d'un cellier pratique. Les prestations sont de qualité : carrelage grand format, parquet dans la chambre, volets roulants électriques, chaudière gaz individuelle, fibre optique, isolation renforcée (RE2020), et place de stationnement privative incluse. Situé à deux pas des écoles, commerces, transports et du chemin Henri IV, ce logement est idéal pour une résidence principale comme pour un investissement locatif (éligible Loi Pinel). Le bien est également éligible au prêt à taux zéro (PTZ) pour les primo-accédants, et les frais de notaire sont réduits, ce qui en fait une opportunité à ne pas manquer. Livraison prévue : 2ème trimestre 2026 Contactez-nous pour plus d'informations ou organiser une visite. Copropriété de 18 lots (Pas de procédure en cours).
Voir plus

Bien en copropriété. Nombre de lots : 18.

Prêt immobilier

Vous souhaitez connaître votre capacité d’emprunt et trouver le meilleur crédit immobilier ?
Réaliser une simulation gratuite

Appartement à IDRON
Appartement à IDRON
Ce site est protégé par reCAPTCHA la Politique de confidentialité et les Conditions d’utilisation de Google s’appliquent.
Obtenir un prêt immobilier au meilleur taux ?

En poursuivant votre navigation sans modifier vos paramètres, vous acceptez l'utilisation de cookies susceptibles de réaliser des statistiques de visite. Cliquez ici pour plus d'informations