Bénéficiez des services de nos partenaires locaux soigneusement sélectionnés
pour vous accompagner dans votre parcours d'achat immobilier

Maison 7 pièces + terrain en zone ud à ballaison(74)

— Ballaison 74140 —
999 000 €
350 m² / 3 878 m²
7 pièces
parking

Nos partenaires locaux
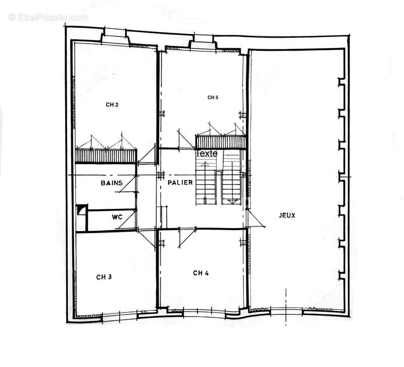
En exclusivité, dans un environnement calme et résidentiel sur la commune de Ballaison, venez découvrir cette maison familiale et authentique de 155 m² habitables soit 350 m2 utile.

Implantée sur une magnifique parcelle arborée de 3878m² en zone UD, avec vue lac, cette grande demeure offre un potentiel exceptionnel.
Elle vous offrira la possibilité de réaliser d'autres annexes.

La bâtisse se compose comme suite:

Au rez-de-chaussée, une cuisine indépendante, un grand séjour lumineux avec poêle à bois, une chambre, une salle de douche avec WC et une cave.

A l'étage: quatre chambres, une salle de bains, un wc séparé et une grande pièce à aménager.

Le dernier étage, des combles offre un beau potentiel à exploiter.

Afin de compléter ce bien, vous trouverez également un grand garage.

Bien d'exception rare à la vente, idéale investisseur.

À visiter sans tarder!!
Les honoraires sont à la charge du vendeur.
Les informations sur les risques auxquels ce bien est exposé sont disponibles sur le site Géorisques : www. georisques. gouv. fr.

Contactez Jennifer JUSSELIN Entrepreneur Individuel, Agent commercial OptimHome (RSAC N°499 623 163 Greffe de THONON LES BAINS) [Coordonnées masquées] (réf. 585529 )
Voir plus

Référence: 830033730661
Honoraires à la charge du vendeur.
DPE
A
B
C
D
E
F
G
GES
A
B
C
D
E
F
G

Prêt immobilier

Vous souhaitez connaître votre capacité d’emprunt et trouver le meilleur crédit immobilier ?
Réaliser une simulation gratuite

Maison à BALLAISON
Maison à BALLAISON
Maison à BALLAISON
Maison à BALLAISON
Maison à BALLAISON
Maison à BALLAISON
Maison à BALLAISON
Maison à BALLAISON
Maison à BALLAISON
Maison à BALLAISON
Maison à BALLAISON
Maison à BALLAISON
Maison à BALLAISON
Maison à BALLAISON
Maison à BALLAISON
Ce site est protégé par reCAPTCHA la Politique de confidentialité et les Conditions d’utilisation de Google s’appliquent.
Obtenir un prêt immobilier au meilleur taux ?

En poursuivant votre navigation sans modifier vos paramètres, vous acceptez l'utilisation de cookies susceptibles de réaliser des statistiques de visite. Cliquez ici pour plus d'informations