Bénéficiez des services de nos partenaires locaux soigneusement sélectionnés
pour vous accompagner dans votre parcours d'achat immobilier

Appartement 70m² à bayonne

— Bayonne 64100 —
406 000 €
70 m²
3 pièces
parkingbalcon/terrasseascenseur

Nos partenaires locaux
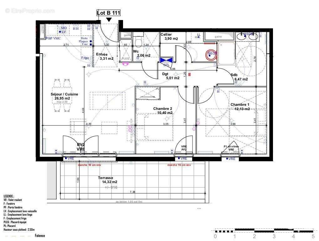
Iad France - Yannick Letellier ([Coordonnées masquées]) vous propose : Appartement T3 - Quartier Citadelle, Bayonne -

Découvrez ce bel appartement T3 de 70 m² environ situé dans le quartier en plein renouveau de la Citadelle à Bayonne, au sein d'une résidence intimiste de deux étages seulement. Vous profitez d'un environnement paisible, à proximité immédiate des commerces, des services essentiels, et à seulement 8 km des plages d'Anglet et de Tarnos.

L'appartement se compose d'un séjour avec cuisine ouverte de plus de 26 m² environ, ouvrant sur une terrasse de 14 m² environ, orientée plein sud, idéale pour profiter d'un bel ensoleillement toute la journée. Deux chambres confortables de plus de 10 m² environ chacune complètent ce bien, offrant un espace nuit fonctionnel et agréable.

L'emplacement est idéal : à 10 minutes à pied de la gare de Bayonne, 20 minutes du centre-ville, avec les transports en commun au pied de la résidence.

Je suis à votre disposition pour tout renseignement complémentaire.

Honoraires d'agence à la charge du vendeur. Bien non soumis au DPE. Les informations sur les risques auxquels ce bien est exposé sont disponibles sur le site Géorisques : www.georisques.gouv.fr. La présente annonce immobilière a été rédigée sous la responsabilité éditoriale de M. Yannick Letellier EI (ID 86279), mandataire indépendant en immobilier (sans détention de fonds), agent commercial de la SAS I@D France immatriculé au RSAC de BAYONNE sous le numéro 939717286, titulaire de la carte de démarchage immobilier pour le compte de la société I@D France SAS.
Retrouvez tous nos biens sur notre site internet. www.iadfrance.fr.
Informations LOI ALUR :
Honoraires charge vendeur. (gedeon_6727_31400022)
Voir plus

Référence: 1782001-3
Honoraires à la charge du vendeur.

Prêt immobilier

Vous souhaitez connaître votre capacité d’emprunt et trouver le meilleur crédit immobilier ?
Réaliser une simulation gratuite

Photo 1 - Appartement à BAYONNE
Photo 1
Photo 2 - Appartement à BAYONNE
Photo 2
Photo 3 - Appartement à BAYONNE
Photo 3
Ce site est protégé par reCAPTCHA la Politique de confidentialité et les Conditions d’utilisation de Google s’appliquent.
Obtenir un prêt immobilier au meilleur taux ?

En poursuivant votre navigation sans modifier vos paramètres, vous acceptez l'utilisation de cookies susceptibles de réaliser des statistiques de visite. Cliquez ici pour plus d'informations