Bénéficiez des services de nos partenaires locaux soigneusement sélectionnés
pour vous accompagner dans votre parcours d'achat immobilier

Commerce 164m² à bordeaux

— Bordeaux 33000 —
650 000 €
164 m²
ascenseur

Nos partenaires locaux
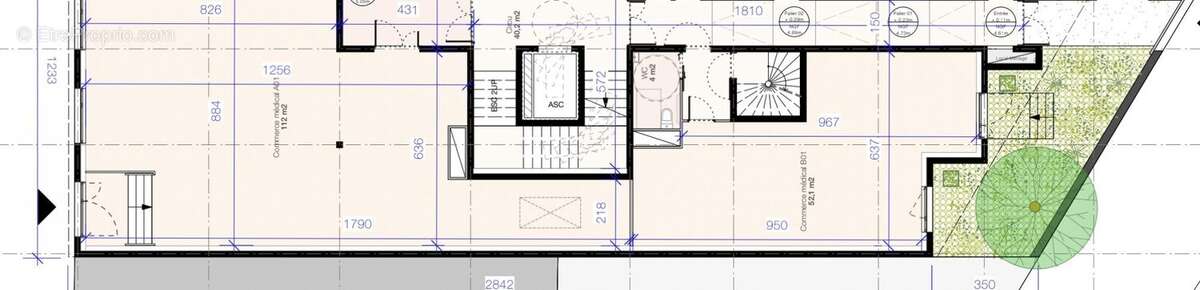
LOCALISATION IDEALE POUR PLATEAU AMENAGEABLE DANS UNE MAISON MEDICALE

Idéalement implantée à Bordeaux, cette maison médicale à L'architecture soignée offre un environnement professionnel agréable, conçu pour favoriser des conditions de travail optimales et permettre à la patientèle des consulter au même endroit des praticiens aux spécialités différentes.

Vous trouverez dans cette établissement à taille humaine un plateau de 164m2 entièrement aménageable. Façonnez cet espace en fonction de vos besoins professionnels, l'architecte de l'ouvrage est disponible pour vous accompagnez dans la conception et la réalisation de votre projet.

Le site propose des équipements de qualité, pensés pour conjuguer confort et efficacité au quotidien : un ascenseur compatible avec le transport de brancards, une consommation énergétique optimisée grâce à l'association d'une pompe à chaleur et de panneaux solaires, une ventilation assurant un renouvellement d'air régulier de 30 m³/h par personne, ainsi qu'un traitement acoustique renforcé pour préserver la confidentialité des échanges au sein des cabinets. Notez que ce plateau au rez-de-chaussée offre la possibilité si vous le souhaitez de ne pas avoir à participer aux charges de copropriété concernant l'ascenseur et les parties communes au dernier étage.

Votre nouvel environnement professionnel à votre image n'attends plus que vous.

- Prix HT : 650 000 €
- Prix TTC : 780 000 €
- Prix Fini HT : 748?460 €
- Prix Fini TTC : 898 152€
- Frais de Notaires Réduits
- Garanties
- ...

LOCALISATION IDEALE POUR PLATEAU AMENAGEABLE DANS UNE MAISON MEDICALE

Honoraires à la charge du vendeur. Dans une copropriété de 19 lots. Aucune procédure n'est en cours. DPE en cours. Les informations sur les risques auxquels ce bien est exposé sont disponibles sur le site Géorisques : georisques.gouv.fr.

Votre conseiller RH Patrimoine : Maxime HERVE
Agent commercial (Entreprise individuelle)
RSAC 133095555 J
RCP 13309666 J
Voir plus

Référence: VP091-RHPATRI
Bien en copropriété. Nombre de lots : 19.
Honoraires à la charge du vendeur.
Barème des honoraires

Prêt immobilier

Vous souhaitez connaître votre capacité d’emprunt et trouver le meilleur crédit immobilier ?
Réaliser une simulation gratuite

Commerce à BORDEAUX
Commerce à BORDEAUX
Commerce à BORDEAUX
Ce site est protégé par reCAPTCHA la Politique de confidentialité et les Conditions d’utilisation de Google s’appliquent.
Obtenir un prêt immobilier au meilleur taux ?

En poursuivant votre navigation sans modifier vos paramètres, vous acceptez l'utilisation de cookies susceptibles de réaliser des statistiques de visite. Cliquez ici pour plus d'informations