Bénéficiez des services de nos partenaires locaux soigneusement sélectionnés
pour vous accompagner dans votre parcours d'achat immobilier

Carré d'or victor hugo 5 pièces

— Nice 06000 —
1 480 000 €
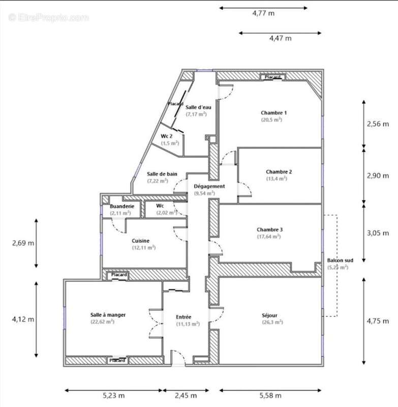
153 m²
5 pièces
parkingbalcon/terrasseascenseur

Nos partenaires locaux
Carré d'or : en plein coeur de Nice, dans un immeuble bourgeois de 1880 très bien tenu, ce magnifique 5 pièces traversant de 153 m2 loi Carrez (165 m2 au sol), traversant Sud/Nord, en très bon état (parquets, moulures, belle hauteur sous plafonds), comprenant :
Entrée, séjour sur balcon sud, salle à manger, cuisine équipée, chambre sud sur balcon, autre chambre sud, salle de bains avec baignoire, douche, double vasques et fenêtre, grande suite au sud avec salle d'eau, WC indépendant et dressing.
Cave double en sous-sol.
A saisir ! DPE C
Voir plus

Référence: 40VH
Barème des honoraires

Prêt immobilier

Vous souhaitez connaître votre capacité d’emprunt et trouver le meilleur crédit immobilier ?
Réaliser une simulation gratuite

Appartement à NICE
Appartement à NICE
Appartement à NICE
Appartement à NICE
Appartement à NICE
Appartement à NICE
Appartement à NICE
Appartement à NICE
Appartement à NICE
Appartement à NICE
Appartement à NICE
Appartement à NICE
Appartement à NICE
Ce site est protégé par reCAPTCHA la Politique de confidentialité et les Conditions d’utilisation de Google s’appliquent.
Obtenir un prêt immobilier au meilleur taux ?

En poursuivant votre navigation sans modifier vos paramètres, vous acceptez l'utilisation de cookies susceptibles de réaliser des statistiques de visite. Cliquez ici pour plus d'informations