Bénéficiez des services de nos partenaires locaux soigneusement sélectionnés
pour vous accompagner dans votre parcours d'achat immobilier

Croix rousse - dernier étage - résidence recente

— Lyon-4e 69004 —
480 000 €
101 m²
3 pièces
parkingascenseur

Nos partenaires locaux
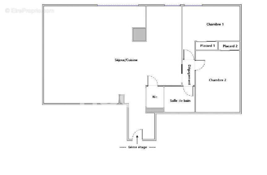
Votre agence Guy Hoquet Lyon 4, forte de 25 ans d'expérience sur le marché immobilier lyonnais, a le plaisir de vous présenter ce superbe appartement au dernier étage d'une copropriété de standing, parfaitement entretenue et au calme absolu, idéalement situé sur le plateau de la Croix-Rousse, rue Barodet. Ce T3 de 88 m² Carrez (100 m² utiles) se compose d'une entrée, d'une agréable pièce de vie de 58 m² avec cuisine ouverte aménagée et équipée, de deux chambres confortables, d'une salle de bains fonctionnelle et de toilettes indépendantes. Possibilité de créer facilement une troisième chambre selon vos besoins. Cet appartement entièrement rénové vous séduira par ses volumes généreux, sa double exposition, sa belle hauteur sous plafond et son emplacement recherché, à deux pas des commerces, écoles, du parc Popy et des transports en commun. Coup de coeur assuré pour ce bien rare ! Possibilité d'achat en sus un garage au sein de la résidence. Contactez moi sans tarder pour organiser une visite au [Coordonnées masquées]. [Coordonnées masquées] Clara LE NORMAND N°RSAC 918 448 531 Les informations sur les risques auxquels ce bien est exposé sont disponibles sur le site Géorisques : www.georisques.gouv.fr Copropriété de 199 lots (Pas de procédure en cours). Charges annuelles : 1620 euros. Clara LE NORMAND (EI) Agent Commercial - Numéro RSAC : - .
Voir plus

Référence: 2755
Bien en copropriété. Nombre de lots : 199. Charges de copropriété : 1620 €.
Honoraires à la charge du vendeur.
Barème des honoraires
DPE
A
B
C
D
E
F
G
GES
A
B
C
D
E
F
G

Prêt immobilier

Vous souhaitez connaître votre capacité d’emprunt et trouver le meilleur crédit immobilier ?
Réaliser une simulation gratuite

Appartement à LYON-4E
Appartement à LYON-4E
Appartement à LYON-4E
Appartement à LYON-4E
Appartement à LYON-4E
Appartement à LYON-4E
Appartement à LYON-4E
Appartement à LYON-4E
Appartement à LYON-4E
Appartement à LYON-4E
Appartement à LYON-4E
Appartement à LYON-4E
Appartement à LYON-4E
Appartement à LYON-4E
Ce site est protégé par reCAPTCHA la Politique de confidentialité et les Conditions d’utilisation de Google s’appliquent.
Obtenir un prêt immobilier au meilleur taux ?

En poursuivant votre navigation sans modifier vos paramètres, vous acceptez l'utilisation de cookies susceptibles de réaliser des statistiques de visite. Cliquez ici pour plus d'informations