Bénéficiez des services de nos partenaires locaux soigneusement sélectionnés
pour vous accompagner dans votre parcours d'achat immobilier

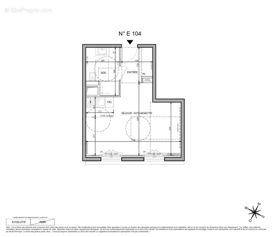
Studio - plessis-robinson

— Le Plessis-Robinson 92350 —
230 000 €
32 m²
1 pièce

Nos partenaires locaux
Dans un environnement calme et verdoyant à deux pas du centre-ville, ce studio de 32 m2 en rez-de-jardin séduit par son agencement optimisé et ses prestations de qualité. Dès l’entrée, vous découvrirez un espace fonctionnel composé d’un séjour lumineux avec cuisine ouverte, d’une salle d’eau moderne avec WC, et d’un agréable espace extérieur comprenant une terrasse prolongée par un jardin privatif, idéal pour profiter des beaux jours en toute intimité.
L’appartement bénéficie d’un cadre de vie privilégié : à seulement 15 minutes à pied du bois de Clamart, il permet de concilier confort urbain et nature au quotidien. Les commerces, écoles et transports sont facilement accessibles, avec le tramway T10 à 200 mètres, le T6 à 500 mètres, ainsi que plusieurs lignes de bus reliant rapidement les pôles majeurs de la région parisienne.
Parmi les atouts de ce bien : de belles hauteurs sous plafond, un parquet de qualité dans les pièces principales, des menuiseries en aluminium, un contrôle d’accès sécurisé avec vidéophone, ainsi qu’un aménagement intérieur soigné incluant meuble vasque, miroir, et pare-douche.
Une opportunité rare pour un premier achat, un investissement locatif ou un pied-à-terre dans un secteur dynamique et en plein essor.
 
Voir plus

Barème des honoraires

Prêt immobilier

Vous souhaitez connaître votre capacité d’emprunt et trouver le meilleur crédit immobilier ?
Réaliser une simulation gratuite

Appartement à LE PLESSIS-ROBINSON
Appartement à LE PLESSIS-ROBINSON
Appartement à LE PLESSIS-ROBINSON
Appartement à LE PLESSIS-ROBINSON
Appartement à LE PLESSIS-ROBINSON
Appartement à LE PLESSIS-ROBINSON
Ce site est protégé par reCAPTCHA la Politique de confidentialité et les Conditions d’utilisation de Google s’appliquent.
Obtenir un prêt immobilier au meilleur taux ?

En poursuivant votre navigation sans modifier vos paramètres, vous acceptez l'utilisation de cookies susceptibles de réaliser des statistiques de visite. Cliquez ici pour plus d'informations