Bénéficiez des services de nos partenaires locaux soigneusement sélectionnés
pour vous accompagner dans votre parcours d'achat immobilier

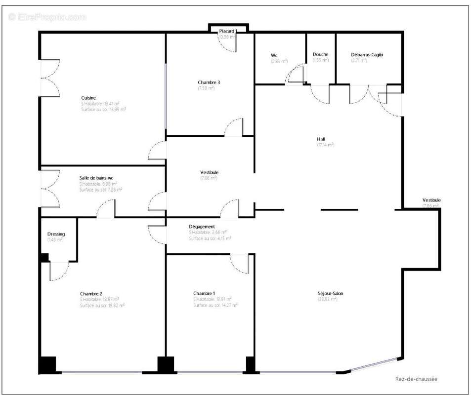
A vendre, 4 pièces, menton centre-ville

— Menton 06500 —
650 000 €
131 m²
4 pièces

Nos partenaires locaux
(06500)MENTON - Avenue de la République
En plein coeur du centre-ville, découvrez ce superbe appartement de 4 Pièces de 131m² en rez-chaussée surélevé au sein d'un ancien Palace avec gardien. Vous serez séduit par ses volumes, sa hauteur sous plafond et ses diverses possibilités d'aménagement.
Vous apprécierez le calme tout en étant à deux pas des commodités.
A rénover.
Possibilité professions libérales.

73 lots de copropriété - Charges annuelles 4050€ soit 337€/mois
Les informations sur les risques auxquels ce bien est exposé sont disponibles sur le site Géorisques : georisques.gouv.fr
Voir plus

Référence: 86001796
DPE
A
B
C
D
E
F
G
GES
A
B
C
D
E
F
G

Prêt immobilier

Vous souhaitez connaître votre capacité d’emprunt et trouver le meilleur crédit immobilier ?
Réaliser une simulation gratuite

Appartement à MENTON
Appartement à MENTON
Appartement à MENTON
Appartement à MENTON
Ce site est protégé par reCAPTCHA la Politique de confidentialité et les Conditions d’utilisation de Google s’appliquent.
Obtenir un prêt immobilier au meilleur taux ?

En poursuivant votre navigation sans modifier vos paramètres, vous acceptez l'utilisation de cookies susceptibles de réaliser des statistiques de visite. Cliquez ici pour plus d'informations