Bénéficiez des services de nos partenaires locaux soigneusement sélectionnés
pour vous accompagner dans votre parcours d'achat immobilier

Maison 87m² à pontault-combault

— Pontault-Combault 77340 —
329 000 €
87 m² / 178 m²
4 pièces
parkingjardin

Nos partenaires locaux
Maison de 2023 sous garantie décennale, faible consommation d'énergie grâce aux nouvelles normes de construction et panneaux voltaïques.
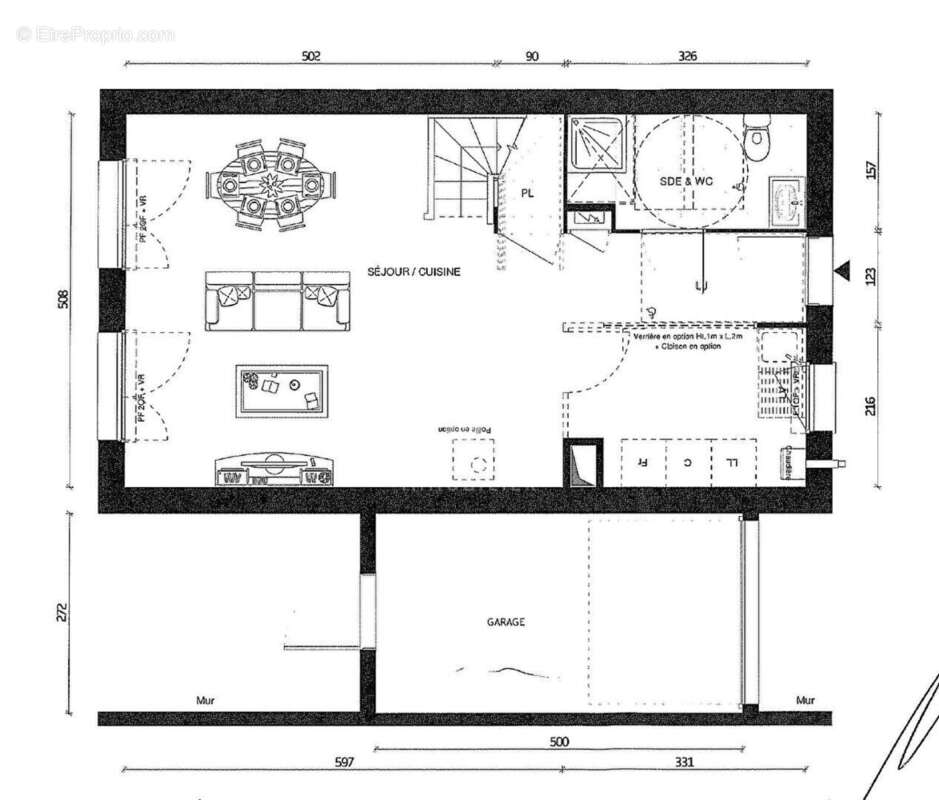
Au rez-de-chaussée, une cuisine équipée ouverte sur le séjour pour apporter plus de 38 m2, un débarras, une salle d'eau avec wc. Un conduit existant vous permettra d'installer une cheminée.
Garage fermé et une place extérieure supplémentaire.
Jardin idéalement exposé Est-Ouest.
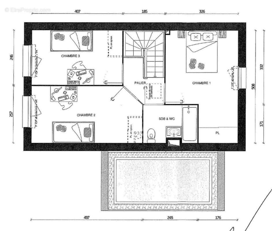
A l'étage, trois chambres avec rangements intégrés, une salle de bains avec wc.
À proximité des écoles, commerces et transports.
Accès rapide à la N104 et N4. Pour vos loisirs vous serez proche de la forêt et golfs.

Maison neuve bien agencée belles prestations.
L'Etat des Risques et Pollution peut être consulté sur https://www.georisques.gouv.fr
Voir plus

Référence: P0901
DPE
A
B
C
D
E
F
G
GES
A
B
C
D
E
F
G

Prêt immobilier

Vous souhaitez connaître votre capacité d’emprunt et trouver le meilleur crédit immobilier ?
Réaliser une simulation gratuite

Maison à PONTAULT-COMBAULT
Maison à PONTAULT-COMBAULT
Maison à PONTAULT-COMBAULT
Maison à PONTAULT-COMBAULT
Maison à PONTAULT-COMBAULT
Maison à PONTAULT-COMBAULT
Maison à PONTAULT-COMBAULT
Maison à PONTAULT-COMBAULT
Maison à PONTAULT-COMBAULT
Maison à PONTAULT-COMBAULT
Maison à PONTAULT-COMBAULT
Ce site est protégé par reCAPTCHA la Politique de confidentialité et les Conditions d’utilisation de Google s’appliquent.
Obtenir un prêt immobilier au meilleur taux ?

En poursuivant votre navigation sans modifier vos paramètres, vous acceptez l'utilisation de cookies susceptibles de réaliser des statistiques de visite. Cliquez ici pour plus d'informations