Bénéficiez des services de nos partenaires locaux soigneusement sélectionnés
pour vous accompagner dans votre parcours d'achat immobilier

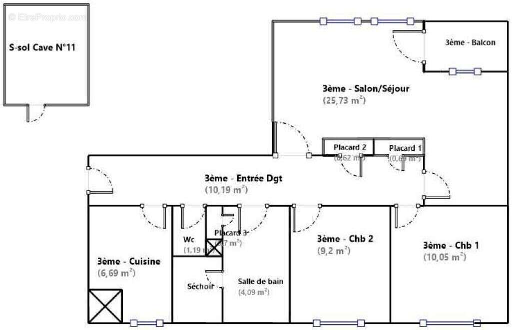
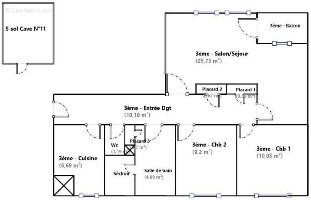
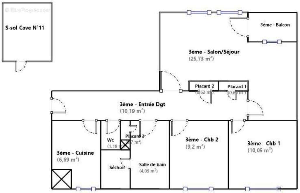
Appartement 69m² à saint-brieuc

— Saint-Brieuc 22000 —
70 000 €
69 m²
4 pièces
parkingbalcon/terrasseascenseur

Nos partenaires locaux
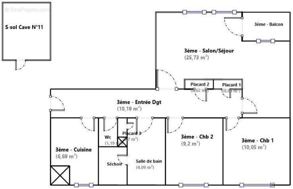
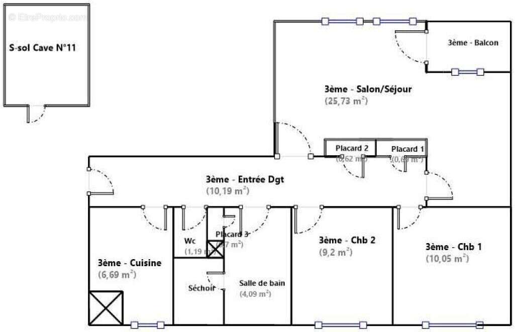
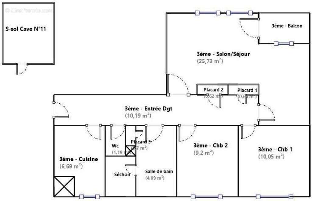
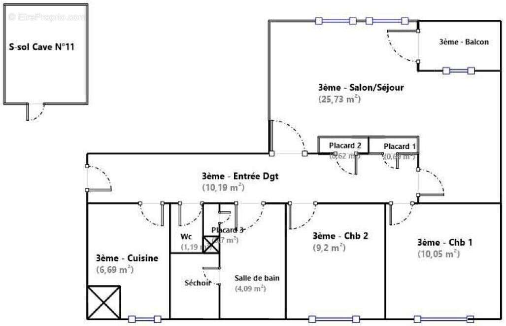
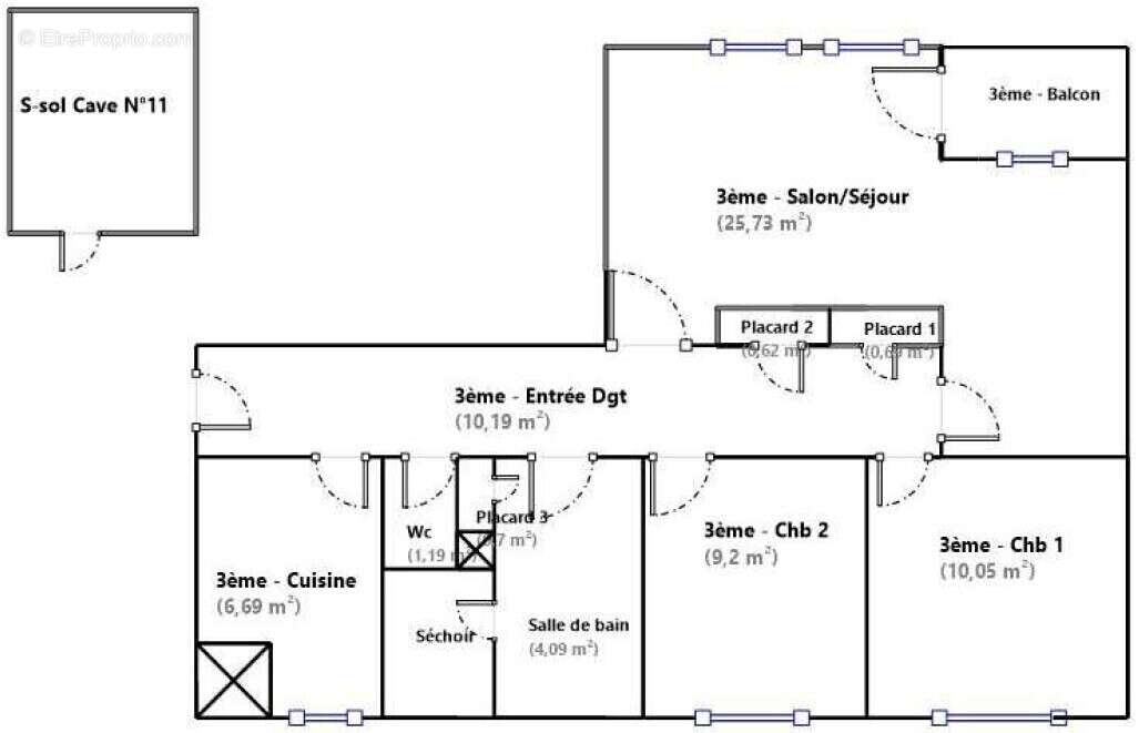
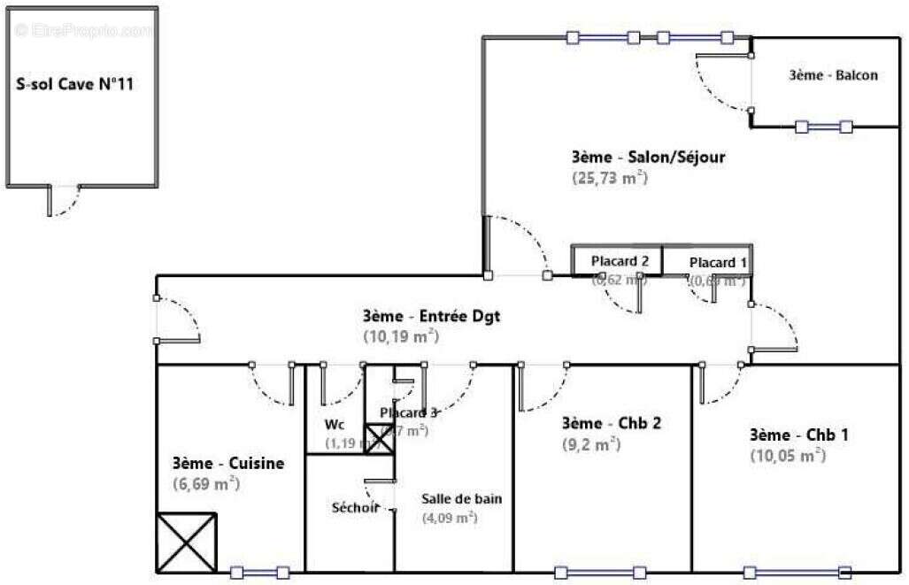
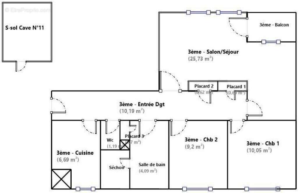
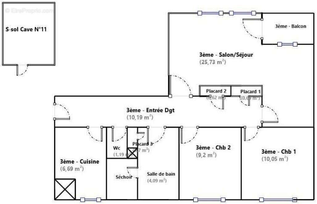
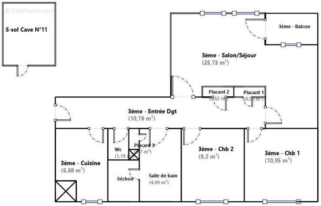
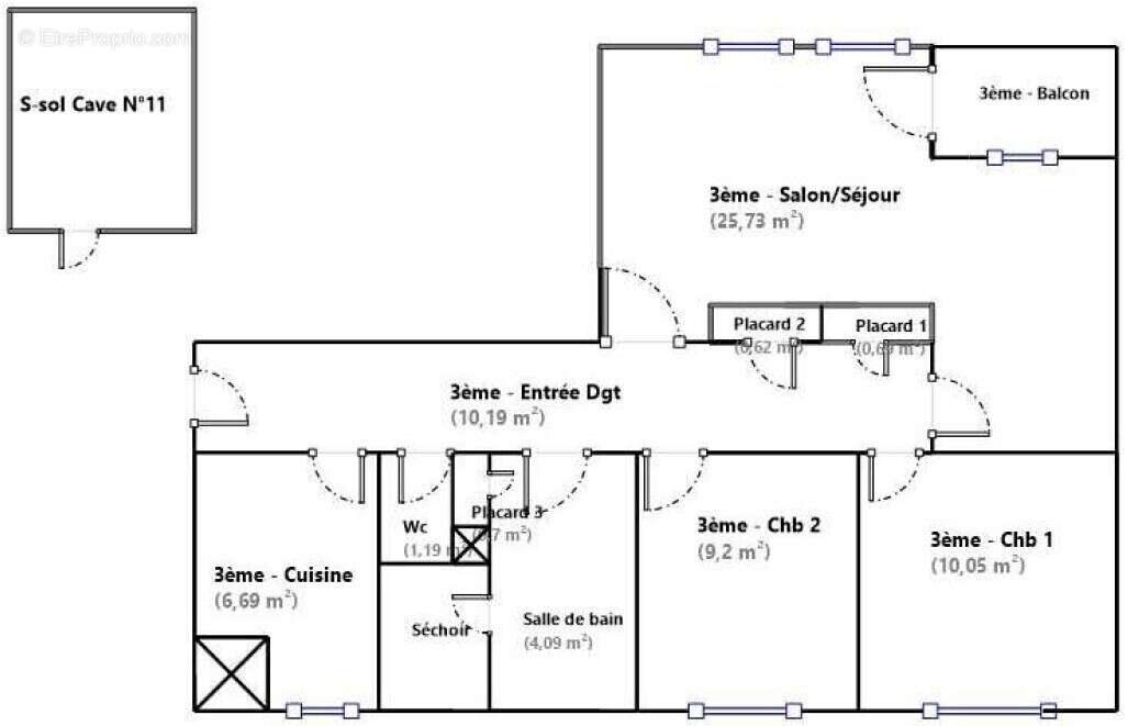
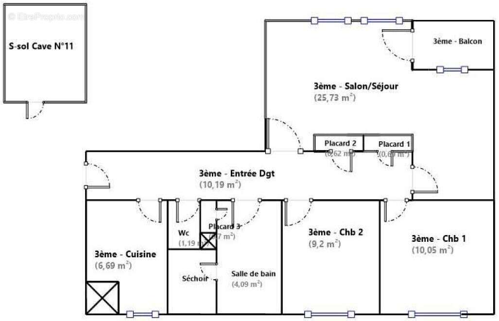
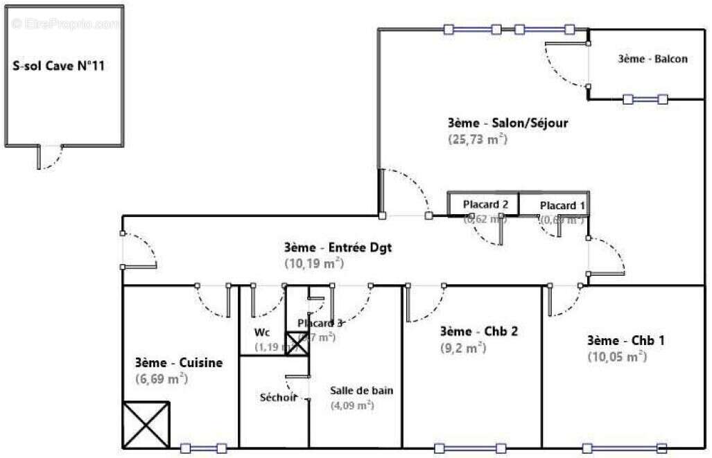
Appartement de 4 pièces au 3ème étage avec ascenseur, situé à proximité des lycées, des bus et de toutes commodités.
Vendu avec locataire en place (Bail renouvelable en 04/2027, géré par une agence de location actuellement). Loyer de 534,58€ charges comprises (aucun incident de paiement).

Description :
- Un séjour, une cuisine séparée
- Une salle de bain desservant une loggia, WC séparé
- Deux chambres (Possibilité de réaliser une 3ème en séparant le séjour >>> Voir croquis dernière photo)

Extérieurs :
- Une cave privée (d'environ 8,5 m2) ainsi qu'une cave commune est à disposition.
- Un parking sécurisé avec badge

Côté technique :
- Chaudière collective de 2016
- Isolation devant et derrière le bâtiment
- Travaux copropriété réalisés dernièrement : Toiture et isolation par le toit / Répartiteurs sur chauffages
- Travaux à prévoir : Remplacement des fenêtres (permettant de passer en D d'après le diagnostiqueur) + Robinets thermostatiques (me consulter pour obtenir les devis)

Charges copro (espaces communs, fond travaux) : 76€/mois (appels trimestriels)
Chauffage collectif : 88€/mois (appels trimestriels), montant récupéré sur les charges du locataire.

>> Aides potentielles de l'agglomération de Saint-Brieuc et de l'Anah pour les travaux
>> Secteur éligible de défiscalisation "Loi Denormandie" Ce bien vous est présenté par Natacha Zaitchik, votre conseillère indépendante Dr House Immo.
Voir plus

Référence: V-NZ-03DHI3220
Honoraires à la charge du vendeur.
Barème des honoraires
DPE
A
B
C
D
E
F
G
GES
A
B
C
D
E
F
G

Prêt immobilier

Vous souhaitez connaître votre capacité d’emprunt et trouver le meilleur crédit immobilier ?
Réaliser une simulation gratuite

Appartement à SAINT-BRIEUC
Appartement à SAINT-BRIEUC
Appartement à SAINT-BRIEUC
Appartement à SAINT-BRIEUC
Appartement à SAINT-BRIEUC
Appartement à SAINT-BRIEUC
Appartement à SAINT-BRIEUC
Appartement à SAINT-BRIEUC
Appartement à SAINT-BRIEUC
Appartement à SAINT-BRIEUC
Appartement à SAINT-BRIEUC
Appartement à SAINT-BRIEUC
Appartement à SAINT-BRIEUC
Appartement à SAINT-BRIEUC
Appartement à SAINT-BRIEUC
Appartement à SAINT-BRIEUC
Appartement à SAINT-BRIEUC
Appartement à SAINT-BRIEUC
Appartement à SAINT-BRIEUC
Appartement à SAINT-BRIEUC
Appartement à SAINT-BRIEUC
Appartement à SAINT-BRIEUC
Appartement à SAINT-BRIEUC
Appartement à SAINT-BRIEUC
Appartement à SAINT-BRIEUC
Appartement à SAINT-BRIEUC
Appartement à SAINT-BRIEUC
Appartement à SAINT-BRIEUC
Appartement à SAINT-BRIEUC
Appartement à SAINT-BRIEUC
Appartement à SAINT-BRIEUC
Appartement à SAINT-BRIEUC
Appartement à SAINT-BRIEUC
Appartement à SAINT-BRIEUC
Appartement à SAINT-BRIEUC
Appartement à SAINT-BRIEUC
Appartement à SAINT-BRIEUC
Appartement à SAINT-BRIEUC
Appartement à SAINT-BRIEUC
Appartement à SAINT-BRIEUC
Appartement à SAINT-BRIEUC
Appartement à SAINT-BRIEUC
Appartement à SAINT-BRIEUC
Appartement à SAINT-BRIEUC
Appartement à SAINT-BRIEUC
Appartement à SAINT-BRIEUC
Appartement à SAINT-BRIEUC
Appartement à SAINT-BRIEUC
Appartement à SAINT-BRIEUC
Appartement à SAINT-BRIEUC
Appartement à SAINT-BRIEUC
Appartement à SAINT-BRIEUC
Appartement à SAINT-BRIEUC
Appartement à SAINT-BRIEUC
Appartement à SAINT-BRIEUC
Appartement à SAINT-BRIEUC
Appartement à SAINT-BRIEUC
Appartement à SAINT-BRIEUC
Appartement à SAINT-BRIEUC
Appartement à SAINT-BRIEUC
Appartement à SAINT-BRIEUC
Appartement à SAINT-BRIEUC
Appartement à SAINT-BRIEUC
Appartement à SAINT-BRIEUC
Appartement à SAINT-BRIEUC
Appartement à SAINT-BRIEUC
Appartement à SAINT-BRIEUC
Appartement à SAINT-BRIEUC
Appartement à SAINT-BRIEUC
Appartement à SAINT-BRIEUC
Appartement à SAINT-BRIEUC
Appartement à SAINT-BRIEUC
Appartement à SAINT-BRIEUC
Appartement à SAINT-BRIEUC
Appartement à SAINT-BRIEUC
Appartement à SAINT-BRIEUC
Appartement à SAINT-BRIEUC
Appartement à SAINT-BRIEUC
Appartement à SAINT-BRIEUC
Appartement à SAINT-BRIEUC
Appartement à SAINT-BRIEUC
Appartement à SAINT-BRIEUC
Appartement à SAINT-BRIEUC
Appartement à SAINT-BRIEUC
Appartement à SAINT-BRIEUC
Appartement à SAINT-BRIEUC
Appartement à SAINT-BRIEUC
Appartement à SAINT-BRIEUC
Appartement à SAINT-BRIEUC
Appartement à SAINT-BRIEUC
Appartement à SAINT-BRIEUC
Appartement à SAINT-BRIEUC
Appartement à SAINT-BRIEUC
Appartement à SAINT-BRIEUC
Appartement à SAINT-BRIEUC
Appartement à SAINT-BRIEUC
Appartement à SAINT-BRIEUC
Appartement à SAINT-BRIEUC
Appartement à SAINT-BRIEUC
Appartement à SAINT-BRIEUC
Appartement à SAINT-BRIEUC
Appartement à SAINT-BRIEUC
Appartement à SAINT-BRIEUC
Appartement à SAINT-BRIEUC
Appartement à SAINT-BRIEUC
Appartement à SAINT-BRIEUC
Appartement à SAINT-BRIEUC
Appartement à SAINT-BRIEUC
Appartement à SAINT-BRIEUC
Appartement à SAINT-BRIEUC
Appartement à SAINT-BRIEUC
Appartement à SAINT-BRIEUC
Appartement à SAINT-BRIEUC
Appartement à SAINT-BRIEUC
Appartement à SAINT-BRIEUC
Appartement à SAINT-BRIEUC
Appartement à SAINT-BRIEUC
Appartement à SAINT-BRIEUC
Appartement à SAINT-BRIEUC
Appartement à SAINT-BRIEUC
Appartement à SAINT-BRIEUC
Appartement à SAINT-BRIEUC
Appartement à SAINT-BRIEUC
Appartement à SAINT-BRIEUC
Appartement à SAINT-BRIEUC
Appartement à SAINT-BRIEUC
Appartement à SAINT-BRIEUC
Appartement à SAINT-BRIEUC
Appartement à SAINT-BRIEUC
Appartement à SAINT-BRIEUC
Appartement à SAINT-BRIEUC
Appartement à SAINT-BRIEUC
Appartement à SAINT-BRIEUC
Appartement à SAINT-BRIEUC
Appartement à SAINT-BRIEUC
Appartement à SAINT-BRIEUC
Appartement à SAINT-BRIEUC
Appartement à SAINT-BRIEUC
Ce site est protégé par reCAPTCHA la Politique de confidentialité et les Conditions d’utilisation de Google s’appliquent.
Obtenir un prêt immobilier au meilleur taux ?

En poursuivant votre navigation sans modifier vos paramètres, vous acceptez l'utilisation de cookies susceptibles de réaliser des statistiques de visite. Cliquez ici pour plus d'informations