Bénéficiez des services de nos partenaires locaux soigneusement sélectionnés
pour vous accompagner dans votre parcours d'achat immobilier

Exclusivite sous offre acceptee - à vendre - rare maison individuelle t5 neuve avec jardin, 3 stationnements frais notaires red

— Grasse 06130 —
499 000 €
105 m² / 105 m²
5 pièces
jardin

Nos partenaires locaux
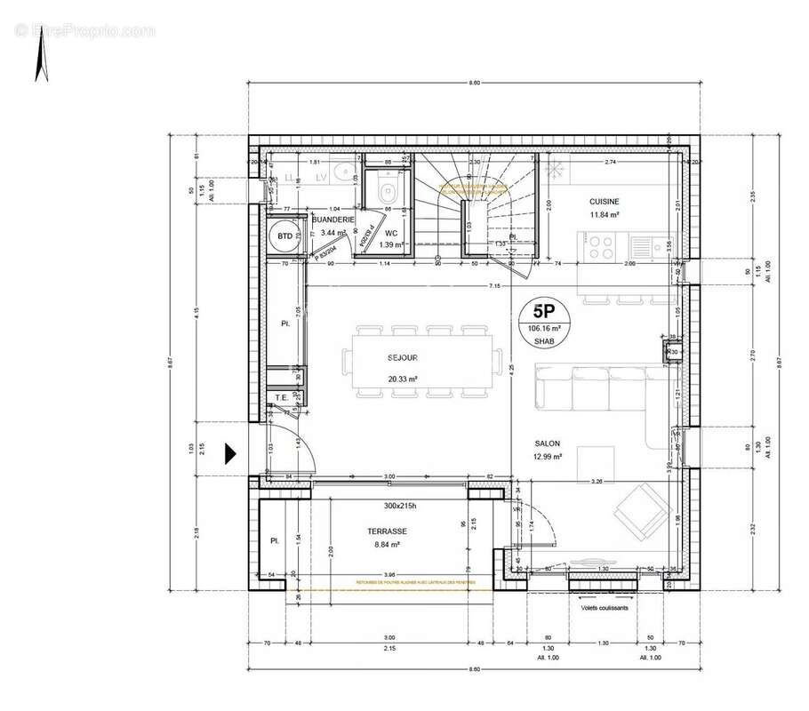
Votre agence vous invite à decouvrir cette maison individuelle T5 de 105 m², récemment construite, située à Grasse. Ce bien exceptionnel offre tous les avantages d’une maison en pleine propriété : liberté, confort, et aucune charge de copropriété.

Élevée sur deux niveaux, cette maison lumineuse a été pensée pour offrir un cadre de vie moderne et fonctionnel. Au rez-de-chaussée, vous profitez d’un vaste séjour avec cuisine ouverte, baigné de lumière, idéal pour recevoir. Une terrasse couverte de 9 m², exposée plein sud, permet de profiter pleinement de l’extérieur et de la vue mer. Ce niveau comprend également un WC indépendant, une buanderie et des rangements intégrés, pensés pour un quotidien organisé.

À l’étage, l’espace nuit se compose de quatre chambres, dont une suite parentale avec dressing. Vous y trouverez également deux salles de bains modernes et un second WC, parfait pour une vie de famille confortable. Certaines chambres bénéficient d’une vue mer dégagée, apportant calme et sérénité à l’ensemble.

La maison est dotée de prestations de qualité : climatisation réversible, volets roulants électriques, ballon thermodynamique, conformité RT 2012, ainsi que de nombreux rangements dans les chambres, sous l’escalier et dans les pièces de vie.

L’extérieur a été entièrement aménagé : jardin de 105 m² exposé plein sud, portail en fer posé, et trois places de stationnement privées.

Son emplacement est stratégique : proche des commerces, écoles, transports en commun, avec un accès rapide aux grands axes routiers. C’est un bien clé en main, prêt à être habité, dans un environnement pratique et résidentiel.

Frais de notaire réduits. Plans sur demande.

Pour plus d’informations ou pour organiser une visite, contactez-nous dès maintenant
Voir plus

Référence: 86001867

Prêt immobilier

Vous souhaitez connaître votre capacité d’emprunt et trouver le meilleur crédit immobilier ?
Réaliser une simulation gratuite

Maison à GRASSE
Maison à GRASSE
Maison à GRASSE
Maison à GRASSE
Maison à GRASSE
Maison à GRASSE
Maison à GRASSE
Maison à GRASSE
Maison à GRASSE
Maison à GRASSE
Maison à GRASSE
Maison à GRASSE
Maison à GRASSE
Maison à GRASSE
Ce site est protégé par reCAPTCHA la Politique de confidentialité et les Conditions d’utilisation de Google s’appliquent.
Obtenir un prêt immobilier au meilleur taux ?

En poursuivant votre navigation sans modifier vos paramètres, vous acceptez l'utilisation de cookies susceptibles de réaliser des statistiques de visite. Cliquez ici pour plus d'informations