Pas de appartement à Duilhac-Sous-Peyrepertuse pour le moment. Découvrez dès maintenant les appartements dans le département Aude.

Appartement t2 neuf à partir de 159 900

— Saint-Pere-En-Retz 44320 —
159 900 €
41 m²
2 pièces
parkingbalcon/terrasseascenseur

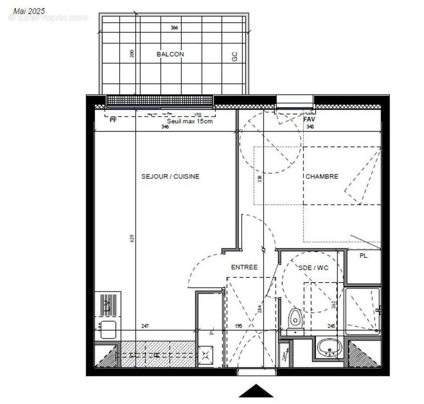
Dans une copropriété avec ascenseur de 23 logements, venez réserver votre appartement de type T2 à proximité des commerces. Il comprend une entrée, un séjour avec coin cuisine, une chambre, une salle d'eau avec wc, un balcon et une place de parking extérieure. Offre de lancement: Frais de notaire offerts pour les 5 premiers réservataires. Livraison septembre 2027

Référence: 2440
Honoraires à la charge du vendeur.
Barème des honoraires

Prêt immobilier

Vous souhaitez connaître votre capacité d’emprunt et trouver le meilleur crédit immobilier ?
Réaliser une simulation gratuite

Appartement à SAINT-PERE-EN-RETZ
Appartement à SAINT-PERE-EN-RETZ
Appartement à SAINT-PERE-EN-RETZ
Ce site est protégé par reCAPTCHA la Politique de confidentialité et les Conditions d’utilisation de Google s’appliquent.
Obtenir un prêt immobilier au meilleur taux ?

En poursuivant votre navigation sans modifier vos paramètres, vous acceptez l'utilisation de cookies susceptibles de réaliser des statistiques de visite. Cliquez ici pour plus d'informations