Bénéficiez des services de nos partenaires locaux soigneusement sélectionnés
pour vous accompagner dans votre parcours d'achat immobilier

Appartement 77m² à chatonnay

— Chatonnay 38440 —
117 000 €
77 m²
3 pièces

Nos partenaires locaux
Iad France - Tiphaine Sabatier vous propose : Idéal Investisseur - Appartements vendu loué

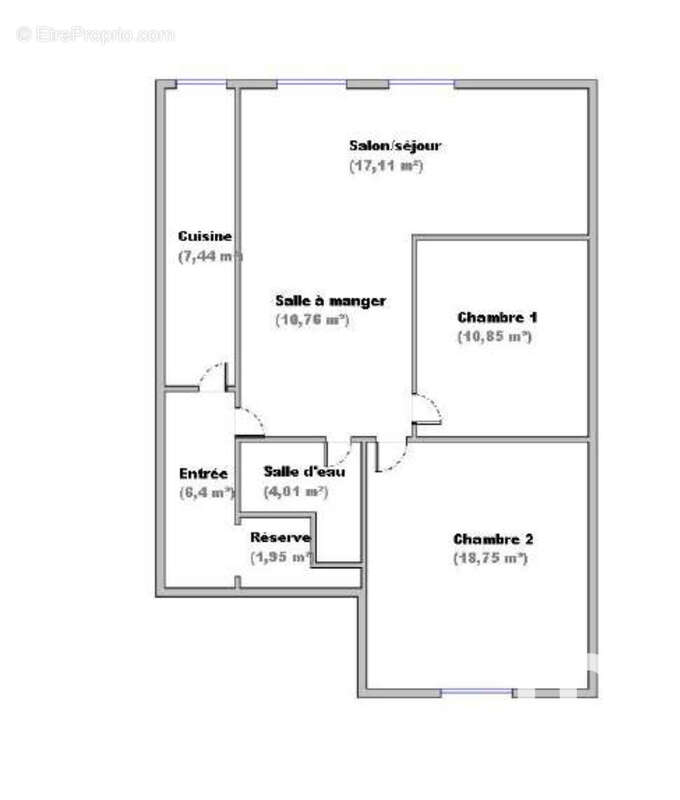
Superficie : 78 m²
Vendu loué : 650 ¤ + 30 ¤ de charges
Composé d'une entrée de 6 m²
Un séjour de 17 m²
Une cuisine indépendante de de 6 m²
2 chambres de 11 m² et 19 m²
Une salle d'eau avec WC de 4 m²

Bonne luminosité et agencement fonctionnel

Un parking gratuit est disponible juste en face de l'appartement.

Situation idéale : Au centre de Chatonnay, tous les commerces de proximité accessibles à pieds.

Contactez-moi pour plus d'informations ou une visite


La presente annonce immobiliere vise 1 lot situé dans une copropriété de 4 lots au total et ne faisant l'objet d'aucune procédure en cours citée à l'article L. 721-1 du code de la construction et de l'habitation. Montant moyen mensuel de charges déclaré par le vendeur : 12.5¤ par mois (soit 150 ¤ annuel). Honoraires d'agence à la charge du vendeur.
Information d'affichage énergétique sur ce bien : classe ENERGIE E indice 287 et classe CLIMAT B indice 9. Les informations sur les risques auxquels ce bien est exposé, y compris l'obligation légale de débroussaillement, sont disponibles sur le site Géorisques : http://www.georisques.gouv.fr.
La présente annonce immobilière a été rédigée sous la responsabilité éditoriale de Mme Tiphaine Sabatier mandataire indépendant en immobilier (sans détention de fonds), agent commercial de la SAS I@D France immatriculé au RSAC de VIENNE sous le numéro 843321290, titulaire de la carte de démarchage immobilier pour le compte de la société I@D France SAS.
Informations LOI ALUR :
Soumis au régime de copropriété.
Nombre de lots : 4.
Quote part annuelle(moyenne) : 150 euros.
Honoraires charge vendeur. (gedeon_6727_31422327)
Voir plus

Référence: 1784759
Bien en copropriété. Nombre de lots : 4. Charges de copropriété : 150 €.
Honoraires à la charge du vendeur.
DPE
A
B
C
D
E
F
G
GES
A
B
C
D
E
F
G

Prêt immobilier

Vous souhaitez connaître votre capacité d’emprunt et trouver le meilleur crédit immobilier ?
Réaliser une simulation gratuite

Photo 1 - Appartement à CHATONNAY
Photo 1
Photo 2 - Appartement à CHATONNAY
Photo 2
Photo 3 - Appartement à CHATONNAY
Photo 3
Photo 4 - Appartement à CHATONNAY
Photo 4
Photo 5 - Appartement à CHATONNAY
Photo 5
Photo 6 - Appartement à CHATONNAY
Photo 6
Photo 7 - Appartement à CHATONNAY
Photo 7
Photo 8 - Appartement à CHATONNAY
Photo 8
Ce site est protégé par reCAPTCHA la Politique de confidentialité et les Conditions d’utilisation de Google s’appliquent.
Obtenir un prêt immobilier au meilleur taux ?

En poursuivant votre navigation sans modifier vos paramètres, vous acceptez l'utilisation de cookies susceptibles de réaliser des statistiques de visite. Cliquez ici pour plus d'informations