Bénéficiez des services de nos partenaires locaux soigneusement sélectionnés
pour vous accompagner dans votre parcours d'achat immobilier

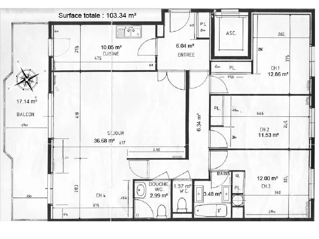
T5 proche du centre-ville terrasse-ascenseur

— Croissy-Sur-Seine 78290 —
670 000 €
104 m²
5 pièces
ascenseur

Nos partenaires locaux
Cet appartement de 103 m² est situé à quelques minutes du centre-ville est au premier étage d'une copropriété de 1992. L'entrée spacieuse vous invite à profiter d'un séjour une salle à manger, donnant tous deux accès à la terrasse. Les baies vitrée coulissantes vous garantiront une luminosité optimale et une vue sur le jardin parfaitement entretenu. Vous pourrez également accéder à la terrasse par la cuisine aménagée et équipée. L'espace nuit comprend une suite parentale et sa salle de bains avec toilettes, deux autres chambres, une salle de douche et des toilettes séparés.
Une grande cave de 7 m² complète ce bien ainsi qu'une place de parking (boxable) en sous sol. Une seconde place de parking est disponible en option en sus de prix.
Beaucoup d'atouts pour cet appartement: calme, lumineux, décoration très soignée, copropriété entretenue (ravalement réalisé en 2021), volumes.
Voir plus

Référence: 85998080
Barème des honoraires
DPE
A
B
C
D
E
F
G
GES
A
B
C
D
E
F
G

Prêt immobilier

Vous souhaitez connaître votre capacité d’emprunt et trouver le meilleur crédit immobilier ?
Réaliser une simulation gratuite

Appartement à CROISSY-SUR-SEINE
Appartement à CROISSY-SUR-SEINE
Appartement à CROISSY-SUR-SEINE
Appartement à CROISSY-SUR-SEINE
Appartement à CROISSY-SUR-SEINE
Appartement à CROISSY-SUR-SEINE
Appartement à CROISSY-SUR-SEINE
Appartement à CROISSY-SUR-SEINE
Appartement à CROISSY-SUR-SEINE
Appartement à CROISSY-SUR-SEINE
Appartement à CROISSY-SUR-SEINE
Ce site est protégé par reCAPTCHA la Politique de confidentialité et les Conditions d’utilisation de Google s’appliquent.
Obtenir un prêt immobilier au meilleur taux ?

En poursuivant votre navigation sans modifier vos paramètres, vous acceptez l'utilisation de cookies susceptibles de réaliser des statistiques de visite. Cliquez ici pour plus d'informations