Bénéficiez des services de nos partenaires locaux soigneusement sélectionnés
pour vous accompagner dans votre parcours d'achat immobilier

Saint raphael bureaux centre ville

— Saint-Raphael 83700 —
430 000 €
161 m²
8 pièces

Nos partenaires locaux
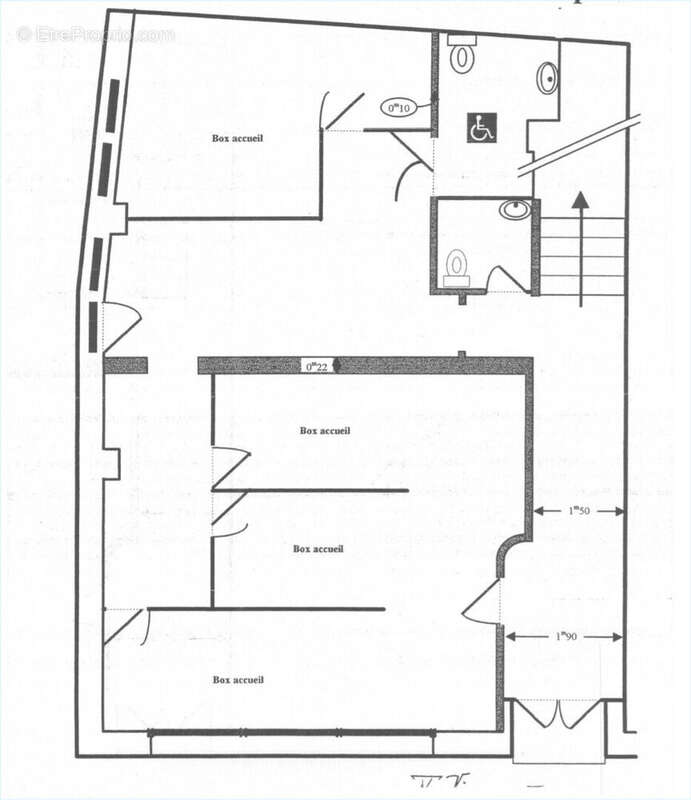
Idéalement situé en centre ville, à proximité de la gare routière et de la gare TGV, immeuble de bureaux d'une superficie d'environ 161m2 répartis sur 2 niveaux, possibilités de se garer facilement (2 deux parkings public à 2 minutes à pieds) avec possibilité d'abonnement. Les locaux nécessitent un rafraîchissement mais offre un emplacement privilégié et une superficie importante. L'immeuble est indépendant et comprend: - au RDC: 4 bureaux, un sanitaire PMR - à l'étage : 2 bureaux spacieux ou salle de réunion, une kitchenette, un sanitaire. Climatisation réversible récente dans chaque bureau. Taxe foncières: 1711 euros Honoraires à la charge de l'acquéreur : 30 000 euros TTC soit 7,50 % du prix de vente A visiter sans tarder, contacter au [Coordonnées masquées] Barbara MEJEAN agent commercial enregistré au RSAC de Fréjus sous le numéro 414 137 851 "Les informations sur les risques auxquels ce bien pourrait être exposé sont disponibles sur le site Géorisques : www.georisques.gouv.fr" (7.50 % honoraires TTC à la charge de l'acquéreur.)
Voir plus

Référence: 1805
Honoraires d'agence de 7.5% à la charge de l'acquéreur
Barème des honoraires
DPE
A
B
C
D
E
F
G
GES
A
B
C
D
E
F
G

Prêt immobilier

Vous souhaitez connaître votre capacité d’emprunt et trouver le meilleur crédit immobilier ?
Réaliser une simulation gratuite

Maison à SAINT-RAPHAEL
Maison à SAINT-RAPHAEL
Maison à SAINT-RAPHAEL
Maison à SAINT-RAPHAEL
Ce site est protégé par reCAPTCHA la Politique de confidentialité et les Conditions d’utilisation de Google s’appliquent.
Obtenir un prêt immobilier au meilleur taux ?

En poursuivant votre navigation sans modifier vos paramètres, vous acceptez l'utilisation de cookies susceptibles de réaliser des statistiques de visite. Cliquez ici pour plus d'informations