Bénéficiez des services de nos partenaires locaux soigneusement sélectionnés
pour vous accompagner dans votre parcours d'achat immobilier

Lumineux 2/3 pièces avec parking et cave - métro château-landon - rue la fayette, paris 10ème

— Paris-10e 75010 —
550 000 €
61 m²
3 pièces
parkingascenseur

Nos partenaires locaux
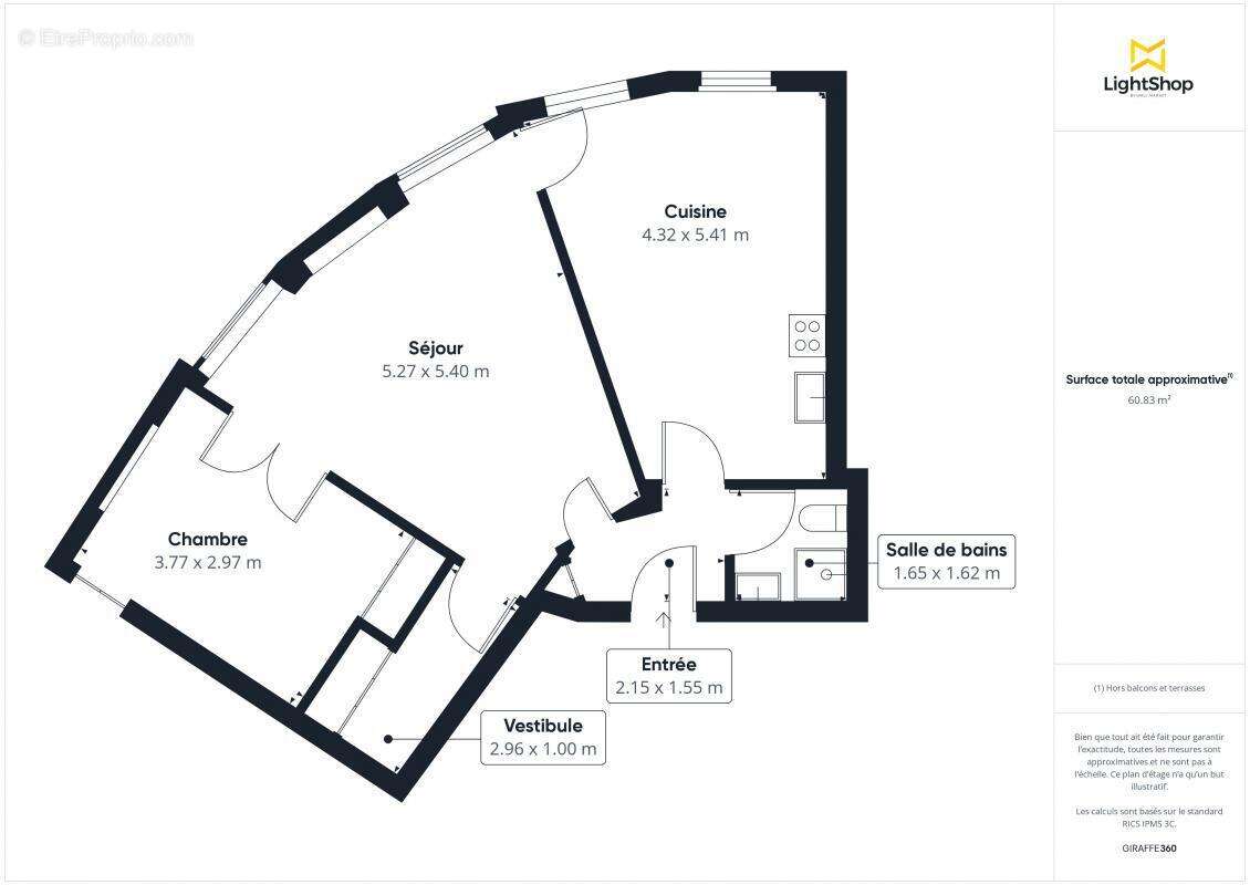
Hosman vous propose à la vente cet lumineux 3 pièces de 61 m² Carrez, situé Rue La Fayette à Paris 10ème. Situé au 1er étage d'un immeuble sécurisé avec ascenseur, cet appartement bénéficie d'une exposition ouest. Une place de parking en sus (25 000€), située à 3 minutes à pieds, et une cave complètent ce bien. Planifiez facilement votre visite en choisissant le créneau qui vous convient depuis le site d'Hosman.

L'appartement se compose comme suit :
Un séjour spacieux et lumineux de 22m² ;
Une chambre de 12m² avec rangements intégrés ;
Une cuisine séparée de 18m², aménagée et équipée ;
Une salle d'eau avec douche et WC ;
De nombreux placards pour davantage de rangement.

Possibilité de créer une deuxième chambre !

Le système de chauffage et d'eau chaude est électrique. Les fenêtres sont en double vitrage, apportant une isolation thermique et phonique de qualité.
La taxe foncière annuelle est de 533 €, ainsi que 166 € pour le parking.

L'appartement est idéalement situé dans un quartier dynamique et recherché de Paris 10ème. Parmi les nombreux avantages :
Proximité immédiate avec la Gare du Nord et la Gare de l'Est, facilitant tous vos déplacements ;
À 5 minutes à pied du Canal Saint-Martin, parfait pour des promenades et activités en plein air ;
Nombreux commerces, restaurants et cafés à proximité, offrant un cadre de vie convivial et pratique ;
Écoles réputées telles que le Collège Valmy et l'École élémentaire Faubourg Saint-Denis à proximité ;
Accès facile aux transports en commun : à moins de 5 minutes à pied des lignes 4, 5 et 7 (Château Landon, Gare du Nord, Gare de l'Est) et des lignes de bus 30, 31, 38 et 54.

Le bien est soumis au statut de copropriété. L'immeuble, construit en 1880, est bien entretenu et sécurisé avec vidéosurveillance. Il est également possible d'entreposer vos vélos dans la cour intérieure. Les charges de copropriété s'élèvent à 330 € par trimestre.

Hosman s'efforce de réinventer l'agence immobilière en offrant un service innovant et transparent aux acheteurs et aux vendeurs. Nos frais d'agence sont de 9 900 euros fixes à la charge du vendeur.

Si vous êtes un professionnel de l'immobilier (agent, mandataire ou chasseur immobilier), sachez que toutes les annonces Hosman sont ouvertes à la collaboration. N'hésitez pas à nous contacter pour en discuter.
Voir plus

Référence: 1b0d5e
Bien en copropriété. Charges de copropriété : 110 €.
Honoraires à la charge du vendeur.
DPE
A
B
C
D
E
F
G
GES
A
B
C
D
E
F
G

Prêt immobilier

Vous souhaitez connaître votre capacité d’emprunt et trouver le meilleur crédit immobilier ?
Réaliser une simulation gratuite

Appartement à PARIS-10E
Appartement à PARIS-10E
Appartement à PARIS-10E
Appartement à PARIS-10E
Appartement à PARIS-10E
Appartement à PARIS-10E
Appartement à PARIS-10E
Appartement à PARIS-10E
Ce site est protégé par reCAPTCHA la Politique de confidentialité et les Conditions d’utilisation de Google s’appliquent.
Obtenir un prêt immobilier au meilleur taux ?

En poursuivant votre navigation sans modifier vos paramètres, vous acceptez l'utilisation de cookies susceptibles de réaliser des statistiques de visite. Cliquez ici pour plus d'informations