Bénéficiez des services de nos partenaires locaux soigneusement sélectionnés
pour vous accompagner dans votre parcours d'achat immobilier

Terrain 466m² à saint-jean-de-monts

— Saint-Jean-De-Monts 85160 —
134 000 €
466 m²

Nos partenaires locaux
Découvrez ce terrain constructible situé sur la commune de Saint Jean de Monts (85160)

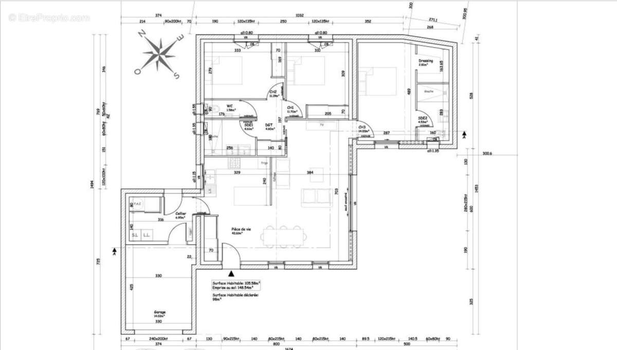
Ce terrain à bâtir bénéficie d'un projet de construction entièrement prêt à lancer. Les permis de construire ont été validés, les plans sont disponibles, et une équipe d'artisans locaux est déjà constituée pour débuter les travaux sans délai.

Le projet prévoit une maison de type T4, pensée pour offrir confort, fonctionnalité et luminosité. La conception optimise les volumes, la lumière naturelle et l'usage des espaces pour répondre aux besoins d'une vie familiale agréable.

Il s'agit d'une opportunité rare de construire sans attendre, avec un accompagnement complet et des partenaires locaux de confiance.

Les informations sur les risques auxquels ce bien est exposé sont disponibles sur le site Géorisques : www.georisques.gouv.fr
Prix de vente : 134 000 ¤
Honoraires charge vendeur

Contactez votre conseiller SAFTI : Lucas RABALLAND, Tél. : [Coordonnées masquées], E-mail : [Coordonnées masquées] - EI - Agent commercial immatriculé au RSAC de LA ROCHE-SUR-YON sous le numéro 933604274.
Informations LOI ALUR :
Honoraires charge vendeur. (gedeon_26118_31434901)
Voir plus

Référence: 1488627
Honoraires à la charge du vendeur.
Barème des honoraires

Prêt immobilier

Vous souhaitez connaître votre capacité d’emprunt et trouver le meilleur crédit immobilier ?
Réaliser une simulation gratuite

Photo 1 - Terrain à SAINT-JEAN-DE-MONTS
Photo 1
Photo 2 - Terrain à SAINT-JEAN-DE-MONTS
Photo 2
Photo 3 - Terrain à SAINT-JEAN-DE-MONTS
Photo 3
Ce site est protégé par reCAPTCHA la Politique de confidentialité et les Conditions d’utilisation de Google s’appliquent.
Obtenir un prêt immobilier au meilleur taux ?

En poursuivant votre navigation sans modifier vos paramètres, vous acceptez l'utilisation de cookies susceptibles de réaliser des statistiques de visite. Cliquez ici pour plus d'informations