Bénéficiez des services de nos partenaires locaux soigneusement sélectionnés
pour vous accompagner dans votre parcours d'achat immobilier

Paris xvii - ternes - 3 pièces étage élevé

— Paris-17e 75017 —
757 500 €
66 m²
3 pièces
ascenseur

Nos partenaires locaux
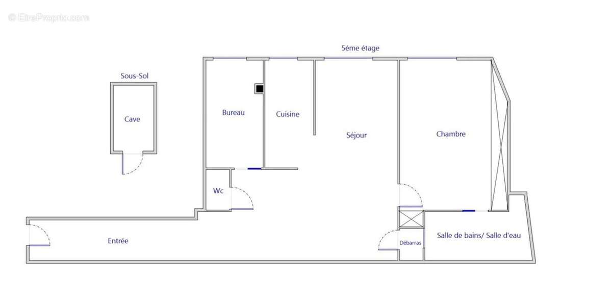
L'agence MAXIME DESPÈRES vous propose un appartement de 65.82m² au cinquième étage d’un immeuble Art Déco gardienné des années 1930, avec ascenseur. Ce trois pièces, à la fois chaleureux et fonctionnel, se compose d’une entrée, d’un séjour avec cuisine ouverte aménagée et équipée, d’une chambre, d’un bureau pouvant servir de chambre d’enfant, ainsi que d’une salle de bains offrant douche et baignoire et un WC séparé complète l’ensemble.
Une cave complète ce bien.
Son emplacement est idéal, à deux pas de la Porte Maillot, des commerces et des transports, dans un quartier recherché.
Honoraires à la charge de l'acquéreur de 1% (prix hors honoraires: 750000€). Pas de procédure en cours. Nombre total de lots : 86. Lots d’habitation : 79. Charges annuelles: 4000€/an. Les informations sur les risques auxquels ce bien est exposé sont disponibles sur le site Géorisques.
Voir plus

Référence: 86005314
Barème des honoraires
DPE
A
B
C
D
E
F
G
GES
A
B
C
D
E
F
G

Prêt immobilier

Vous souhaitez connaître votre capacité d’emprunt et trouver le meilleur crédit immobilier ?
Réaliser une simulation gratuite

Appartement à PARIS-17E
Appartement à PARIS-17E
Appartement à PARIS-17E
Appartement à PARIS-17E
Appartement à PARIS-17E
Appartement à PARIS-17E
Appartement à PARIS-17E
Appartement à PARIS-17E
Ce site est protégé par reCAPTCHA la Politique de confidentialité et les Conditions d’utilisation de Google s’appliquent.
Obtenir un prêt immobilier au meilleur taux ?

En poursuivant votre navigation sans modifier vos paramètres, vous acceptez l'utilisation de cookies susceptibles de réaliser des statistiques de visite. Cliquez ici pour plus d'informations