Bénéficiez des services de nos partenaires locaux soigneusement sélectionnés
pour vous accompagner dans votre parcours d'achat immobilier

Bayonne t4 en nue-propriété, à 5 min des commerces

— Bayonne 64100 —
229 149 €
81 m²
4 pièces
balcon/terrasse

Nos partenaires locaux
BAYONNE POLO-BEYRIS
Vente en nue-propriété (sans rente) Usufruit conservé par une femme de 76 ans.
Saisissez cette opportunité rare d'investissement patrimonial avec une décote immédiate de 30% dans un cadre de vie agréable et recherché.
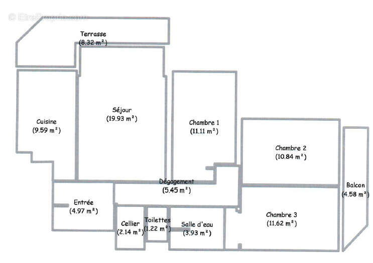
Situé au 2ᵉ étage (sur 3) d’une résidence intimiste, sécurisée et équipée d’un ascenseur, ce bel appartement T4 de plus de 80 m2, bien entretenu, offre un mode de vie tout à pied grâce à sa proximité immédiate avec les commerces du quartier Polo-Beyris et les transports en commun offrant de belles prestations comme le double vitrage dans l'ensemble de l'appartement ainsi que les volets électriques.
Il se compose d’une entrée avec placard, d'un cellier pour plus de rangement, d’un salon-séjour ouvrant sur une terrasse, d’une cuisine équipée profitant, elle aussi, d'un accès sur la terrasse.
Côté nuit : trois chambres avec rangements (dont deux donnant sur un balcon), une salle d’eau, un WC indépendant complètent ce bien fonctionnel.
Environnement :
Ligne de bus 5 à 450 m
Commerces à 500 m
Centre-ville de Bayonne à 4,7 km
DPE : C / GES : C // Aucune anomalie électrique, aucune anomalie gaz. Estimation des coûts annuels d’énergie : entre 930 € et 1 330 €.
Les informations sur les risques auxquels ce bien est exposé sont disponibles sur le site Géorisques.
Charges de copropriété : 1 252 €/an, soit 313€ par trimestre dont 141€ restant à la charge de l'occupante. Honoraires à la charge du vendeur.
Vous ne connaissez pas encore la vente en nue-propriété ? Nous sommes à votre disposition pour répondre à toutes vos questions et vous accompagner dans votre projet de développement patrimonial.
Voir plus

Référence: 1324
Bien en copropriété. Nombre de lots : 1.
Honoraires à la charge du vendeur.
Barème des honoraires
DPE
A
B
C
D
E
F
G
GES
A
B
C
D
E
F
G

Prêt immobilier

Vous souhaitez connaître votre capacité d’emprunt et trouver le meilleur crédit immobilier ?
Réaliser une simulation gratuite

Appartement à BAYONNE
Appartement à BAYONNE
Appartement à BAYONNE
Appartement à BAYONNE
Appartement à BAYONNE
Appartement à BAYONNE
Appartement à BAYONNE
Appartement à BAYONNE
Appartement à BAYONNE
Appartement à BAYONNE
Ce site est protégé par reCAPTCHA la Politique de confidentialité et les Conditions d’utilisation de Google s’appliquent.
Obtenir un prêt immobilier au meilleur taux ?

En poursuivant votre navigation sans modifier vos paramètres, vous acceptez l'utilisation de cookies susceptibles de réaliser des statistiques de visite. Cliquez ici pour plus d'informations