Bénéficiez des services de nos partenaires locaux soigneusement sélectionnés
pour vous accompagner dans votre parcours d'achat immobilier

Dieppe centre - plateau 43m² à rénover - vue st-jacques

— Dieppe 76200 —
79 500 €
43 m²
2 pièces

Nos partenaires locaux
Au coeur de Dieppe, à 2min de l'église St-Jacques et du Puit-Salé, ce plateau brut de 43,4m² (4e sans ascenseur) est une opportunité rare pour créer un T2 lumineux et fonctionnel, idéal comme pied-à-terre, investissement locatif ou résidence principale compacte.

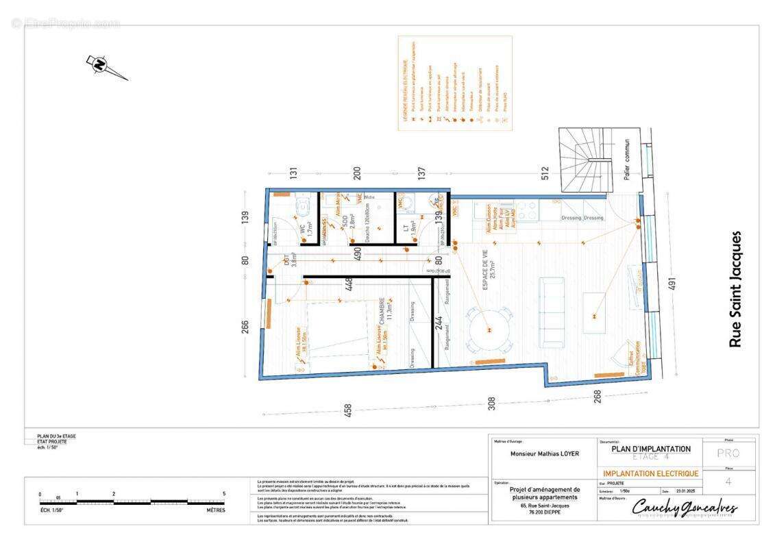
L'agencement après transformation
- Séjour lumineux avec coin cuisine de 25,7m², ouvert par deux portes-fenêtres sur la rue Saint-Jacques
- Chambre de 11,3m²
- Salle de douche + WC séparé
- Espaces de rangement intelligents
- DPE estimé C/D après travaux, pour une consommation maîtrisée

Options et services
- Plateau brut à rénover
- choix des matériaux et finitions personnalisables
- Offre clé en main possible, hors mobilier

Informations clés
- Surface : 43,4m² (Loi Carrez)
- Étage : 4e sans ascenseur
- Chauffage individuel
- Assainissement : tout-à-l'égout
- Non soumis au DPE (brut)
- estimation C/D après travaux
- Copropriété de 5 lots
- montants des charges à définir

Prix
79 500 euros FAI (honoraires agence 7,43% à la charge acquéreur)
Prix net vendeur : 74 000 euros

Mentions obligatoires
Bien soumis au régime de la copropriété : 5 lots
Montant annuel des charges : à définir
Informations sur les risques : www.georisques.gouv.fr
Bien soumis au régime de la copropriété

Contact et visites
Pour visiter ou obtenir plus d'informations, contactez Thierry Carpentier :
[Coordonnées masquées]
[Coordonnées masquées]

Visite sur présentation d'une pièce d'identité (article?L.561-5 CMF).
Pour visiter et vous accompagner dans votre projet, contactez Thierry CARPENTIER, au [Coordonnées masquées] ou, par courriel à [Coordonnées masquées].
Selon l'article L.561.5 du Code Monétaire et Financier, pour l'organisation de la visite, la présentation d'une pièce d'identité vous sera demandée.
Cette présente annonce a été rédigée sous la responsabilité éditoriale de Thierry CARPENTIER agissant sous le statut d'agent commercial immatriculé au RSAC DIEPPE 348 554 22 auprès de SAS PROPRIETES PRIVEES, au capital de 44 920 euros, ZAC LE CHÊNE FERRÉ - 44 ALLÉE DES CINQ CONTINENTS 44120 VERTOU; SIRET 487 624 777 00040, RCS Nantes. Carte Professionnelle Transactions sur immeubles et fonds de commerce (T) et Gestion immobilière (G) n° CPI 44[Coordonnées masquées]10 388 délivrée par la CCI Nantes - Saint Nazaire. Compte séquestre n°3[Coordonnées masquées] BPA SAINT-SEBASTIEN-SUR-LOIRE (44230). Garantie GALIAN-SMABTP - 89 rue de la Boétie, 75008 Paris - n°28137 J pour 2 000 000 euros pour T et 120 000 euros pour G. Assurance responsabilité civile professionnelle par GALIAN-SMABTP n° de police 28137.J

Mandat réf : 411492 - Le professionnel garantit et sécurise votre projet immobilier. (7.43 % honoraires TTC à la charge de l'acquéreur.)
Copropriété de 5 lots - dont 4 lots habitation.().
Thierry CARPENTIER (EI) Agent Commercial - Numéro RSAC : DIEPPE 348 554 22 - .
Voir plus

Référence: 411492HPT
Bien en copropriété. Nombre de lots : 5.
Honoraires d'agence de 7.43% à la charge de l'acquéreur

Prêt immobilier

Vous souhaitez connaître votre capacité d’emprunt et trouver le meilleur crédit immobilier ?
Réaliser une simulation gratuite

Appartement à DIEPPE
Appartement à DIEPPE
Appartement à DIEPPE
Appartement à DIEPPE
Appartement à DIEPPE
Appartement à DIEPPE
Appartement à DIEPPE
Ce site est protégé par reCAPTCHA la Politique de confidentialité et les Conditions d’utilisation de Google s’appliquent.
Obtenir un prêt immobilier au meilleur taux ?

En poursuivant votre navigation sans modifier vos paramètres, vous acceptez l'utilisation de cookies susceptibles de réaliser des statistiques de visite. Cliquez ici pour plus d'informations