Bénéficiez des services de nos partenaires locaux soigneusement sélectionnés
pour vous accompagner dans votre parcours d'achat immobilier

En exclusivité dans notre agence, Maison de Charme avec 5 chambres et gîte indépendant, avec vue depuis le jar

— Arthel 58700 —
215 000 €
209 m² / 1 555 m²
7 pièces
parkingbalcon/terrassejardin

Nos partenaires locaux

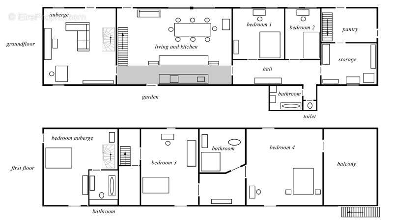
Grande maison familiale avec 5 chambres: deux de plain-pied et trois à l' étage. Possibilité d'exploiter cette maison en chambre d'hôtes avec un gîte indépendant.
Maison de caractère avec un beau jardin privatif qui donne sur les prairies du Château d' Arthel .
Maison en partie élevée sur deux caves voûtées, entrée par la première partie de la maison, salon avec dalles de Bourgogne, plafond à la française, belle cheminée en pierres taillées et un poêle à bois de la marque 'Godin'.
Au dessus du salon, une chambre parentale avec salle de bains privative et W.C. et une petite terrasse privative.
Attenant au salon une grande pièce de vie (ancienne grange) avec sa cuisine et sa salle à manger avec des tomettes au sol et son propre poêle à bois et une grande baie vitrée dans l'ancienne porte de la grange.
Porte depuis la cuisine qui donne sur la terrasse et le jardin. De l'autre côté de la cuisine, un couloir qui dessert deux chambres de plain-pied, une salle de bains et W.C. indépendants.
Buanderie à la suite et la deuxième entrée de la maison avec un accès direct à la deuxième cave.
Au premier étage, palier desservant une chambre avec chien assis et une belle vue sur le jardin et le château.
Deuxième palier qui donne accès à la salle d'eau avec W.C. entre les deux chambres. Deuxième chambre en filade depuis l'interieur de la maison, mais aussi accessible depuis un escalier de l'exterieur et sa terrasse au premier étage.
Non-attenant à la maison se trouve un gîte de 30m2 : une pièce de vie avec cheminée et une salle d'eau avec W.C.
Au premier étage: une mezzanine.
En face de la maison, de l'autre côté de la route se trouve un terrain avec deux places de parking deux bûchers et un potager. Au fond il y a encore une caravane comme maison d'amis.
Cette offre vous est proposée par Monsieur Laurens DE ROON Agent Commercial inscrit au Registre des Agents commerciaux sous le numéro 841 457 252.
Les informations sur les risques auxquels ce bien est exposé sont disponibles sur le site Géorisques: www.georisques.gouv.fr
Voir plus

Barème des honoraires
DPE
A
B
C
D
E
F
G
GES
A
B
C
D
E
F
G
Maison à ARTHEL
Maison à ARTHEL
Maison à ARTHEL
Maison à ARTHEL
Maison à ARTHEL
Maison à ARTHEL
Maison à ARTHEL
Maison à ARTHEL
Maison à ARTHEL
Maison à ARTHEL
Maison à ARTHEL
Maison à ARTHEL
Maison à ARTHEL
Maison à ARTHEL
Maison à ARTHEL
Maison à ARTHEL
Maison à ARTHEL
Maison à ARTHEL
Maison à ARTHEL
Maison à ARTHEL
Maison à ARTHEL
Maison à ARTHEL
Maison à ARTHEL
Maison à ARTHEL
Maison à ARTHEL
Maison à ARTHEL
Maison à ARTHEL
Maison à ARTHEL
Maison à ARTHEL
Maison à ARTHEL
Maison à ARTHEL
Maison à ARTHEL
Maison à ARTHEL
Maison à ARTHEL
Maison à ARTHEL
Maison à ARTHEL
Maison à ARTHEL
Maison à ARTHEL
Maison à ARTHEL
Maison à ARTHEL
Maison à ARTHEL
Maison à ARTHEL
Maison à ARTHEL
Maison à ARTHEL
Maison à ARTHEL
Maison à ARTHEL
Maison à ARTHEL
Maison à ARTHEL
Maison à ARTHEL
Maison à ARTHEL
Maison à ARTHEL
Maison à ARTHEL
Maison à ARTHEL
Maison à ARTHEL
Maison à ARTHEL
Maison à ARTHEL
Maison à ARTHEL
Maison à ARTHEL
Maison à ARTHEL
Maison à ARTHEL
Maison à ARTHEL
Maison à ARTHEL
Maison à ARTHEL
Maison à ARTHEL
Maison à ARTHEL
Maison à ARTHEL
Maison à ARTHEL
Maison à ARTHEL
Maison à ARTHEL
Maison à ARTHEL
Géorisques

Les informations sur les risques auxquels ce bien est exposé sont disponibles sur le site Géorisques : www.georisques.gouv.fr

Ce site est protégé par hCaptcha Politique de confidentialité et Conditions d’utilisation s’appliquent.

En poursuivant votre navigation sans modifier vos paramètres, vous acceptez l'utilisation de cookies susceptibles de réaliser des statistiques de visite. Cliquez ici pour plus d'informations