Maison de village - boujan sur libron - 6 pièces - 175m²

— Boujan-Sur-Libron 34760 —
149 000 €
175 m² / 145 m²
6 pièces
parkingbalcon/terrassejardin

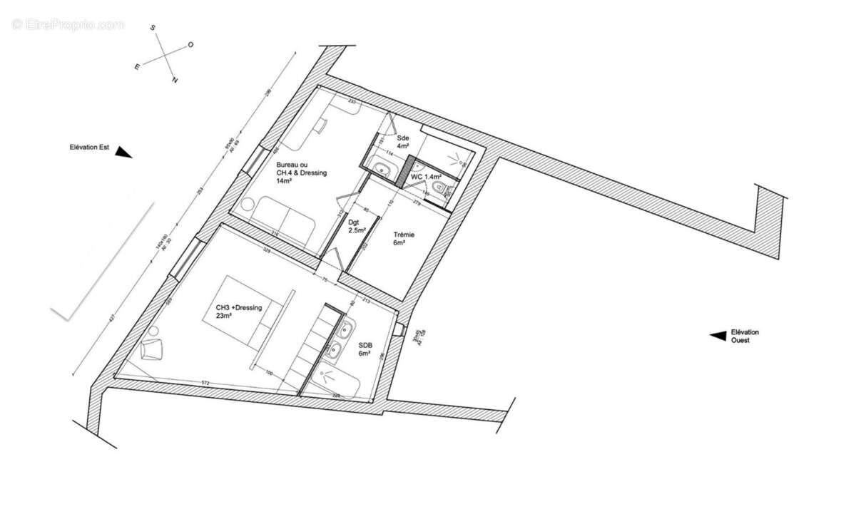
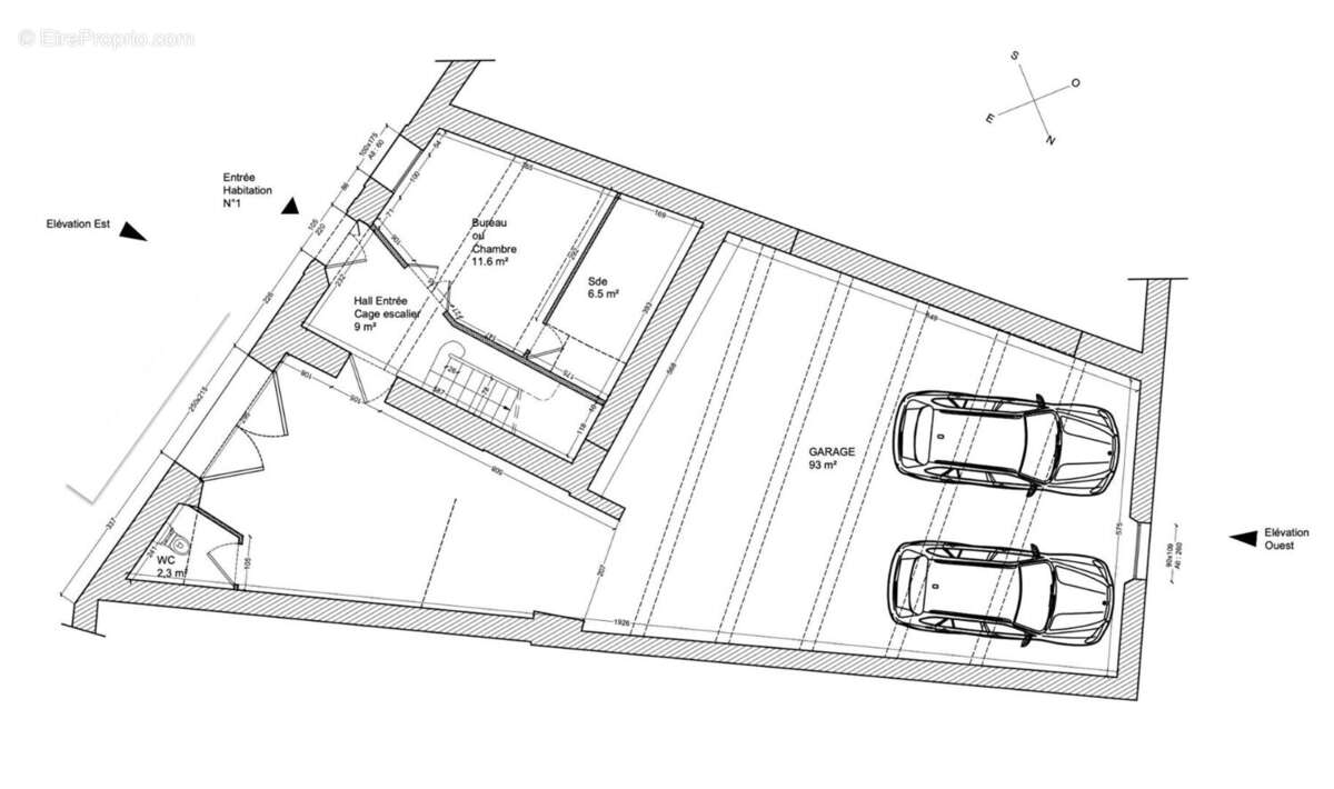
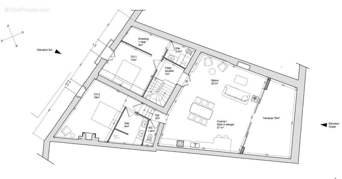
France Sud Immobilier vous présente ce bien située au coeur du village, dans une rue calme et sans vis-à-vis, une maison de caractère qui développe une superficie généreuse d'environ 175m² habitables, à rénover selon vos envies. Sur la base des plans fournis, il ne restera plus qu'à engager les travaux pour révéler tout le potentiel de ce bien rare : une maison familiale lumineuse, avec de belles hauteurs sous plafond, un agencement optimisé et 5 chambres. Atout rare en coeur de village : un grand garage de 93 m², idéal pour stationner plusieurs véhicules, créer un atelier ou un espace de stockage. Le plus : la possibilité d'aménager une terrasse pour profiter des beaux jours en toute tranquillité. Projet idéal pour un artisan, une famille en quête de personnalisation, ou un investisseur à la recherche d'un bien avec un fort potentiel de valorisation. Pour plus d'informations ou organiser une visite, contactez-nous dès maintenant !
Voir plus

Référence: 16397
Honoraires à la charge du vendeur.
Barème des honoraires

Prêt immobilier

Vous souhaitez connaître votre capacité d’emprunt et trouver le meilleur crédit immobilier ?
Réaliser une simulation gratuite

Maison à BOUJAN-SUR-LIBRON
Maison à BOUJAN-SUR-LIBRON
Maison à BOUJAN-SUR-LIBRON
Maison à BOUJAN-SUR-LIBRON
Maison à BOUJAN-SUR-LIBRON
Maison à BOUJAN-SUR-LIBRON
Maison à BOUJAN-SUR-LIBRON
Maison à BOUJAN-SUR-LIBRON
Maison à BOUJAN-SUR-LIBRON
Maison à BOUJAN-SUR-LIBRON
Maison à BOUJAN-SUR-LIBRON
Maison à BOUJAN-SUR-LIBRON
Ce site est protégé par reCAPTCHA la Politique de confidentialité et les Conditions d’utilisation de Google s’appliquent.
Obtenir un prêt immobilier au meilleur taux ?

En poursuivant votre navigation sans modifier vos paramètres, vous acceptez l'utilisation de cookies susceptibles de réaliser des statistiques de visite. Cliquez ici pour plus d'informations