Bénéficiez des services de nos partenaires locaux soigneusement sélectionnés
pour vous accompagner dans votre parcours d'achat immobilier

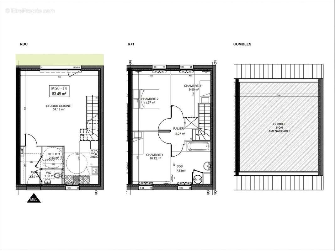
Maison 83m² à tourcoing

— Tourcoing 59200 —
263 000 €
83 m² / 130 m²
4 pièces
balcon/terrassejardin

Nos partenaires locaux
Iad France - Matthieu Ozon ([Coordonnées masquées]) vous propose : À Tourcoing, découvrez cette maison neuve T4 avec jardin.
Cette maison offre un bel espace de vie, une cuisine ouverte, trois chambres à l'étage, une salle de bain et des WC séparés. Fonctionnelle et lumineuse, elle dispose également d'un jardin privatif et d'une place de stationnement. Conçue pour le confort du quotidien, cette maison mitoyenne combine espace, praticité et cadre de vie agréable. Idéal pour une résidence principale ou un investissement. Disponibilité, plans et informations sur demande.

Honoraires d'agence à la charge du vendeur. Bien non soumis au DPE. Les informations sur les risques auxquels ce bien est exposé sont disponibles sur le site Géorisques : www.georisques.gouv.fr. La présente annonce immobilière a été rédigée sous la responsabilité éditoriale de M. Matthieu Ozon EI (ID 86727), mandataire indépendant en immobilier (sans détention de fonds), agent commercial de la SAS I@D France immatriculé au RSAC de Boulogne sur Mer sous le numéro 941481426, titulaire de la carte de démarchage immobilier pour le compte de la société I@D France SAS.
Retrouvez tous nos biens sur notre site internet. www.iadfrance.fr.
Informations LOI ALUR :
Honoraires charge vendeur. (gedeon_6727_31442211)
Voir plus

Référence: 1787610-20
Honoraires à la charge du vendeur.

Prêt immobilier

Vous souhaitez connaître votre capacité d’emprunt et trouver le meilleur crédit immobilier ?
Réaliser une simulation gratuite

Photo 1 - Maison à TOURCOING
Photo 1
Photo 2 - Maison à TOURCOING
Photo 2
Photo 3 - Maison à TOURCOING
Photo 3
Photo 4 - Maison à TOURCOING
Photo 4
Ce site est protégé par reCAPTCHA la Politique de confidentialité et les Conditions d’utilisation de Google s’appliquent.
Obtenir un prêt immobilier au meilleur taux ?

En poursuivant votre navigation sans modifier vos paramètres, vous acceptez l'utilisation de cookies susceptibles de réaliser des statistiques de visite. Cliquez ici pour plus d'informations