Bénéficiez des services de nos partenaires locaux soigneusement sélectionnés
pour vous accompagner dans votre parcours d'achat immobilier

Exclusivité ajaccio corse du sud, en plein de coeur de ville

— Ajaccio 20000 —
291 000 €
77 m²
3 pièces

Nos partenaires locaux
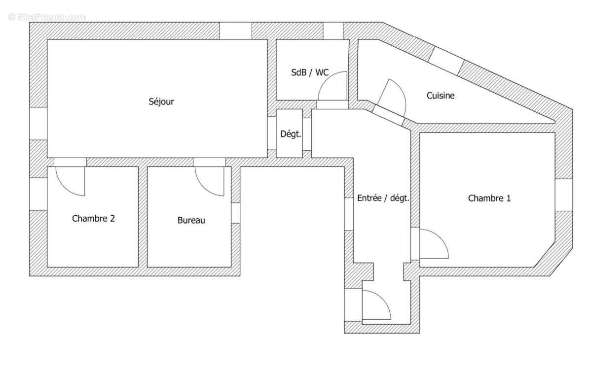
Dans le secteur ultra-centre d’Ajaccio, l’équipe d’ Immo-Corsica à le plaisir de vous proposer cet appartement en 1er étage de 77m2, bénéficiant d’un emplacement exceptionnel en centre-ville ;
Un cadre idyllique et surtout très pratique ou il fait bon vivre ou investir. Actuellement composé en T3/T4, il offre de nombreuses possibilités d’aménagement : avec un peu d’imagination (et quelques coups de marteau bien placés), ce bien retrouvera sa splendeur d’antan ! Certes, des travaux sont à prévoir. Mais rassurez-vous, rien d’insurmontable ! Pour les amateurs de rénovation, voici une occasion en or d’exprimer vos talents. Et si vous ne vous sentez pas l’âme d’un architecte, un bon artisan fera des merveilles en un clin d’œil.
Une fois rénové, ce petit bijou disposant de fort potentiel pourra être à la hauteur de vos exigences !
Nous sommes à votre disposition pour le visiter !
Voir plus

Bien en copropriété.
Barème des honoraires
DPE
A
B
C
D
E
F
G
GES
A
B
C
D
E
F
G

Prêt immobilier

Vous souhaitez connaître votre capacité d’emprunt et trouver le meilleur crédit immobilier ?
Réaliser une simulation gratuite

Appartement à AJACCIO
Appartement à AJACCIO
Appartement à AJACCIO
Appartement à AJACCIO
Appartement à AJACCIO
Ce site est protégé par reCAPTCHA la Politique de confidentialité et les Conditions d’utilisation de Google s’appliquent.
Obtenir un prêt immobilier au meilleur taux ?

En poursuivant votre navigation sans modifier vos paramètres, vous acceptez l'utilisation de cookies susceptibles de réaliser des statistiques de visite. Cliquez ici pour plus d'informations