Bénéficiez des services de nos partenaires locaux soigneusement sélectionnés
pour vous accompagner dans votre parcours d'achat immobilier

Maison bourgeoise de 98m2 hab, 162m2 utiles et 7 pièces avec dépendance – colombes petite garenne

— Colombes 92700 —
685 000 €
162 m²
7 pièces

Nos partenaires locaux
EXCLUSIVITE LMA Chelloise, Prestations Rares, Grande famille ou collocations!

Délégation et Intercabinet possibles au cas par cas pour les agences!

Agents Immos, Soyez réglos! Pas besoin de démarcher les vendeurs, Contactez-moi, je partage!

Situé dans un quartier très calme au cœur d’une copropriété cachée, proche centre ville à 8 minutes en bus des commerces, 8 minutes des écoles de la maternelle aux collèges, à 12 minutes à pied de la Gare actuelle de la Garenne-Colombes (ligne J et L et Tram T2) !

Ligne J Paris Saint-Lazare, Ermont-Eaubonne, Pontoise, Mantes-la-Jolie et Autres
Ligne L Paris Saint-Lazare, Cergy et Autres,
Ligne Tram T2, la Défense, Pont de Bezons, porte de Versailles
Venez découvrir cette belle Maison de caractère, individuelle et lumineuse, tres bien entretenue des Années 1950 de 100m² Habitables pour 162m² Utiles en très bon état sur sous-sol total, et dépendance composée de:

En rez de chaussée: entrée donnant sur Séjour-salle à manger donnant accès direct jardin arrière et terrasse au calme, Cuisine dinatoire équipée récente avec prises-machines, Salle d’Eau avec WC, lave-mains, fenêtre et sèche-serviettes,

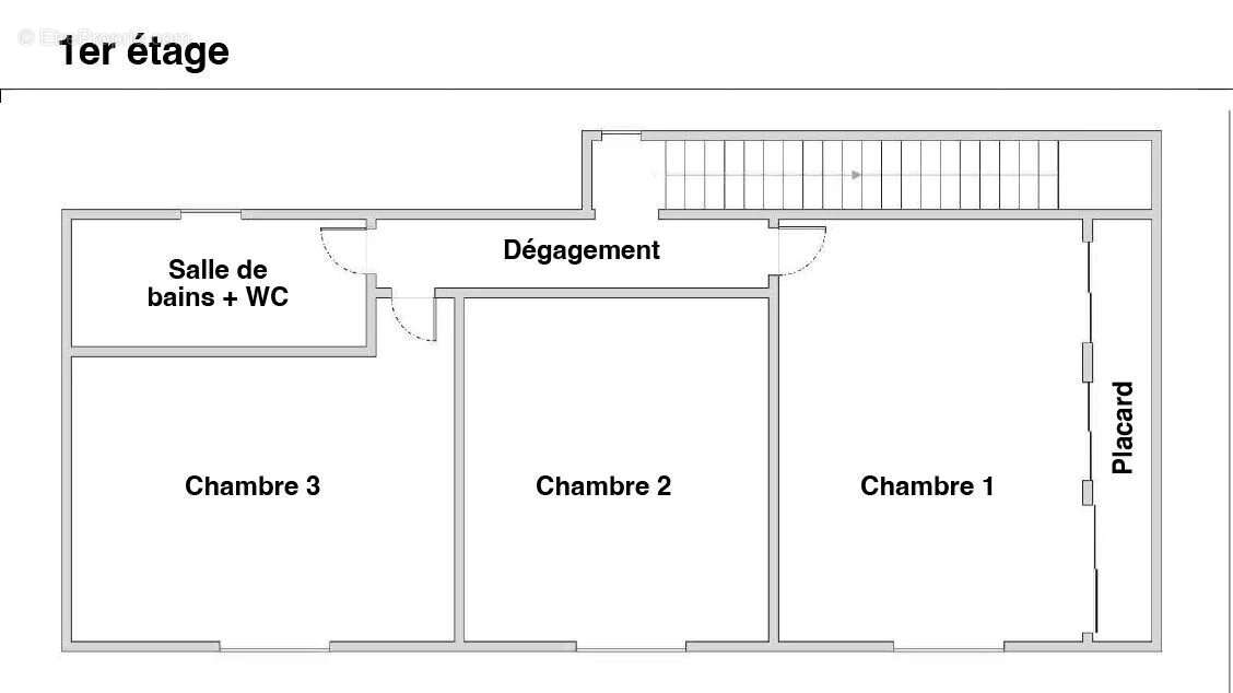
Au premier Étage, couloir, 3 grandes chambres avec placards pour l’une, 1 salle de bains avec WC, fenêtre et sèche-serviettes,

En Sous-Sol donnant sur le jardin arrière avec entrée indépendante, Grande Piece ou chambre avec chaudière, grande chambre d’appoint et cellier.

Accolé à la maison, bureau avec étage pouvant etre aménagé en F2.

Devant la maison, parking pour 1 véhicule!

Exposition Sud-Est. Double vitrage, chaudière de 2016 et Jardin au calme. Ravalement à prévoir devisé!

Beaucoup de cachet, idéal famille avec les 4-5 chambres, un cocon optimisé ou Collocations. Maison Coup de cœur! Rarissime sur le secteur.

DPE : D (230) GES : D (48)

Date de réalisation du diagnostic : 11/07/2023

Estimation des Coûts Annuels d’énergie du Logement pour un usage standard entre 1530 € et 2120€ par an. Moyenne à 152€ par mois.

Prix moyens des énergies indexés sur l’année 2021 (abonnements compris)

Contactez nous pour toutes questions!

Réf: M 0168 Taxe Foncière: 1732€ Maison en copropriété.

Charges annuelles 1636€ (136€/Mois),

Contactez nous pour toutes questions!
Voir plus

Référence: 86019216
Barème des honoraires
DPE
A
B
C
D
E
F
G
GES
A
B
C
D
E
F
G

Prêt immobilier

Vous souhaitez connaître votre capacité d’emprunt et trouver le meilleur crédit immobilier ?
Réaliser une simulation gratuite

Maison à COLOMBES
Maison à COLOMBES
Maison à COLOMBES
Maison à COLOMBES
Maison à COLOMBES
Maison à COLOMBES
Maison à COLOMBES
Maison à COLOMBES
Maison à COLOMBES
Maison à COLOMBES
Maison à COLOMBES
Maison à COLOMBES
Maison à COLOMBES
Maison à COLOMBES
Maison à COLOMBES
Maison à COLOMBES
Maison à COLOMBES
Maison à COLOMBES
Maison à COLOMBES
Maison à COLOMBES
Maison à COLOMBES
Maison à COLOMBES
Ce site est protégé par reCAPTCHA la Politique de confidentialité et les Conditions d’utilisation de Google s’appliquent.
Obtenir un prêt immobilier au meilleur taux ?

En poursuivant votre navigation sans modifier vos paramètres, vous acceptez l'utilisation de cookies susceptibles de réaliser des statistiques de visite. Cliquez ici pour plus d'informations