Bénéficiez des services de nos partenaires locaux soigneusement sélectionnés
pour vous accompagner dans votre parcours d'achat immobilier

Immeuble 8 pièces - 155 m² langoiran

— Langoiran 33550 —
365 000 €
155 m²
8 pièces

Nos partenaires locaux
Sur la commune de LANGOIRAN – 33550

En plein centre, proximité immédiate des commerces et services / 30 minutes de Bordeaux Centre / 20 minutes Rocade

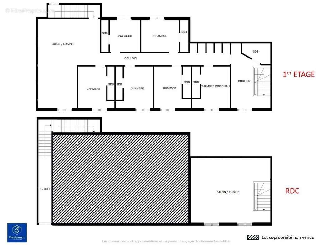
Cette immeuble d'habitation se compose au RDC d'une pièce de 30m² (cuisine et pièce de vie), et de 6 Chambres individuelles à l'étage, chacune équipée d'une salle de douche avec WC. Les chambres sont desservies par un couloir central menant à une pièce de vie salon / Salle à manger.

Possibilité de transformer le bien en 1 T2 en duplex et 1 T6.

Le bien est vendu loué 2700€/mois soit un rendement brut de 8,87%


Mentions Loi Alur :
- Agence : N° SIREN 842 685 497
- Statut du négociateur : Agent Immobilier
- Prix FAI TTC de 365000 €
- Honoraires charge : vendeur
- Consommation énergétique : 295 kWh/m²/an
- Emission de gaz à effet de serre : 9 Kg CO2/m²/an
- Montant estimé des dépenses annuelles pour un usage standard : entre 2740€ et 3750€ / an. Prix moyen des énergies indexé sur l’année de référence : 2021
- Bien soumis au statut de la copropriété
- Lots de copropriété au nombre de 3
- Montant des charges annuelles de copropriété : NC €
- Les informations sur les risques auxquels ce bien est exposé sont disponibles sur le site Géorisques : georisques.gouv.fr
Voir plus

Référence: 85985529
Barème des honoraires
DPE
A
B
C
D
E
F
G
GES
A
B
C
D
E
F
G

Prêt immobilier

Vous souhaitez connaître votre capacité d’emprunt et trouver le meilleur crédit immobilier ?
Réaliser une simulation gratuite

Maison à LANGOIRAN
Maison à LANGOIRAN
Maison à LANGOIRAN
Maison à LANGOIRAN
Maison à LANGOIRAN
Maison à LANGOIRAN
Maison à LANGOIRAN
Maison à LANGOIRAN
Ce site est protégé par reCAPTCHA la Politique de confidentialité et les Conditions d’utilisation de Google s’appliquent.
Obtenir un prêt immobilier au meilleur taux ?

En poursuivant votre navigation sans modifier vos paramètres, vous acceptez l'utilisation de cookies susceptibles de réaliser des statistiques de visite. Cliquez ici pour plus d'informations