Bénéficiez des services de nos partenaires locaux soigneusement sélectionnés
pour vous accompagner dans votre parcours d'achat immobilier

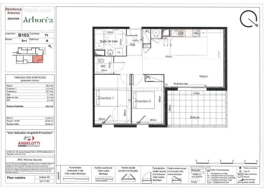
Appartement 65m² à sauvian

— Sauvian 34410 —
234 900 €
66 m²
3 pièces
accès handicapé

Nos partenaires locaux
Prix en baisse !
Ne manquez pas cette opportunité : 234 900 € au lieu de 249 900 €.
Une remise immédiate de 15 000 € sur cet appartement exceptionnel.

Au coeur d'une résidence sécurisée élégante avec ascenseur, découvrez ce magnifique appartement alliant confort moderne et prestations haut de gamme.
Dès l'entrée, vous serez séduit par un grand séjour lumineux de 26 m², prolongé par une superbe terrasse de plus de 13 m² exposée plein sud un véritable coin de paradis pour vos moments de détente ou vos repas ensoleillés. La cuisine aménagée, fonctionnelle et ouverte, complète parfaitement cet espace de vie convivial.
Côté nuit, deux belles chambres de 12 m² et 10 m² vous offrent calme et confort. La salle de bains spacieuse de 5,4 m² est équipée avec soin, et les toilettes suspendus sont indépendants pour plus de praticité.
Cet appartement bénéficie de toutes les innovations actuelles : chauffe-eau thermodynamique, domotique intégrée pour un quotidien intelligent, et classe énergétique A, pour une consommation maîtrisée.

Bien rare sur le secteur, dans une résidence de standing à deux pas des commodités. À visiter sans tarder.
L'Etat des Risques et Pollution peut être consulté sur https://www.georisques.gouv.fr
Voir plus

Référence: 647
DPE
A
B
C
D
E
F
G
GES
A
B
C
D
E
F
G

Prêt immobilier

Vous souhaitez connaître votre capacité d’emprunt et trouver le meilleur crédit immobilier ?
Réaliser une simulation gratuite

Appartement à SAUVIAN
Appartement à SAUVIAN
Appartement à SAUVIAN
Appartement à SAUVIAN
Appartement à SAUVIAN
Appartement à SAUVIAN
Appartement à SAUVIAN
Appartement à SAUVIAN
Appartement à SAUVIAN
Appartement à SAUVIAN
Appartement à SAUVIAN
Appartement à SAUVIAN
Appartement à SAUVIAN
Appartement à SAUVIAN
Appartement à SAUVIAN
Appartement à SAUVIAN
Appartement à SAUVIAN
Appartement à SAUVIAN
Ce site est protégé par reCAPTCHA la Politique de confidentialité et les Conditions d’utilisation de Google s’appliquent.
Obtenir un prêt immobilier au meilleur taux ?

En poursuivant votre navigation sans modifier vos paramètres, vous acceptez l'utilisation de cookies susceptibles de réaliser des statistiques de visite. Cliquez ici pour plus d'informations